Dieses großzügige Grundstück bietet auf 502 m² ausreichend Platz für den Bau Ihres Traumhauses in einer ruhigen, naturnahen und familienfreundlichen Umgebung. In Zusammenarbeit mit Rostow Bau haben Sie die Möglichkeit, Ihr Haus in hochwertiger massiver Bauweise aus Blähton zu errichten. Blähton ist bekannt für seine ausgezeichnete Wärmedämmung und Schallschutz, wodurch Ihr Zuhause besonders komfortabel und energieeffizient wird.
Idyllisches Baugrundstück in moderner Siedlung - Kita und Schule fußläufig
16348 Wandlitz
Die vollständige Adresse der Immobilie erhalten Sie vom Anbieter.
Auf Karte anzeigen
Die vollständige Adresse der Immobilie erhalten Sie vom Anbieter.
Finanzierungszertifikat
In nur zwei Minuten zu Ihrem persönlichen Finanzierungszertifkat.
Infos
| Vermarktungsart | Kaufen |
|---|---|
| Grundstücksfläche | 502 m2 |
Kosten
| Miete pro Jahr |
89.000 € |
|---|---|
| Provision |
7,14% |
Finanzierungsrechner:
Kaufpreis:
600.000 €
Eigenkapital:
600.000 €
Monatliche Rate
0 €
Effektiver Jahreszins
0 %
Sollzinsbindung
10 Jahre
Beschreibung des Objekts
Lage
Das Grundstück liegt im begehrten Ortsteil Klosterfelde, einem idyllischen und naturnahen Wohngebiet, das besonders bei Familien beliebt ist. Umgeben von Wäldern und Seen bietet der Ort eine hohe Lebensqualität und zahlreiche Freizeitmöglichkeiten für die ganze Familie. Hier können Kinder in einer sicheren Umgebung aufwachsen und die Natur in vollen Zügen genießen.
Trotz der grünen und ruhigen Lage ist die Anbindung an alle wichtigen Infrastruktureinrichtungen ideal. Schulen, Kitas und Einkaufsmöglichkeiten sind in wenigen Minuten erreichbar, und die gute Anbindung an den öffentlichen Nahverkehr sowie die Straßenverbindungen nach Wandlitz und Berlin machen Klosterfelde zu einem idealen Wohnort für Pendler.
Sonstige Angaben
Vereinbaren Sie jetzt Ihre Bauberatung;
Silke Friedrich 01520 4466425
Weitere Dokumente
25 Jahre Rostow BauBlaehton
Rostow_Flyer
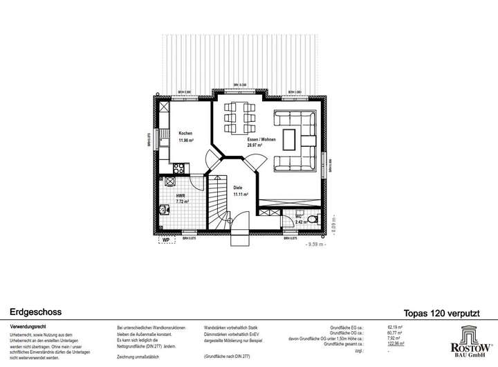
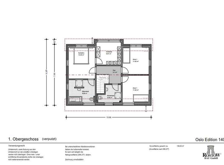
Grundriss
Topas_130_Grundriss_EG
>
>
Topas_130_Grundriss_OG
>
>
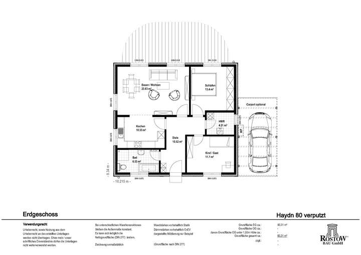
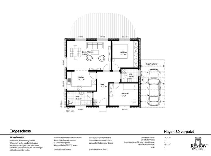
Haydn_80_Grundriss
>
>