Zum Verkauf steht ein Baugrundstücksanteil (1/4) eines insgesamt 1.244 m² großen Grundstücks in Rosengarten-Sieversen.
Das Grundstück ist ideell geteilt, d. h. Sie erwerben einen Miteigentumsanteil am Gesamtgrundstück mit alleiniger Nutzungsberechtigung für Ihr Hausgrundstück laut Teilungsvereinbarung.
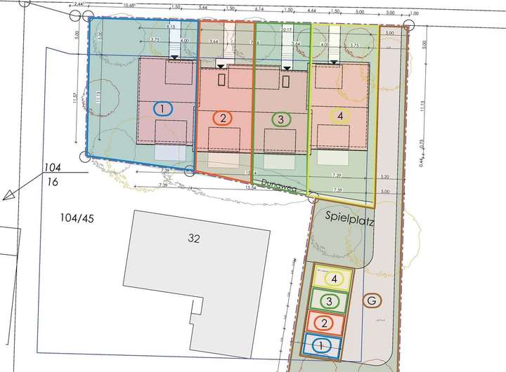
Die Baugenehmigung für vier moderne Reihenhäuser liegt bereits vor – ein Baustart ist somit unmittelbar möglich.
Eckdaten:
🔹 Gesamtgrundstück: ca. 1.244 m²
🔹 Anteil: ca. 153,40² (Endreihenhaus, links)
🔹 Baugenehmigung: liegt vor (vier Reihenhäuser)
🔹 Nutzung: Wohneinheit mit Gartenanteil
🔹 Erschließung: vollerschlossen
🔹 Zufahrt: gemeinschaftlich mit separatem Stellplatzbereich
🔹 Kaufpreis: 195.000€
Vorteile:
✅ Baugenehmigung liegt vor – sofortige Planungssicherheit
✅ Attraktive Lage in Rosengarten-Sieversen, südlich von Hamburg
✅ Endreihenhaus mit großzügigem Grundstücksanteil
✅ Klare Eigentumsstruktur durch ideelle Teilung
Die genehmigten Baupläne werden mit dem Exposé zur Verfügung gestellt.
📞 Für weitere Informationen oder Unterlagen kontaktieren Sie uns gern direkt.
Schönes Grundstück für den Bau eines Reihenhauses
21224 Rosengarten
Die vollständige Adresse der Immobilie erhalten Sie vom Anbieter.
Auf Karte anzeigen
Die vollständige Adresse der Immobilie erhalten Sie vom Anbieter.
Finanzierungszertifikat
In nur zwei Minuten zu Ihrem persönlichen Finanzierungszertifkat.
Infos
| Vermarktungsart | Kaufen |
|---|---|
| Grundstücksfläche | 153,4 m2 |
| Erschließung | Erschlossen |
| Empfohlene Nutzung | Mehrfamilienhaus |
| Bebaubar nach | Bebauungsplan |
Kosten
| Miete pro Jahr |
195.000 € |
|---|---|
| Provision |
7,14% inkl MwSt. |
Finanzierungsrechner:
Kaufpreis:
600.000 €
Eigenkapital:
600.000 €
Monatliche Rate
0 €
Effektiver Jahreszins
0 %
Sollzinsbindung
10 Jahre
Beschreibung des Objekts
Lage
Das Grundstück befindet sich in der attraktiven Gemeinde Rosengarten im Landkreis Harburg, südlich der Hansestadt Hamburg.
Rosengarten zählt zu den beliebtesten Wohnlagen im Hamburger Umland – ein Standort, der ländliche Ruhe, naturnahes Wohnen und die unmittelbare Nähe zur Metropole Hamburg in idealer Weise vereint.
Die Umgebung ist geprägt von gepflegten Einfamilienhäusern, großzügigen Gärten und viel Grün. In wenigen Minuten erreichen Sie weitläufige Wiesen, Wälder und Spazierwege – ideal für Familien, Naturliebhaber und alle, die eine ruhige Wohnatmosphäre schätzen.
Trotz der idyllischen Lage bietet Rosengarten eine hervorragende Infrastruktur: Einkaufsmöglichkeiten für den täglichen Bedarf, Bäckereien, Ärzte, Apotheken und Restaurants befinden sich in unmittelbarer Nähe. In den benachbarten Ortsteilen Nenndorf, Sieversen und Eckel stehen zudem Supermärkte, Kindergärten, Grundschulen und weiterführende Schulen zur Verfügung.
Für Berufspendler ist die Lage besonders attraktiv:
Über die A1 und A261 erreichen Sie in wenigen Minuten die A7 und damit eine direkte Verbindung in die Hamburger Innenstadt (Fahrzeit ca. 25–30 Minuten). Alternativ stehen Busverbindungen und die Metronom-Bahnhöfe in Klecken oder Buchholz zur Verfügung, die in den Hamburger Verkehrsverbund (HVV) eingebunden sind.
Freizeit- und Erholungsmöglichkeiten sind reichlich vorhanden:
Der Wildpark Schwarze Berge, der Regionalpark Rosengarten sowie zahlreiche Rad- und Wanderwege bieten ideale Möglichkeiten zur Erholung und Freizeitgestaltung in der Natur. Darüber hinaus gibt es in der Umgebung Sportvereine, Reitställe, Tennisanlagen und Golfplätze, die ein vielfältiges Freizeitangebot gewährleisten.
Rosengarten steht für hohe Lebensqualität, ein familienfreundliches Umfeld und ein nachhaltiges Wohnkonzept in naturnaher Umgebung – mit optimaler Anbindung an die Metropolregion Hamburg.
Grundriss
Grundstück
>
>