In traumhafter Lage nahe des Werdersees in Bremen-Habenhausen präsentiert sich dieses vollständig renovierte Reihenendhaus als echtes Juwel für anspruchsvolle Käufer. Eingebettet in eine ruhige Wohngegend und nur wenige Gehminuten vom beliebten Naherholungsgebiet entfernt, verbindet diese Immobilie naturnahes Wohnen mit urbaner Lebensqualität – ein echtes Zuhause zum Wohlfühlen.
Das Haus steht auf einem außergewöhnlich großzügigen Grundstück von ca. 700 m² – eine Seltenheit in dieser Lage und Größenordnung. Der Garten bietet viel Potenzial zur individuellen Gestaltung und verfügt bereits über mehrere Apfelbäume, die besonders im Spätsommer zum Ernten einladen. Er ist nicht liebevoll gepflegt, bietet jedoch die ideale Grundlage, um eine persönliche grüne Oase zu schaffen – mit reichlich Platz für Ruhe, Freizeit oder Gartenprojekte.
Die Immobilie wurde in den Jahren 2022 und 2023 umfassend modernisiert. So wurde die Elektrik im Jahr 2023 komplett erneuert, ebenso wie die Dachdämmung, die Fassadendämmung und die Dachrinnen. Die Öl-Heizung stammt aus dem Jahr 2022 und sorgt in Kombination mit den energetischen Maßnahmen für effizienten Wohnkomfort. Neue Böden und Innentüren verleihen dem Haus eine moderne und freundliche Atmosphäre. Auch der Außenbereich wurde durch eine neue Pflasterung im Hofbereich optisch und funktional aufgewertet.
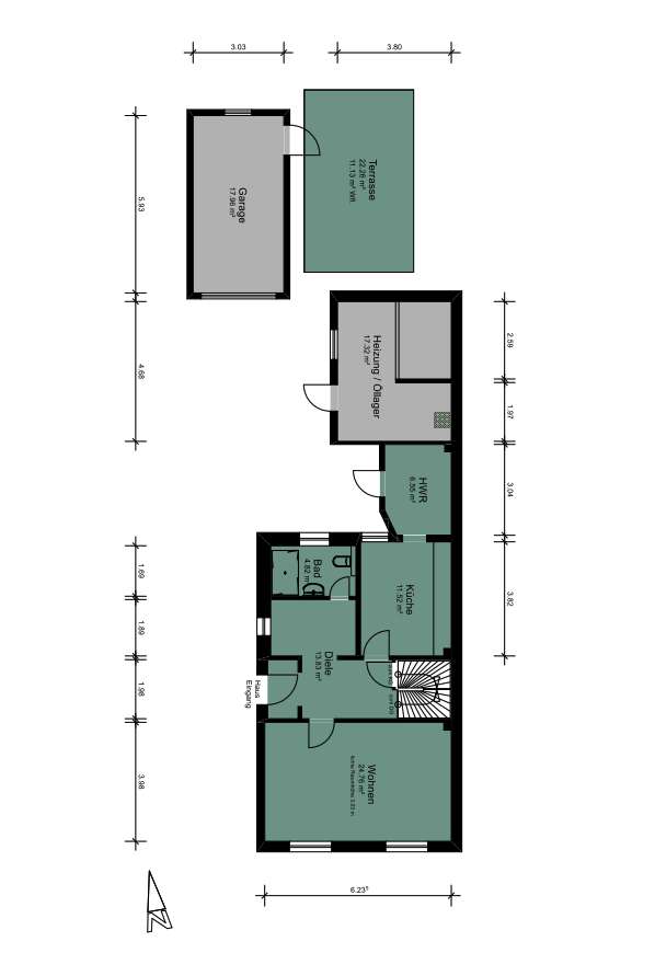
Das Haus verfügt über insgesamt drei Schlafzimmer, die sich flexibel als Schlaf-, Kinder- oder Arbeitszimmer nutzen lassen. Es ist teilunterkellert – ideal für zusätzlichen Stauraum oder einen kleinen Hobbybereich. Außenjalousien an den Fenstern sorgen für zusätzlichen Komfort und schützen zuverlässig vor Sonne und Blicken.
Ein weiteres praktisches Extra: Eine Garage im Hofbereich gehört ebenfalls zur Immobilie und ermöglicht bequemes und sicheres Parken direkt am Haus.
Insgesamt bietet dieses Reihenendhaus eine seltene Kombination aus großzügigem Grundstück, hochwertiger Sanierung und ruhiger, naturnaher Lage – ideal für Familien, Paare oder alle, die stadtnah wohnen und dennoch die Nähe zur Natur genießen möchten. Hier heißt es: einziehen, gestalten und wohlfühlen.
Frisch renoviert & naturnah – Reihenendhaus mit großem Grundstück nahe dem Werdersee
28279 Bremen
Die vollständige Adresse der Immobilie erhalten Sie vom Anbieter.
Auf Karte anzeigen
Die vollständige Adresse der Immobilie erhalten Sie vom Anbieter.
Finanzierungszertifikat
In nur zwei Minuten zu Ihrem persönlichen Finanzierungszertifkat.
Infos
| Haustyp | Reiheneckhaus |
|---|---|
| Etagenzahl | 2 |
| Wohnfläche ca. | 129 m2 |
| Nutzfläche | 85,65 m2 |
| Grundstücksfläche | 666 m2 |
| Zimmer | 4 |
| Schlafzimmer | 3 |
| Badezimmer | 1 |
Kosten
| Kaufpreis |
499.000 € |
|---|---|
| Provision |
3,57% inkl. 19% MwSt. (Käuferprovision) |
Finanzierungsrechner:
Kaufpreis:
600.000 €
Eigenkapital:
600.000 €
Monatliche Rate
0 €
Effektiver Jahreszins
0 %
Sollzinsbindung
10 Jahre
Bausubstanz & Energieausweis
| Baujahr | 1965 |
|---|---|
| Objektzustand | Saniert |
| Qualität der Austattung | Gehoben |
| Wesentliche Energieträger | Öl |
| Energieausweis | liegt vor |
| Energieausweistyp | Bedarfsausweis |
| Energieverbrauchskennwert | 159,0 kWh/(m²*a) |
| Energieeffizienzklasse | E |
159,0
kWh/(m²*a)
Energieeffizienzklasse E
- A+
- A
- B
- C
- D
- E
- F
- G
- H
- 0
- 25
- 50
- 75
- 100
- 125
- 150
- 175
- 200
- 225
- >250
Beschreibung des Objekts
Ausstattung
+ Garage im Hofbereich
+ 3 Schlafzimmer
+ Neue Elektrik aus dem Jahr 2023
+ Öl-Heizung aus 2022
+ Tolles Grundstück ca. 700 m²
+ Außenjalousien
+ Keller
+ Dachdämmung 2023
+ Neue Türen
+ Neue Böden
+ Neue Pflasterung
+ Dachrinnen aus dem Jahr 2023
+ Wärmedämmung der Hausfassade
Lage
Habenhausen ist ein Stadtteil im Bremer Stadtbezirk Obervieland, der sich südlich der Weser befindet. Er zeichnet sich durch seine ruhige und familienfreundliche Atmosphäre aus, geprägt von einer Mischung aus Einfamilienhäusern, Reihenhäusern und kleineren Mehrfamilienhäusern. Besonders die Nähe zur Weser und den Grünflächen rund um den Werdersee macht Habenhausen zu einem beliebten Wohngebiet. Die Anbindung an den Verkehr ist hervorragend. Über die Autobahn A1, die über die Anschlussstelle Bremen-Arsten schnell erreichbar ist, sowie den öffentlichen Nahverkehr mit regelmäßigen Busverbindungen in die Innenstadt ist der Stadtteil sowohl für Berufspendler als auch für Menschen, die eine gute Erreichbarkeit schätzen, äußerst attraktiv.
Die Infrastruktur in Habenhausen ist gut ausgebaut. Einkaufsmöglichkeiten wie das nahe gelegene Werder Karree bieten alles Notwendige für den täglichen Bedarf. Auch Schulen, Kindergärten und ärztliche Einrichtungen sind gut erreichbar, was den Stadtteil besonders für Familien interessant macht. Darüber hinaus gibt es zahlreiche Freizeitangebote. Der Werdersee lädt zum Joggen, Spazierengehen oder Wassersport ein, während Sportvereine und Spielplätze für aktive Erholung sorgen.
Der Fellendsweg als Teil von Habenhausen ist eine ruhige Wohnstraße, die sich durch eine gepflegte Bebauung mit Einfamilien- und Reihenhäusern auszeichnet. Die verkehrsberuhigte Lage und die Nähe zu Grünflächen machen die Straße zu einer beliebten Adresse für Familien, Senioren und Paare. Schulen, Kindergärten und Spielplätze befinden sich in unmittelbarer Nähe, was die Wohnqualität zusätzlich erhöht. Insgesamt wird der Stadtteil, ebenso wie der Fellendsweg, als sicher und stabil wahrgenommen. Die Kriminalitätsrate ist niedrig, und die Nachbarschaft besteht aus einer gemischten Altersstruktur, die das Viertel lebendig und dennoch ruhig hält.
In den letzten Jahren hat Habenhausen von einer steigenden Nachfrage nach Wohnraum profitiert, da die Kombination aus naturnahem Wohnen und guter Anbindung an die Bremer Innenstadt sehr gefragt ist. Diese Entwicklung wird voraussichtlich anhalten, wodurch sich der Stadtteil und Straßen wie der Fellendsweg auch langfristig als attraktive Wohnorte behaupten werden.
Sonstige Angaben
Die Florian Wellmann Immobilien GmbH hat sich auf den Verkauf und die Vermietung von hochwertigen Immobilien spezialisiert. Seit Jahren sind wir erfolgreich am Immobilienmarkt tätig. Wir verkaufen und vermieten exklusive und außergewöhnliche Objekte in den bevorzugten Lagen von Bremen & Umgebung.
Wir sind durch beste regionale Kontakte gut vernetzt und können so unsere Objekte diskret und erfolgreich vermarkten.
Mit hohem Engagement und großer Motivation wickeln wir die Immobilien unserer Kunden ab. Beste Referenzen sprechen für unseren professionellen Service.
Sollten Sie noch weitere Informationen über unser Haus wünschen, werfen Sie einen Blick auf unsere Homepage
WWW.FLORIAN-WELLMANN.DE
Im Vorfeld bieten wir Ihnen gerne eine kostenfreie Bewertung Ihrer Immobilie an.
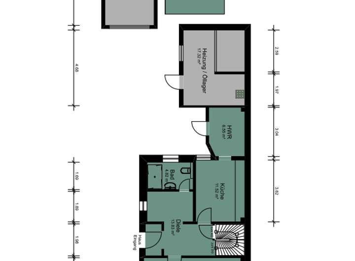
Grundriss
Grundriss Erdgeschoss
>
>
Grundriss Dachgeschoss
>
>
Adresse
28279 Bremen
Interessante Orte
Preis- und Lageinformationen
Preistrend für Bestandsimmobilien in Habenhausen