Das EVOLUTION 165 von Bien-Zenker ist mehr als nur ein Haus - es ist eine Leinwand für Ihre Träume und Vorstellungen. Mit einer großzügigen Wohnfläche von 160 Quadratmetern auf einem weitläufigen Grundstück von 699 Quadratmetern, bietet dieses projektierte Fertighaus in Tauberbischofsheim die perfekte Kombination aus Raum und Individualität. Die vielfältigen Architektur-Bauteile und die Wahl zwischen vier Dachformen ermöglichen es Ihnen, das Design Ihres Hauses nach Ihren Wünschen zu gestalten. In diesem Haus finden Sie nicht nur viel Platz und Licht, sondern auch zahlreiche Möglichkeiten für gemeinsames Erleben oder individuelle Rückzugsorte. Im Erdgeschoss vereinen sich familiäres Miteinander und berufliche Tätigkeiten harmonisch, während das Obergeschoss jedem Bewohner sein eigenes kleines Reich bietet.
Mit der Ausbaustufe "Zur Ausstattung fertig" (ZAF) haben Sie die Freiheit, selbst Hand anzulegen und Ihr Zuhause nach Ihren Vorstellungen zu vollenden. Wir kümmern uns um den Rohbau sowie den technischen Innenausbau, während Sie Böden verlegen, Malerarbeiten durchführen und Sanitärinstallationen vornehmen - so sparen Sie Kosten und können Ihre persönliche Note einbringen. Dies ist die ideale Lösung für handwerklich begabte Bauherren, die nicht nur Geld sparen möchten, sondern auch Freude daran haben, ihr Zuhause eigenhändig zu gestalten.
Bei Bien-Zenker steht nicht einfach das Bauen eines Hauses im Vordergrund - es geht darum, ein Zuhause zu schaffen. Mit über 115 Jahren Erfahrung zählt Bien-Zenker zu den größten Fertighausanbietern Deutschlands. Hier treffen Tradition und Innovation aufeinander, um Ihnen den Weg in Ihr neues Leben so angenehm wie möglich zu gestalten. Jedes Haus wird mit wohngesunden Materialien gefertigt und erfüllt zukunftsweisende Standards, sodass Sie sicher sein können: Bei Bien-Zenker sind Sie gut aufgehoben.
Grundrisse und Abbildungen können Extras zeigen. Flächenangaben nach DIN 277.
Ihr Traumhaus mit Bien-Zenker: Wo Visionen Wirklichkeit werden
97941 Tauberbischofsheim
Die vollständige Adresse der Immobilie erhalten Sie vom Anbieter.
Auf Karte anzeigen
Die vollständige Adresse der Immobilie erhalten Sie vom Anbieter.
Finanzierungszertifikat
In nur zwei Minuten zu Ihrem persönlichen Finanzierungszertifkat.
Infos
| Haustyp | Einfamilienhaus |
|---|---|
| Wohnfläche ca. | 156 m2 |
| Grundstücksfläche | 699 m2 |
| Zimmer | 5 |
Kosten
| Kaufpreis |
615.318 € |
|---|
Finanzierungsrechner:
Kaufpreis:
600.000 €
Eigenkapital:
600.000 €
Monatliche Rate
0 €
Effektiver Jahreszins
0 %
Sollzinsbindung
10 Jahre
Bausubstanz & Energieausweis
| Baujahr | unbekannt |
|---|---|
| Bauphase | Haus in Planung (projektiert) |
Beschreibung des Objekts
Ausstattung
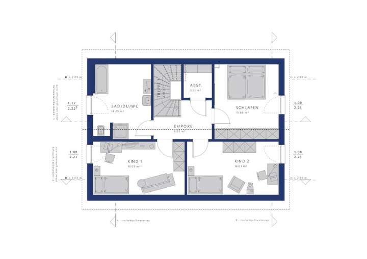
Insgesamt fünf Zimmer verteilen sich auf zwei Etagen dieser beeindruckenden Immobilie und bieten eine Wohnfläche von 160 Quadratmetern. Die intelligente Raumaufteilung ermöglicht eine klare Trennung zwischen dem lebendigen Erdgeschossbereich für gemeinsame Aktivitäten oder Homeoffice-Arbeiten und dem privateren Obergeschoss mit individuellen Rückzugsmöglichkeiten. Diese Struktur ist ideal für Familien geeignet, da sie sowohl Gemeinschaftsgefühl als auch Privatsphäre fördert.
Besondere Merkmale wie lichtdurchflutete Räume sorgen nicht nur für ein angenehmes Wohnambiente, sondern unterstreichen zudem das moderne Design des Hauses. Je nach Wunsch können Balkone oder Terrassen integriert werden, die zusätzlichen Raum für Entspannung im Freien bieten - perfekt für sonnige Nachmittage oder gesellige Abende mit Freunden. Auch optionale Abstellräume oder Kellerlösungen tragen zur Funktionalität bei und bieten Stauraum für Alltagsgegenstände.
Die Ausbaustufe "Zur Ausstattung fertig" bietet Ihnen die Möglichkeit zur aktiven Mitgestaltung Ihres neuen Heims. Während wir uns um den Rohbau kümmern sowie um technische Installationen wie Elektrik und Wasserleitungen, können Sie Ihrer Kreativität freien Lauf lassen bei der Gestaltung von Böden, Wandfarben und Badezimmern. Dieser Ansatz erlaubt es Ihnen nicht nur, Kosten zu reduzieren, sondern auch einen persönlichen Stil ins Haus zu bringen - ein echtes Heimwerkerparadies!
Lage
Tauberbischofsheim bietet eine hervorragende Lage mit einer Vielzahl an Möglichkeiten für Bildung, Gesundheit und Freizeit direkt vor Ihrer Haustür. Zahlreiche Schulen und Kindergärten sind in wenigen Minuten erreichbar - ideal für Familien mit schulpflichtigen Kindern. Das lokale Krankenhaus sorgt für umfassende medizinische Versorgung in der Nähe.
Für Ihre täglichen Besorgungen stehen Ihnen zahlreiche Einkaufsmöglichkeiten zur Verfügung; vom Supermarkt bis hin zu kleinen Fachgeschäften finden Sie alles Notwendige bequem erreichbar. Die malerische Umgebung lädt zudem zu ausgedehnten Spaziergängen oder Fahrradtouren ein - genießen Sie die Natur direkt vor Ihrer Tür.
Auch in puncto Verkehrsanbindung überzeugt Tauberbischofsheim: Der öffentliche Personennahverkehr ist gut ausgebaut und bringt Sie schnell in umliegende Städte oder Gemeinden. Zudem haben Sie über nahegelegene Autobahnen direkten Anschluss an größere Städte wie Würzburg oder Heidelberg - perfekt also auch für Pendler.
Sonstige Angaben
Der Preis ist zzgl. Baunebenkosten
Die Bilder, vor allem der Inneneinrichtung, können Sonderausstattungen
zeigen, die nicht im Preis inbegriffen sind!!
* Angaben beziehen sich auf das Basishaus ohne Architektur-Accessoires - Sonderbauteile-Erker Balkone usw
Ein Zwischenverkauf ist vorbehalten
Bitte haben Sie Verständnis, dass wir nur vollständig ausgefüllte Anfragen mit Tel.Nr etc. bearbeiten.
Planen Sie mit uns!!!
Planen Sie ihren Traum vom eigenen Haus mit uns.
Wir beraten Sie ausführlich und ehrlich (gerne auch individuelle Kundenhausbesichtigungen).
Gemeinsam schaffen wir die Grundlagen für Ihren
Hausbau.
Damit alles passt Sascha Henn und Bien Zenker
Ein Zwischenverkauf ist vorbehalten.
Grundriss
33034-2795-17-g
>
>
33037-2795-18-g
>
>
Adresse
97941 Tauberbischofsheim
Interessante Orte
Preis- und Lageinformationen
Preistrend für Bestandsimmobilien in Tauberbischofsheim