In einer ruhigen Sackgasse im beliebten Stine-Andresen-Weg 19 in Wyk auf Föhr befindet sich dieses attraktive Baugrundstück mit genehmigtem Bauvorhaben für eine Doppelhaushälfte als Teil eines frei stehenden Doppelhauses.
Das Grundstück liegt auf dem Flurstück 1/10+169 und wird vor Kaufvertragsabschluss in zwei Parzellen real geteilt, und überzeugt durch seine idyllische, familienfreundliche Lage in einer wenig befahrenen Anliegerstraße.
Das Besondere an diesem Grundstück: Die Doppelhaushälfte wurde bereits im Rahmen der Baugenehmigung als Ferienvermietungsobjekt zugelassen, sodass Sie hier die Wahl haben zwischen Eigennutzung, Langzeit- oder Kurzzeitvermietung.
Dies hier angebotene Baugrundstück für eine Doppelhaushälfte ist bereits als Ferienunterkunft für die Kurzzeitvermietung genehmigt, während die größere Einheit nebenan zur dauerhaften Wohnnutzung vorgesehen ist.
Die Grundrissgestaltung kann in Absprache mit dem Bauträger verändert werden. An der Kubatur des Gebäudes und der Grundflächenzahl muss festgehalten werden.
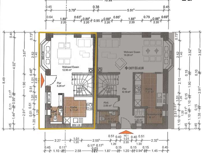
Flächenaufteilung:
- Erdgeschoss: 25,92 m²
- Dachgeschoss: 17,76 m²
- Kellergeschoss: 23,49 m²
- Gesamtfläche: 67,17 m²
Raumaufteilung:
- 2 Schlafzimmer
- 1 Wohn-/Esszimmer
- 1 Küche
- 1 Sauna mit Wellnessbereich
- 2 Badezimmer
Grundstück+Baugenehmigung für Doppelhaushälfte+Genehmigung für Ferienvermietung im Stine-Andresen-W.
25938 Wyk auf Föhr
Die vollständige Adresse der Immobilie erhalten Sie vom Anbieter.
Auf Karte anzeigen
Die vollständige Adresse der Immobilie erhalten Sie vom Anbieter.
Finanzierungszertifikat
In nur zwei Minuten zu Ihrem persönlichen Finanzierungszertifkat.
Infos
| Vermarktungsart | Kaufen |
|---|---|
| Grundstücksfläche | 225,6 m2 |
| Empfohlene Nutzung | Doppelhaus |
| Grundflächenzahl (GRZ) | 0.17 |
| Geschossflächenzahl (GFZ) | 0.34 |
| Verfügbar ab | sofort |
Kosten
| Miete pro Jahr |
307.718 € |
|---|---|
| Provision |
5,95% Für Baugrundstücke wird eine Käuferprovision in Höhe von 5%+19% MwSt. fällig. |
Finanzierungsrechner:
Kaufpreis:
600.000 €
Eigenkapital:
600.000 €
Monatliche Rate
0 €
Effektiver Jahreszins
0 %
Sollzinsbindung
10 Jahre
Beschreibung des Objekts
Lage
Das Grundstück liegt im beliebten Stine-Andresen-Weg in Wyk auf Föhr, einer der begehrtesten Wohnlagen der Insel. Die Umgebung ist geprägt von einer ruhigen, gewachsenen Nachbarschaft mit hochwertigen Einfamilienhäusern und gepflegten Gärten. Durch die Sackgassenlage ist kaum Verkehr vorhanden – ideal für Familien und Ruhesuchende.
Der Strand sowie das Stadtzentrum von Wyk mit Einkaufsmöglichkeiten, Restaurants und Cafés sind in etwa 10–12 Minuten fußläufig erreichbar. Auch die Infrastruktur ist hervorragend: Schulen, Ärzte, Bäcker und Freizeitangebote befinden sich in unmittelbarer Nähe.
Damit verbindet sie die Vorteile einer ruhigen Wohnlage mit der Möglichkeit zur touristischen Nutzung, was sie sowohl für Eigennutzer als auch Kapitalanleger besonders attraktiv macht.
Grundriss
Grundriss UG Ferienwohnung
>
>
Grundriss EG Ferienwohnung
>
>
Grundriss OG Ferienwohnung
>
>