Entdecken Sie Ihr neues Zuhause – ganz bequem von überall.
Erleben Sie die Immobilie in einem interaktiven 360°-Rundgang, als wären Sie bereits vor Ort.
Tipp:
Nachdem Sie den Link zum 360°-Rundgang geöffnet haben, erscheinen auf dem Bildschirmrand verschiedene Icons. Über diese können Sie den Rundgang wahlweise mit oder ohne Mobiliar anzeigen lassen. Außerdem haben Sie dort die Möglichkeit, sich die Grundrisse der Immobilie einzublenden – für einen noch besseren räumlichen Eindruck.
So erhalten Sie Zugang:
Sobald Sie Ihre Kontaktdaten eingegeben und den Maklervertrag bestätigt haben, schalten wir den virtuellen Rundgang für Sie frei.
Hinweis:
Der Link zur 360°-Aufnahme erscheint direkt im Web-Exposé, sobald der Zugang freigeschaltet wurde.
____________________________________________
Dieses großzügige Einfamilienhaus mit ca. 175 m² Wohnfläche befindet sich in ruhiger und zentraler Lage von Oldau – eingebettet in ein wunderschönes, parkähnliches Grundstück von rund 1.200 m². Das Haus ist in die Jahre gekommen und wartet darauf, in neuem Glanz zu erstrahlen – eine perfekte Gelegenheit für Handwerker, Familien oder alle, die ihren Wohntraum nach eigenen Vorstellungen gestalten möchten.
Erdgeschoss
Im Erdgeschoss erwartet Sie ein großzügiger Wohn- und Essbereich mit direktem Zugang zur Terrasse und zum Garten – ideal für gesellige Stunden und entspannte Abende.
Ein Badezimmer mit Wanne und Dusche, ein separates Gäste-WC sowie ein weiteres Zimmer, das sich als Schlafzimmer oder Arbeitszimmer anbietet, runden das Raumangebot auf dieser Ebene ab.
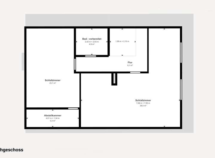
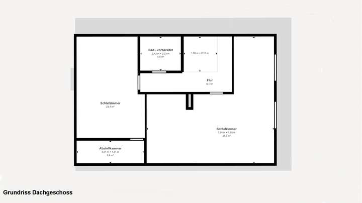
Dachgeschoss
Das Dachgeschoss bietet ein großes Schlafzimmer mit Zugang zu einer geräumigen Loggia mit Blick zur Straße sowie ein weiteres Schlafzimmer. Alle Anschlüsse für ein zusätzliches Badezimmer sind bereits vorbereitet – hier können Sie Ihre individuellen Ideen leicht umsetzen.
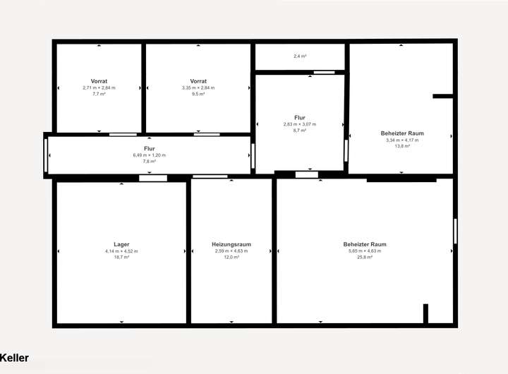
Keller & Nebengebäude
Das Haus ist voll unterkellert und verfügt über zwei beheizte Räume, ideal als Hobbyraum oder Werkstatt nutzbar.
Der Keller ist über einen separaten Außenzugang erreichbar.
Eine große Garage, ein Geräteschuppen sowie eine Gartenpumpe ergänzen das attraktive Gesamtpaket.
Fazit
Ein charmantes Zuhause mit Platz, Charakter und Potenzial – ideal für alle, die den besonderen Reiz eines gewachsenen Grundstücks und die Möglichkeit zur individuellen Modernisierung schätzen.
Vereinbaren Sie gerne einen Besichtigungstermin vor Ort – ich freue mich auf Ihre Anfrage!
Herzlichst,
Oliver Stark
Einfamilienhaus mit großem parkähnlichem Grundstück in Oldau
29313 Hambühren
Die vollständige Adresse der Immobilie erhalten Sie vom Anbieter.
Auf Karte anzeigen
Die vollständige Adresse der Immobilie erhalten Sie vom Anbieter.
Finanzierungszertifikat
In nur zwei Minuten zu Ihrem persönlichen Finanzierungszertifkat.
Infos
| Haustyp | Einfamilienhaus |
|---|---|
| Wohnfläche ca. | 175 m2 |
| Grundstücksfläche | 1.158 m2 |
| Zimmer | 4 |
| Schlafzimmer | 3 |
| Badezimmer | 1 |
Kosten
| Kaufpreis |
299.000 € |
|---|---|
| Provision |
3,57 % inkl. ges. MwSt. Die Käuferprovision in Höhe von 3,57% inkl. MwSt. vom beurkundeten Kaufpreis ist verdient und fällig bei Abschluss des notariellen Kaufvertrages. Der Immobilienmakler hat einen provisionspflichtigen Maklervertrag in gleicher Höhe mit dem Verkäufer abgeschlossen (Maklervertrag nach §656c BGB). |
Finanzierungsrechner:
Kaufpreis:
600.000 €
Eigenkapital:
600.000 €
Monatliche Rate
0 €
Effektiver Jahreszins
0 %
Sollzinsbindung
10 Jahre
Bausubstanz & Energieausweis
| Baujahr | 1979 |
|---|---|
| Bauphase | Haus fertig gestellt |
| Objektzustand | Renovierungsbedürftig |
| Heizungsart | Zentralheizung |
| Wesentliche Energieträger | Öl |
| Energieausweis | liegt vor |
| Energieausweistyp | Verbrauchsausweis |
| Energieverbrauchskennwert | 173,0 kWh/(m²*a) |
| Energieeffizienzklasse | F |
173,0
kWh/(m²*a)
Energieeffizienzklasse F
- A+
- A
- B
- C
- D
- E
- F
- G
- H
- 0
- 25
- 50
- 75
- 100
- 125
- 150
- 175
- 200
- 225
- >250
Beschreibung des Objekts
Ausstattung
Individuelle Ausstattungsmerkmale:
- Einbauküche
- Gartenhaus
- Rollläden
- Garage
° Wohnfläche: ca. 175 m²
° Grundstück: ca. 1.200 m²
° Baujahr: 1979
° Ölzentralheizung aus dem Jahr 2007
° Große Terrasse mit Blick in den parkähnlichen Garten
° Loggia im Obergeschoss
° Vollkeller mit zwei beheizten Räumen
° Großzügige Garage und Geräteschuppen
° Viel Gestaltungspotenzial
Lage
Oldau ist ein idyllischer Ortsteil der Gemeinde Hambühren und liegt malerisch an der Aller. Der kleine, gewachsene Ort überzeugt durch seine ruhige Wohnlage, viel Grün und eine enge Dorfgemeinschaft. Umgeben von Feldern und Wäldern bietet Oldau eine entspannte Atmosphäre – ideal für alle, die Natur und Gelassenheit schätzen.
Im Ort selbst befinden sich eine Kindertagesstätte, ein Sportverein sowie verschiedene Freizeitangebote. Besonders beliebt ist der historische Schleusenpark mit seiner Brücke über die Aller – ein Ort, an dem man Spaziergänge und den Blick aufs Wasser genießen kann.
Für den täglichen Bedarf stehen in Hambühren – nur wenige Fahrminuten entfernt – Supermärkte, Ärzte, Schulen und weitere Einrichtungen zur Verfügung. Die Kreisstadt Celle erreicht man in etwa zehn Minuten. Dort erwarten Sie eine charmante Altstadt, zahlreiche Einkaufsmöglichkeiten und ein vielseitiges Kulturangebot.
Über die Landesstraße L310 besteht eine sehr gute Anbindung an Celle, Winsen (Aller) und Bergen. Auch die B214 und die B3 sind schnell erreichbar, wodurch Oldau sich hervorragend für Pendler eignet.
Fazit:
Oldau verbindet ländliche Ruhe, naturnahe Umgebung und gute Erreichbarkeit zu einem harmonischen Wohnumfeld – ein Ort zum Durchatmen und Wohlfühlen.
Sonstige Angaben
Käuferprovision:
Die Käuferprovision beträgt 3,57 % inkl. MwSt. des beurkundeten Kaufpreises und ist bei Abschluss des notariellen Kaufvertrages verdient und fällig.
Der Immobilienmakler hat mit dem Verkäufer einen provisionspflichtigen Vertrag in gleicher Höhe gemäß § 656c BGB abgeschlossen.
Wichtige Informationen:
Bitte beachten Sie, dass nur Anfragen mit vollständigen Angaben wie Name, Adresse, E-Mail-Adresse und Telefonnummer bearbeitet werden können. Nach erfolgreicher Anmeldung erhalten Sie eine E-Mail mit einem Link zum Web-Exposé. Bitte bestätigen Sie dort den Maklervertrag. Anschließend stellen wir Ihnen die Adresse der Immobilie sowie das Exposé zum Download zur Verfügung. Überprüfen Sie bitte auch Ihren Spam-Ordner, falls Sie die E-Mail nicht in Ihrem Posteingang finden.
Unser Serviceversprechen:
Im Rahmen unserer Alleinaufträge widmen wir uns mit höchster Sorgfalt und neutraler Wahrung aller Interessen dem erfolgreichen Abschluss des Kaufvertrages. Trotz sorgfältiger Prüfung der uns vom Eigentümer zur Verfügung gestellten Informationen können wir keine Gewähr für deren Richtigkeit übernehmen. Dieses Angebot ist freibleibend und unverbindlich, und alle Angaben sollten vom Käufer eigenständig überprüft werden. Eine fachkundige Beratung auf eigene Kosten wird empfohlen.
Unser Anspruch – Vertrauen und Zuverlässigkeit für Ihre Immobilienbedürfnisse:
Wir sehen uns nicht nur als Dienstleister, sondern als verlässlicher Partner auf Ihrem Weg zur Traumimmobilie. Unser Ziel ist es, Ihnen den Kauf oder Verkauf so angenehm und reibungslos wie möglich zu gestalten. Ob Sie ein Baugrundstück suchen, ein Haus verkaufen oder in eine Kapitalanlage investieren möchten – wir bieten Ihnen eine umfassende und maßgeschneiderte Beratung, die auf Ihre individuellen Wünsche abgestimmt ist.
Als erfahrener Experte für private und gewerbliche Wohnimmobilien in Celle, Hannover und Umgebung stehe ich Ihnen kompetent zur Seite.
Kontakt: Oliver Stark - Tel. 0178 273 6311
Zusatzservices für Sie – Alles aus einer Hand:
Damit Ihr Immobilienwechsel so reibungslos wie möglich verläuft, bieten wir Ihnen eine Vielzahl an zusätzlichen Dienstleistungen, die Sie in jeder Phase des Prozesses unterstützen. So können Sie sich ganz auf Ihr neues Zuhause konzentrieren, während wir den Rest für Sie erledigen.
# Finanzierungsvermittlung:
Der Erwerb einer Immobilie ist eine wichtige Entscheidung, die oft eine maßgeschneiderte Finanzierung erfordert. Wir unterstützen Sie dabei, die passende Finanzierungslösung zu finden, die optimal zu Ihren individuellen Bedürfnissen und Ihrer finanziellen Situation passt. Dabei arbeiten wir mit vertrauenswürdigen Banken und Finanzdienstleistern zusammen, um Ihnen die besten Konditionen zu sichern und den Finanzierungsprozess schnell und unkompliziert zu gestalten.
# Vermittlung von Fachfirmen:
Ein Umzug, eine Renovierung oder Sanierung kann mit vielen Herausforderungen verbunden sein. Damit Sie sich auf das Wesentliche konzentrieren können, vermitteln wir Ihnen erfahrene Handwerksbetriebe und Fachfirmen, die Sie bei Renovierungsarbeiten, Umbauten oder dem Umzug in Ihre neue Immobilie unterstützen. Wir sorgen dafür, dass Sie zuverlässige und qualifizierte Experten an Ihrer Seite haben, die Ihre Wünsche professionell umsetzen.
# Verkauf Ihrer alten Immobilie:
Der Verkauf Ihrer bisherigen Immobilie kann oft eine zeitaufwändige und stressige Aufgabe sein. Wir nehmen Ihnen diese Last ab, indem wir den gesamten Verkaufsprozess für Sie übernehmen. Vom Marktwertgutachten über die Verkaufsstrategie bis hin zur Verhandlung und dem Abschluss des Verkaufs – wir kümmern uns um alle Details. So können Sie sich ganz auf den Kauf und die Gestaltung Ihres neuen Zuhauses konzentrieren, ohne sich um den Verkauf Ihrer alten Immobilie sorgen zu müssen.
Grundriss
Grundriss Keller
>
>
Grundriss Erdgeschoss
>
>
Grundriss Dachgeschoss
>
>
Adresse
29313 Hambühren
Interessante Orte
Preis- und Lageinformationen
Preistrend für Bestandsimmobilien in Hambühren