In einer ruhigen Sackgasse im beliebten Stine-Andresen-Weg 19 in Wyk auf Föhr befindet sich dieses attraktive Baugrundstück mit genehmigtem Bauvorhaben für ein frei stehendes Einfamilienhaus mit zwei Doppelhaushälften.
Das 535 m² große Grundstück liegt auf dem Flurstück 170 und überzeugt durch seine idyllische, familienfreundliche Lage in einer wenig befahrenen Anliegerstraße – ideal für Eigennutzer, Kapitalanleger oder Bauträger mit Blick auf ein nachhaltiges Renditekonzept.
Die erteilte Baugenehmigung umfasst den Bau eines freistehenden Hauses mit Satteldach und zwei vollständig separaten Wohneinheiten. Beide Einheiten verfügen über eigene Eingänge und können unabhängig voneinander genutzt werden. Dieses Konzept bietet maximale Flexibilität – ideal für die Kombination aus Eigennutzung und Vermietung oder als reine Kapitalanlage.
Die kleinere Doppelhaushälfte ist bereits als Ferienunterkunft für die Kurzzeitvermietung genehmigt, während die größere Einheit zur dauerhaften Wohnnutzung vorgesehen ist. Damit lässt sich privates Wohnen mit attraktiven Mieteinnahmen optimal verbinden. Das Projekt bietet ein hervorragendes Renditepotenzial und eine zukunftssichere Investitionsmöglichkeit auf der beliebten Nordseeinsel Föhr.
Einheit 1 – genehmigt als Ferienunterkunft
Diese kleinere Doppelhaushälfte ist gemäß Baugenehmigung für die Kurzzeitvermietung als Ferienwohnung vorgesehen. Die Grundrissgestaltung kann in Absprache mit dem Bauträger verändert werden. An der Kubatur des Gebäudes und der Grundflächenzahl muss festgehalten werden.
Flächenaufteilung:
- Erdgeschoss: 25,92 m²
- Dachgeschoss: 17,76 m²
- Kellergeschoss: 23,49 m²
- Gesamtfläche: 67,17 m²
Raumaufteilung:
- 2 Schlafzimmer
- 1 Wohn-/Esszimmer
- 1 Küche
- 1 Sauna mit Wellnessbereich
- 2 Badezimmer
Einheit 2 – Wohneinheit (Eigenbedarf oder Vermietung)
Die zweite, größere Doppelhaushälfte ist für die Wohnnutzung vorgesehen und überzeugt durch eine großzügige Aufteilung sowie vielseitige Nutzungsmöglichkeiten – ideal für den Eigenbedarf, als Zweitwohnsitz oder zur langfristigen Vermietung. Auch hier gibt es noch Einfluss auf die Raumaufteilung. Beispielsweise ist es denkbar, einzelne Räume durch den Verzicht eines Badezimmers zu vergrößern.
Flächenaufteilung:
- Erdgeschoss: 40,26 m²
- Dachgeschoss: 31,38 m²
- Kellergeschoss: 38,43 m²
- Gesamtfläche: 110,07 m²
Raumaufteilung:
- 3 Schlafzimmer
- 1 großzügiger Wohn-/Essbereich
- 1 Küche
- 1 Sauna mit Wellnessbereich
- 4 Badezimmer
Weitere Optionen:
Bauträgerangebot: Bei Interesse kann den Käufern ein Angebot eines lokal tätigen Bauträgers zur schlüsselfertigen Umsetzung des genehmigten Bauvorhabens mitgeliefert werden.
Teilungsmöglichkeit: Es besteht die Option, das Grundstück real zu teilen, sodass zwei Parzellen im Verhältnis 40/60 entstehen. Dies eröffnet interessante Möglichkeiten – beispielsweise den Bau beider Doppelhaushälften mit anschließendem Verkauf einer fertigen Einheit. Sollte ein solches Vorhaben für den Käufer interessant sein, kann der jetzige Eigentümer die Teilung auf Wunsch bereits vorab beantragen.
Nachbargrundstück: Direkt neben dem Grundstück steht derzeit ein weiteres Baugrundstück mit nahezu identischen Maßen zum Verkauf – ideal für Interessenten, die eine größere Projektentwicklung oder zusammenhängende Flächen anstreben.
Grundstück+Baugenehmigung für Doppelhaus + Genehmigung für Ferienvermietung im Stine-Andresen-Weg
25938 Wyk auf Föhr
Die vollständige Adresse der Immobilie erhalten Sie vom Anbieter.
Auf Karte anzeigen
Die vollständige Adresse der Immobilie erhalten Sie vom Anbieter.
Finanzierungszertifikat
In nur zwei Minuten zu Ihrem persönlichen Finanzierungszertifkat.
Infos
| Vermarktungsart | Kaufen |
|---|---|
| Grundstücksfläche | 535 m2 |
| Erschließung | Erschlossen |
| Grundflächenzahl (GRZ) | 0.17 |
| Geschossflächenzahl (GFZ) | 0.34 |
| Bebaubar nach | Bebauungsplan |
| Verfügbar ab | sofort |
Kosten
| Miete pro Jahr |
729.740 € |
|---|---|
| Provision |
5,95% Für Baugrundstücke wird eine Käuferprovision in Höhe von 5%+19% MwSt. fällig. |
Finanzierungsrechner:
Kaufpreis:
600.000 €
Eigenkapital:
600.000 €
Monatliche Rate
0 €
Effektiver Jahreszins
0 %
Sollzinsbindung
10 Jahre
Beschreibung des Objekts
Lage
Das Grundstück liegt im beliebten Stine-Andresen-Weg in Wyk auf Föhr, einer der begehrtesten Wohnlagen der Insel. Die Umgebung ist geprägt von einer ruhigen, gewachsenen Nachbarschaft mit hochwertigen Einfamilienhäusern und gepflegten Gärten. Durch die Sackgassenlage ist kaum Verkehr vorhanden – ideal für Familien und Ruhesuchende.
Der Strand sowie das Stadtzentrum von Wyk mit Einkaufsmöglichkeiten, Restaurants und Cafés sind in etwa 10–12 Minuten fußläufig erreichbar. Auch die Infrastruktur ist hervorragend: Schulen, Ärzte, Bäcker und Freizeitangebote befinden sich in unmittelbarer Nähe.
Damit verbindet sie die Vorteile einer ruhigen Wohnlage mit der Möglichkeit zur touristischen Nutzung, was sie sowohl für Eigennutzer als auch Kapitalanleger besonders attraktiv macht.
Sonstige Angaben
Besonderheiten & Optionen
Ruhige Lage in einer Sackgasse – familienfreundlich, verkehrsarm und naturnah
Genehmigtes Bauvorhaben – sofort realisierbar
Kombination aus Ferien- und Wohneinheit für maximale Flexibilität
Attraktives Renditepotenzial durch touristische und dauerhafte Vermietung
Voll erschlossenes Baugrundstück
Hervorragende Lage in Wyk auf Föhr – hoher Freizeit- und Erholungswert
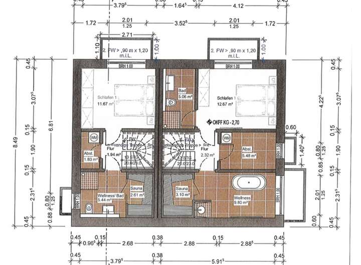
Grundriss
Grundriss EG Gesamt
>
>
Grundriss OG Gesamt
>
>
Grundriss UG Gesamt
>
>