Ursprünglich im Jahr 1956 errichtet und 1965 um einen Anbau erweitert, verfügt das Reihenendhaus über fünf Zimmer, die sich auf etwa 109 m² Wohnfläche in Erd- und Dachgeschoss verteilen. Aufgrund der Zimmeranzahl und der Größe der Wohnfläche eignet sich das Reihenhaus ideal für Paare und Familien. Wenngleich die Immobilie von den Eigentümern gepflegt wurde, bedarf es einer zeitgemäßen Auffrischung.
Auf folgende Ausstattungsdetails möchten wir besonders hinweisen:
- Holzfenster mit Isolierverglasung
- Außenrollläden (tlw. elektrisch)
- Küche mit Einbaumöbeln
- Terrasse vom Wohnzimmer begehbar
- Balkon an einem der Schlafzimmer im Obergeschoss
- Tageslichtbad mit Badewanne im Obergeschoss
- Vollbad mit Fenster im Keller
- Praktischer Stauraum im Vollkeller und in dem Dachgeschoss
- Eine Garage sowie ein abgeschlossener Carport dienen derzeit für Gartengeräte als Unterstand
- Gas-Zentralheizung von 2010
Ein Zuhause mit Möglichkeiten - Reihenendhaus mit Potenzial in ruhiger Wohnlage
28755 Bremen
Die vollständige Adresse der Immobilie erhalten Sie vom Anbieter.
Auf Karte anzeigen
Die vollständige Adresse der Immobilie erhalten Sie vom Anbieter.
Finanzierungszertifikat
In nur zwei Minuten zu Ihrem persönlichen Finanzierungszertifkat.
Infos
| Haustyp | Reiheneckhaus |
|---|---|
| Wohnfläche ca. | 109 m2 |
| Grundstücksfläche | 520 m2 |
| Bezugsfrei ab | |
| Zimmer | 5 |
| Schlafzimmer | 3 |
| Badezimmer | 2 |
Kosten
| Kaufpreis |
163.000 € |
|---|---|
| Provision |
3,57% inkl. gesetzl. MwSt. vom beurkundeten Kaufpreis Provisionspflichtig für den Käufer! Unsere Objektangaben basieren auf den uns erteilten Informationen. Eine Haftung für die Richtigkeit und Vollständigkeit können wir deshalb nicht übernehmen. |
Finanzierungsrechner:
Kaufpreis:
600.000 €
Eigenkapital:
600.000 €
Monatliche Rate
0 €
Effektiver Jahreszins
0 %
Sollzinsbindung
10 Jahre
Bausubstanz & Energieausweis
| Baujahr | 1956 |
|---|---|
| Heizungsart | Zentralheizung |
| Wesentliche Energieträger | Gas |
| Energieausweis | liegt vor |
| Energieausweistyp | Bedarfsausweis |
| Energieverbrauchskennwert | 252,5 kWh/(m²*a) |
| Energieeffizienzklasse | H |
252,5
kWh/(m²*a)
Energieeffizienzklasse H
- A+
- A
- B
- C
- D
- E
- F
- G
- H
- 0
- 25
- 50
- 75
- 100
- 125
- 150
- 175
- 200
- 225
- >250
Ausstattung
Lage
Das angebotene Reihenendhaus befindet sich in ruhiger und dennoch zentraler Wohnlage von Aumund-Hammersbeck mit einer hervorragenden infrastrukturellen Anbindung.
Der Bahnhof Klinikum-Bremen-Nord/Beckedorf sowie eine Bushaltestelle sind fußläufig zu erreichen. Ebenfalls ist eine Auffahrt zur A 270 nicht weit entfernt. Einkaufsmöglichkeiten des täglichen Bedarfs befinden sich in fußläufiger Nähe. Das Mittelzentrum Vegesack mit seinen vielfältigen Einkaufsmöglichkeiten ist nur ca. 2 km entfernt und mit dem PKW in maximal fünf Minuten zu erreichen. Kindergärten und Grundschulen sind ebenfalls schnell erreicht. Weiterführende Schulen sind im nahegelegenen Vegesack vorhanden.
Das Naherholungsgebiet um die Beeke und um den Burgwall sowie Wätjens Park laden zum Erholen, zu Spaziergängen und Sport treiben ein.
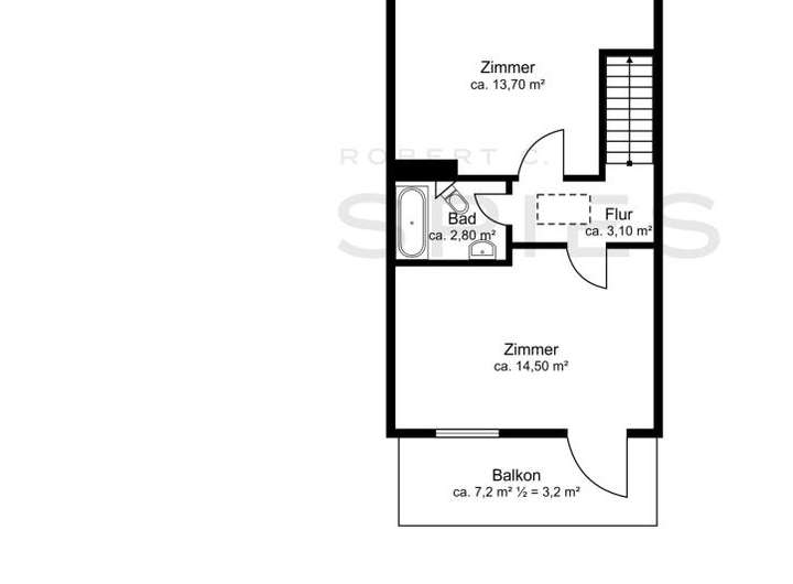
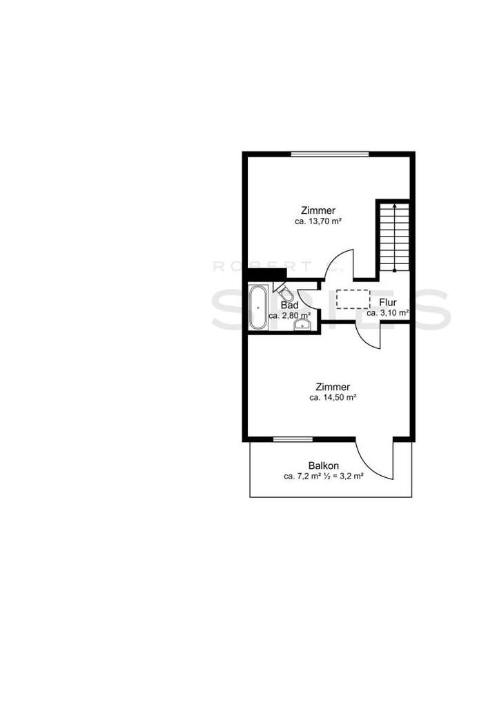
Grundriss
Erdgeschoss
>
>
Dachgeschoss
>
>
Keller
>
>
Adresse
28755 Bremen
Interessante Orte
Preis- und Lageinformationen
Preistrend für Bestandsimmobilien in Fähr-Lobbendorf