Haben wir Ihr Interesse geweckt?
Wichtig - bitte rufen Sie uns an oder teilen Sie uns Ihre Telefonnummer mit. Wir bitten um Ihr Verständnis, dass wir keine Exposés ohne ein vorheriges Gespräch versenden.
Ihr Engel & Völkers Team Hamburg Alster
Tel.: 040-471 00 50
E-Mail: Alster@engelvoelkers.com
Weitere Details:
• Einzigartige, ruhig gelegene Townhouse-Lage mit nur wenigen Schritten zur Alster und nahe vielfältiger Einkaufs- und Ausgehmöglichkeiten
• Besondere Symbiose aus Alt und Neu: Revitalisierte Remise wurde 2021 aufwendig neu konzipiert. Entstanden ist eine charakterstarke Stadtvilla mit höchsten Qualitätsanspruch, die industrielles Design mit historischen Elementen vereint
• Verstecktes, ca. 400 m² großes Südwest-Grundstück mit einer reizvoll angelegten Zuwegung u.a. durch Grünfläche, altem Baumbestand, Rhododendren und Heckeneinfriedungen
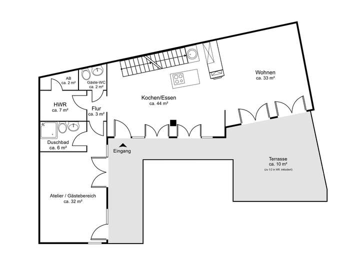
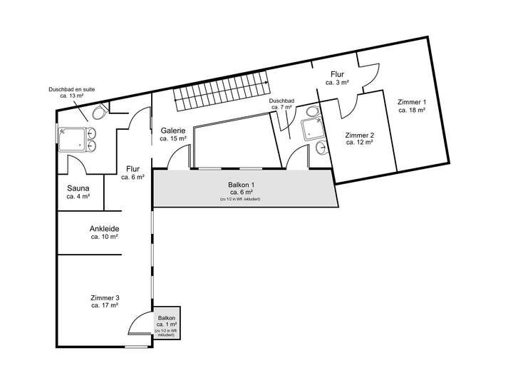
• Durchdachter Grundriss mit vielen Nutzungsmöglichkeiten und loftartigem Wohngefühl, unterstrichen u.a. durch den ca. 77 m² großen Wohn-, Ess- und Kochbereich, die bis zu 3,40 m hohen Decken sowie die vielzähligen, bodentiefen Fensterelemente
Bildquelle: Jörg Bucher
Design trifft Geschichte - Ein Kleinod wie kein anderes!
22087 Hamburg
Die vollständige Adresse der Immobilie erhalten Sie vom Anbieter.
Auf Karte anzeigen
Die vollständige Adresse der Immobilie erhalten Sie vom Anbieter.
Finanzierungszertifikat
In nur zwei Minuten zu Ihrem persönlichen Finanzierungszertifkat.
Infos
| Haustyp | Einfamilienhaus |
|---|---|
| Wohnfläche ca. | 243 m2 |
| Grundstücksfläche | 0 m2 |
| Zimmer | 6 |
| Schlafzimmer | 4 |
| Badezimmer | 3 |
| Anzahl Garage/Stellplatz | 2 |
Kosten
| Kaufpreis |
3.440.000 € |
|---|---|
| Preis für Garage/Stellplatz | 50.000 € |
| Provision |
siehe Sonstiges |
Finanzierungsrechner:
Kaufpreis:
600.000 €
Eigenkapital:
600.000 €
Monatliche Rate
0 €
Effektiver Jahreszins
0 %
Sollzinsbindung
10 Jahre
Bausubstanz & Energieausweis
| Baujahr | 1800 |
|---|---|
| Letzte Sanierung | 2021 |
| Objektzustand | Neuwertig |
| Heizungsart | Fußbodenheizung |
| Wesentliche Energieträger | Fernwärme |
| Energieausweis | liegt vor |
| Energieausweistyp | Bedarfsausweis |
| Energieverbrauchskennwert | 41,3 kWh/(m²*a) |
| Energieeffizienzklasse | A |
41,3
kWh/(m²*a)
Energieeffizienzklasse A
- A+
- A
- B
- C
- D
- E
- F
- G
- H
- 0
- 25
- 50
- 75
- 100
- 125
- 150
- 175
- 200
- 225
- >250
Beschreibung des Objekts
Ausstattung
Dielenboden
Kamin
Lage
Hier wohnen Sie, wo Hamburg charmant und persönlich ist – ein Ort, an dem Ruhe auf urbanes Leben trifft. Die Buchtstraße liegt im traditionsreichen Stadtteil Hohenfelde und ist geprägt von gepflegten Altbauten, grünen Vorgärten und einer angenehm zurückhaltenden Nachbarschaftsatmosphäre. Mit nur wenigen Schritten bietet das Alsterufer Raum für Bewegung, Erholung und herrliche Ausblicke aufs Wasser.
Charmante Cafés, individuelle Geschäfte und inhabergeführte Restaurants verleihen dem Viertel Charakter und Lebensqualität. Schulen, Kitas sowie alle Einrichtungen des täglichen Bedarfs sind fußläufig erreichbar. Die sehr gute Anbindung an den öffentlichen Nahverkehr sowie die Nähe zur Hamburger Innenstadt sorgen für eine perfekte Verbindung aus Rückzug und urbaner Freiheit – ein Zuhause mit Stil, Geschichte und Substanz.
Sonstige Angaben
Die Courtage in Höhe von 3,57 % inkl. 19 % MwSt. auf den Kaufpreis ist mit dem Zustandekommen des Kaufvertrages (notarieller Vertragsabschluss) verdient und fällig. Käufer und Verkäufer schulden die Courtage aufgrund separater Vereinbarungen in Textform in gleicher Höhe. Die Vermittelnden und/oder Nachweisenden, E+V Hamburg Immobilien GmbH (Lizenznehmer der Engel & Völkers Residential GmbH) und ggf. deren Beauftragter, erhalten einen unmittelbaren Zahlungsanspruch gegenüber dem Käufer und dem Verkäufer.
Alle Angaben sind ohne Gewähr und basieren ausschließlich auf Informationen, die uns von unserem Auftraggeber zur Verfügung gestellt wurden. Wir übernehmen keine Gewähr für die Vollständigkeit, Richtigkeit und Aktualität dieser Angaben. Die Grunderwerbsteuer, Notar- und Grundbuchkosten sind vom Käufer zu tragen. Im Übrigen gelten unsere Allgemeinen Geschäftsbedingungen. Irrtum und Zwischenverkauf vorbehalten. Hinweise, wie Engel & Völkers Daten verarbeitet, finden Sie unter www.engelvoelkers.com/de-de/hamburg/alster-elbe/datenschutz/
Adresse
22087 Hamburg
Interessante Orte
Preis- und Lageinformationen
Preistrend für Bestandsimmobilien in Hohenfelde