Dieses interessante Reihenendhaus im Pommernring 10 in Lübeck wurde ca. 1963 erbaut
und befindet sich auf einem 435 m² großen Erbbaugrundstück der Hansestadt Lübeck.
Das Erbbaurecht läuft noch bis zum Jahr 2058, der jährliche Erbbauzins beträgt dabei
aktuell lediglich 94,61 €. Mit einer Wohnfläche von ca. 71 m² und insgesamt vier Zimmern
bietet das Haus eine durchdachte Raumaufteilung für Paare oder kleine Familien. Das
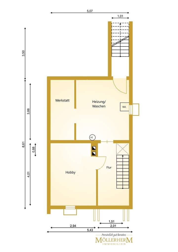
Haus verfügt über einen Vollkeller mit separatem Außenzugang zum Garten, einem
Heizungsraum mit Waschmaschinenanschluss, einer kleinen Werkstatt sowie einem
vielseitig nutzbaren Hobbyraum.
Im Erdgeschoss erwarten Sie eine Küche mit Ceranfeld, Umluftherd, Dunstabzugshaube
und Spülmaschine sowie ein gemütliches Wohnzimmer mit Laminatboden. Von hier aus gelangen Sie direkt auf die sonnige Terrasse, die durch eine Markise beschattet werden kann – ideal für entspannte Stunden im Freien.
Das Dachgeschoss beherbergt ein modernisiertes (2022) Duschbad mit Handtuchwärmer, ein Schlafzimmer sowie zwei Kinderzimmer, alle mit pflegeleichtem
Laminat ausgestattet. Die weißen Kunststofffenster sind zweifach verglast und sorgen für angenehme Lichtverhältnisse.
Beheizt wird das Haus über eine Gaszentralheizung, für die Warmwasserversorgung
sorgt ein elektrischer Durchlauferhitzer. Abgerundet wird dieses attraktive Angebot
durch einen eigenen KFZ-Stellplatz direkt am Haus. Dieses Reihenendhaus vereint eine
ruhige Wohnlage mit guter Anbindung und ist ein ideales Zuhause mit Potenzial.
Zuhause mit großem Garten - Gemütliches Reihenendhaus mit Keller und Stellplatz
23569 Lübeck
Die vollständige Adresse der Immobilie erhalten Sie vom Anbieter.
Auf Karte anzeigen
Die vollständige Adresse der Immobilie erhalten Sie vom Anbieter.
Finanzierungszertifikat
In nur zwei Minuten zu Ihrem persönlichen Finanzierungszertifkat.
Infos
| Haustyp | Reiheneckhaus |
|---|---|
| Wohnfläche ca. | 71 m2 |
| Grundstücksfläche | 435 m2 |
| Bezugsfrei ab | sofort |
| Zimmer | 4 |
| Schlafzimmer | 3 |
| Badezimmer | 1 |
| Garage/Stellplatz | Außenstellplatz |
| Anzahl Garage/Stellplatz | 1 |
Kosten
| Kaufpreis |
195.000 € |
|---|---|
| Provision | Nein |
Finanzierungsrechner:
Kaufpreis:
600.000 €
Eigenkapital:
600.000 €
Monatliche Rate
0 €
Effektiver Jahreszins
0 %
Sollzinsbindung
10 Jahre
Bausubstanz & Energieausweis
| Baujahr | 1963 |
|---|---|
| Qualität der Austattung | Einfach |
| Heizungsart | Zentralheizung |
| Wesentliche Energieträger | Gas |
| Energieausweis | liegt vor |
| Energieausweistyp | Bedarfsausweis |
| Energieverbrauchskennwert | 310,8 kWh/(m²*a) |
| Energieeffizienzklasse | H |
310,8
kWh/(m²*a)
Energieeffizienzklasse H
- A+
- A
- B
- C
- D
- E
- F
- G
- H
- 0
- 25
- 50
- 75
- 100
- 125
- 150
- 175
- 200
- 225
- >250
Beschreibung des Objekts
Ausstattung
- Reihenendhaus
- Baujahr ca. 1963
- Erbbaugrundstück 435 m²
- Erbbaurecht der Stadt Lübeck bis 2058
- Erbbauzins 94,61 € pro Jahr
- Wohnfläche ca. 71 m²
- 4 Zimmer
- Vollkeller mit Zugang zum Garten
- Gaszentralheizung
- elektrischer Durchlauferhitzer
- Kunststofffenster weiß 2fach verglast
- Markise
- KFZ-Stellplatz
Kellergeschoss:
- Heizungskeller mit
- Waschmaschinenanschluss
- Außenzugang zum Garten
- Werkstatt
- Hobbyraum
Erdgeschoss:
- Küche mit Ceranfeld, Umluftherd,
- Umlufthaube, Spülmaschine
- Wohnzimmer
- Kaminofen möglich (Austausch erforderlich)
- Laminat
- Austritt auf Terrasse
Dachgeschoss:
- Bad mit Dusche (neu 2022) und
- Handtuchwärmer
- Schlafzimmer
- 2 Kinderzimmer
- Laminatfußboden
Lage
Das Reihenendhaus liegt im Pommernring 10 im beliebten Lübecker Stadtteil Kücknitz –
einem grünen, gut angebundenen Wohngebiet im Nordosten der Hansestadt. Die Lage
in einer kleinen Straße mit nur wenigen Anwohnern bietet eine entspannte,
familienfreundliche Atmosphäre mit hohem Wohnwert.
Kücknitz verfügt über eine hervorragende Infrastruktur. Einkaufsmöglichkeiten,
Supermärkte, Apotheken, Ärzte und Bäcker sind schnell erreichbar. Schulen,
Kindergärten sowie diverse Freizeit- und Sporteinrichtungen befinden sich ebenfalls in
der näheren Umgebung, was den Stadtteil besonders für Familien attraktiv macht.
Die Verkehrsanbindung ist sehr gut: Mit dem Auto erreichen Sie die Lübecker
Innenstadt in etwa 20 Minuten, ebenso die Ostseeautobahn A1. Die Bahnhaltestelle
„Lübeck-Kücknitz“ ermöglicht zudem eine schnelle Verbindung in Richtung Zentrum
oder nach Travemünde. Hamburg liegt nur etwa eine Stunde entfernt und ist bequem
mit dem Auto oder Zug erreichbar.
Besonders reizvoll ist die Nähe zur Natur: Das nahe gelegene Dummersdorfer Ufer, der
Waldhusener Forst sowie die Trave bieten hervorragende Möglichkeiten für Spaziergänge,
Radtouren und Erholung im Grünen. Die Ostsee mit dem beliebten Seebad Travemünde
ist in wenigen Minuten erreichbar und lädt das ganze Jahr über zum Verweilen ein.
Auch kulturell hat Kücknitz einiges zu bieten: Heimatmuseum, Veranstaltungen und ein
lebendiges Vereinsleben sorgen für eine enge Nachbarschaft und ein starkes
Gemeinschaftsgefühl.
Insgesamt verbindet diese Lage ruhiges Wohnen im Grünen mit guter Infrastruktur,
attraktiven Freizeitangeboten und einer hervorragenden Anbindung – ideal für alle, die
stadt- und naturnah zugleich leben möchten.
Sonstige Angaben
EXPOSÈ-DIREKT-DOWNLOAD
Als Qualitätsmakler für Norddeutschland bieten wir Ihnen einen Direkt-Exposé-Download auf unserer Homepage. Link zum Objekt auf unserer Homepage: www.moellerherm-immobilien.de/objekt/ID-MI-15198
Einfach auf unserer Internetseite anmelden und das Exposé inkl. Adresse direkt selber herunterladen.
VORTEILE
- sofortige automatische Exposé-Beantwortung nach Anmeldung
- Exposé inkl. Adresse sofort selber herunterladen
- Zugriff auch auf alle anderen Immobilien-Angebote & Exposés mit nur einer Anmeldung
KOSTENLOSE MARKTWERTEINSCHÄTZUNG & ERST-BERATUNG
www.unser-immobilienwert.de
(Unsere Beratung ist für den Eigentümer unverbindlich und kostenfrei, Tel. 0800 77 16 100)
ABLAUF IMMOBILIENVERKAUF
www.moellerherm-immobilien.de/ablauf
DIE MÖLLERHERM-METHODE
www.moellerherm-immobilien.de/moellerherm-methode
ALLE IMMOBILIENANGEBOTE
www.moellerherm-immobilien.de/aktuelle-angebote-wohnen
***PROSPEKTHAFTUNG***
Wir haben alle Angaben nach bestem Wissen und Gewissen für Sie zusammengetragen, jedoch ist Irren menschlich und es kann daher immer mal sein, dass sich der eine oder andere Fehler eingeschlichen hat. Das Angebot ist daher freibleibend und unverbindlich. Die Objektangaben wurden uns vom Eigentümer bereitgestellt, eine Prospekthaftung ist ausgeschlossen. Zwischenverkauf, Irrtum, Auslassung und Änderung sind vorbehalten.
Grundriss
Erdgeschoss
>
>
Obergeschoss
>
>
Kellergeschoss
>
>
Adresse
23569 Lübeck
Interessante Orte
Preis- und Lageinformationen
Preistrend für Bestandsimmobilien in Kücknitz