In einem charmanten und familienfreundlichen Wohngebiet gelegen, bietet dieses Grundstück vielseitige Möglichkeiten zur Nutzung und Entwicklung. Der bestehende Altbestand kann entweder liebevoll saniert und erweitert oder durch eine zeitgemäße Neubebauung ersetzt werden. Denkbar ist die Errichtung eines Einfamilienhauses, Doppelhauses oder eines Zweifamilienhauses – für mögliche Varianten liegt bereits eine Grundlagenermittlung vom Architekten zur Neubebauung vor. Der aktuelle Altbestand umfasst eine Gesamtfläche von 112,54 m² inklusive Nutzfläche und bietet somit ebenfalls eine solide Grundlage für eine Sanierung und Erweiterung. Eine Wohnfläche von bis zu 250 m² wäre realisierbar.
Fakten zur Bebaubarkeit:
- bis zu 250 m² Wohnfläche realisierbar
- voll unterkellert – ideal als zusätzliche Nutz- und Hobbyfläche
- Satteldach
- flexible Nutzung des Dachgeschosses (komplett als Wohnfläche ausbaubar, alternativ mit Dachflächenfenstern oder Gauben)
- eigene Stellplätze auf dem Grundstück möglich (aktuell in Abstimmung mit der Gemeinde, GRZ II ist zu berücksichtigen)
Siedlerhaus mit großem Erweiterungspotential
86399 Bobingen
Die vollständige Adresse der Immobilie erhalten Sie vom Anbieter.
Auf Karte anzeigen
Die vollständige Adresse der Immobilie erhalten Sie vom Anbieter.
Finanzierungszertifikat
In nur zwei Minuten zu Ihrem persönlichen Finanzierungszertifkat.
Infos
| Haustyp | Einfamilienhaus |
|---|---|
| Wohnfläche ca. | 67 m2 |
| Nutzfläche | 112,54 m2 |
| Grundstücksfläche | 513 m2 |
| Zimmer | 3 |
| Schlafzimmer | 2 |
| Badezimmer | 1 |
Kosten
| Kaufpreis |
395.000 € |
|---|---|
| Provision |
2,975% inkl. der gesetzlichen MwSt. auf den beurkundeten Kaufpreis |
Finanzierungsrechner:
Kaufpreis:
600.000 €
Eigenkapital:
600.000 €
Monatliche Rate
0 €
Effektiver Jahreszins
0 %
Sollzinsbindung
10 Jahre
Bausubstanz & Energieausweis
| Baujahr | 1940 |
|---|---|
| Objektzustand | Renovierungsbedürftig |
| Heizungsart | Zentralheizung |
| Wesentliche Energieträger | Öl |
| Energieausweis | liegt vor |
| Energieausweistyp | Bedarfsausweis |
| Energieverbrauchskennwert | 401,9 kWh/(m²*a) |
| Energieeffizienzklasse | H |
401,9
kWh/(m²*a)
Energieeffizienzklasse H
- A+
- A
- B
- C
- D
- E
- F
- G
- H
- 0
- 25
- 50
- 75
- 100
- 125
- 150
- 175
- 200
- 225
- >250
Beschreibung des Objekts
Ausstattung
- Grundstücksgröße: 513 m² gesamt
- GRZ I: 0,29
- GFZ: 0,83
- Aktuelle Bebauung: Altbestand Einfamilienhaus
- Mögliche Bebauung: Einfamilienhaus, Doppelhaus, Zweifamilienhaus
- Baujahr Altbestand: 1940
- Planen Sie für eine Renovierung des Altbaus ca. 100.000€
Lage
Das charmante Grundstück in Bobingen liegt in einer ruhigen und familienfreundlichen Umgebung. Die Nähe zu verschiedenen Kindergärten erleichtert die Betreuung der Kleinen, während zahlreiche Einkaufsmöglichkeiten für den täglichen Bedarf den Alltag der Bewohner bequem gestalten. Die umliegenden Sportvereine bieten vielfältige Freizeitmöglichkeiten, und ein naheliegendes Freibad sorgt für erfrischende Unternehmungen an warmen Tagen. Die Anwesenheit einer Realschule in der Nähe betont die Bildungsmöglichkeiten in dieser Gegend, was das Wohnen besonders für Familien attraktiv macht. Zusätzlich befindet sich die Wertachklinik in Bobingen in unmittelbarer Nähe, was eine qualitativ hochwertige medizinische Versorgung gewährleistet. Die ausgezeichnete Bus- und Zuganbindung ermöglicht eine komfortable Mobilität und erleichtert den Zugang zu weiteren Annehmlichkeiten in der Region. Neben den genannten Vorzügen ist auch die gute Anbindung an die B17 und den Bobinger Bahnhof hervorzuheben, was die Erreichbarkeit überregionaler Verkehrswege betrifft. Somit bietet das Haus nicht nur ein gemütliches Zuhause in einer ruhigen Umgebung, sondern auch eine breite Palette von Bildungs-, Sport- und Freizeitmöglichkeiten, unterstützt durch eine exzellente Verkehrsanbindung.
Augsburg: 16 km
Bahnhof Bobingen: 1 km
MUC Flughafen: 87 km
München: 88 km
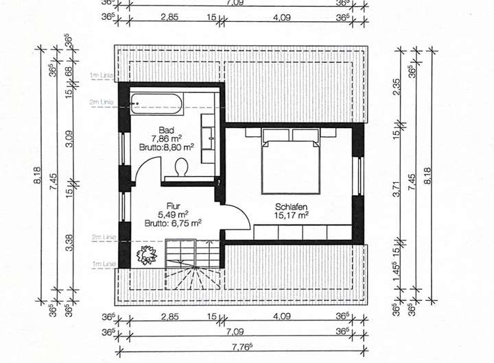
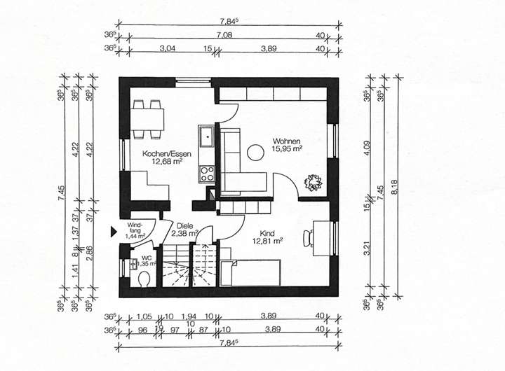
Grundriss
Grundlagenermittlung
>
>
Erdgeschoss
>
>
Dachgeschoss
>
>
Kellergeschoss
>
>
Adresse
86399 Bobingen
Interessante Orte
Preis- und Lageinformationen
Preistrend für Bestandsimmobilien in Bobingen