Zum Verkauf steht ein gepflegtes Mehrfamilienhaus aus dem Baujahr 1965 mit insgesamt sechs Wohneinheiten in gefragter Lage. Das Gebäude überzeugt durch eine solide Bauweise, laufende Instandhaltung und ein interessantes Ausbaupotenzial.
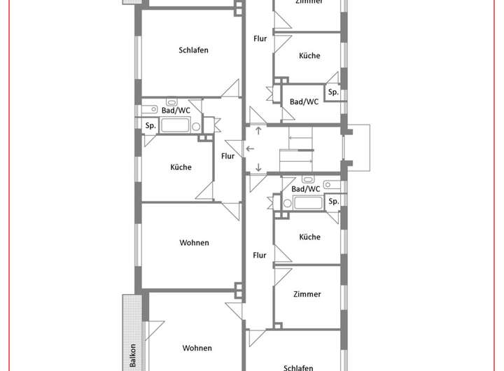
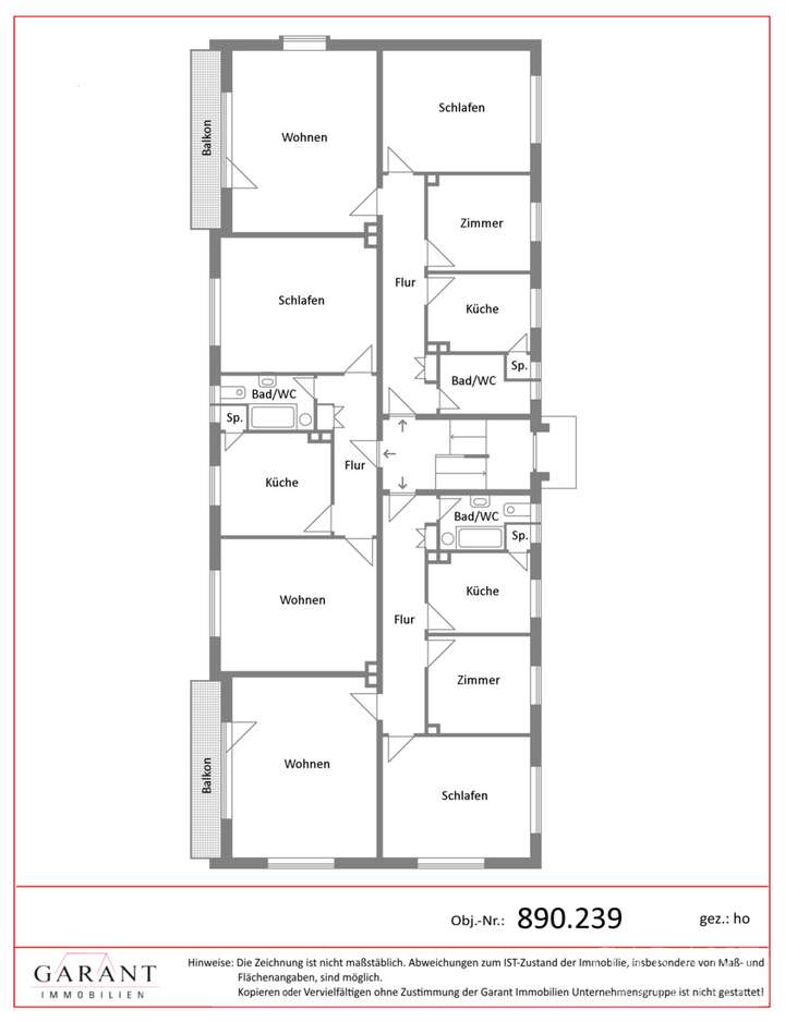
Die Immobilie verfügt über vier großzügige 3 Zimmer-Wohnungen mit jeweils ca. 88 m² Wohnfläche sowie zwei 2 Zimmer-Wohnungen mit Wohnküche und ca. 67 m². Damit ergibt sich eine Gesamtwohnfläche von ca. 486 m². Alle Wohnungen sind derzeit vermietet und wurden bei Mieterwechsel stetig renoviert, sodass sich das Objekt in einem sehr gepflegten Zustand präsentiert. Eine umfassende energetische Modernisierung wurde bislang nicht durchgeführt.
Ein besonderes Highlight ist die Möglichkeit, durch einen Dachausbau bzw. eine Aufstockung zwei zusätzliche Wohneinheiten mit insgesamt ca. 175 m² zu schaffen. Dies eröffnet erhebliches Wertsteigerungs- und Ertragspotenzial für Investoren.
Zum Objekt gehören außerdem sechs Garagen, die den Mietern zusätzlichen Komfort bieten und sich positiv auf die Vermietbarkeit auswirken. Die jährlichen Mieteinnahmen belaufen sich aktuell auf EUR 51.120 zzgl. Nebenkosten, womit eine solide Rendite gewährleistet ist. Der durschnittliche Quadratmeterpreis liegt bei EUR 8,15.
Dieses Mehrfamilienhaus ist eine attraktive Kapitalanlage mit stabilen Einnahmen und Entwicklungsperspektive, ideal für Investoren, die Wert auf laufende Erträge und zusätzliche Ausbauoptionen legen.
Attraktive Kapitalanlage für Investoren
84030 Landshut
Die vollständige Adresse der Immobilie erhalten Sie vom Anbieter.
Auf Karte anzeigen
Die vollständige Adresse der Immobilie erhalten Sie vom Anbieter.
Finanzierungszertifikat
In nur zwei Minuten zu Ihrem persönlichen Finanzierungszertifkat.
Infos
| Haustyp | Mehrfamilienhaus |
|---|---|
| Etagenzahl | 2 |
| Wohnfläche ca. | 486 m2 |
| Nutzfläche | 544 m2 |
| Grundstücksfläche | 1.228 m2 |
| Bezugsfrei ab | nach Vereinbarung |
| Zimmer | 16 |
| Schlafzimmer | 10 |
| Badezimmer | 6 |
| Garage/Stellplatz | Garage |
| Anzahl Garage/Stellplatz | 6 |
Kosten
| Kaufpreis |
1.390.000 € |
|---|---|
| Provision |
3,57 % inkl. ges. MwSt. Die Maklercourtage für den Käufer beträgt 3 % aus dem Kaufpreis zuzüglich der gesetzlichen MwSt., somit gesamt 3,57 %. |
Finanzierungsrechner:
Kaufpreis:
600.000 €
Eigenkapital:
600.000 €
Monatliche Rate
0 €
Effektiver Jahreszins
0 %
Sollzinsbindung
10 Jahre
Bausubstanz & Energieausweis
| Baujahr | 1965 |
|---|---|
| Bauphase | Haus fertig gestellt |
| Objektzustand | Gepflegt |
| Qualität der Austattung | Normal |
| Heizungsart | Zentralheizung |
| Wesentliche Energieträger | Gas |
| Energieausweis | liegt vor |
| Energieausweistyp | Verbrauchsausweis |
| Energieverbrauchskennwert | 172,0 kWh/(m²*a) |
| Energieeffizienzklasse | F |
172,0
kWh/(m²*a)
Energieeffizienzklasse F
- A+
- A
- B
- C
- D
- E
- F
- G
- H
- 0
- 25
- 50
- 75
- 100
- 125
- 150
- 175
- 200
- 225
- >250
Beschreibung des Objekts
Lage
Diese Immobilie befindet sich in einer ruhigen und zugleich zentral gelegenen Wohngegend im beliebten Stadtteil Landshut-West. Das Viertel zeichnet sich durch eine harmonische Mischung aus urbanem Lebensstil und naturnaher Umgebung aus. Die Nachbarschaft ist geprägt von gepflegten Einfamilienhäusern, kleinen Mehrfamilienhäusern und viel Grün, ein ideales Umfeld für Familien, Paare und Berufstätige.
Dank der hervorragenden Infrastruktur sind alle wichtigen Einrichtungen des täglichen Bedarfs in wenigen Minuten erreichbar. Supermärkte, Bäckereien, Apotheken sowie Ärzte und Banken befinden sich in unmittelbarer Nähe. Auch Kindergärten, Schulen und weiterführende Bildungseinrichtungen sind bequem erreichbar und machen die Lage besonders attraktiv für Familien mit Kindern.
Die Anbindung an den öffentlichen Nahverkehr ist optimal: Buslinien verkehren regelmäßig und bringen Sie schnell ins Zentrum von Landshut oder zum Bahnhof. Pendler profitieren zudem von der Nähe zur B15 neu sowie zur Autobahn A92, über die München, Deggendorf und der Flughafen zügig erreichbar sind.
Für Freizeit und Erholung bieten nahe gelegene Parks, die Isarauen sowie diverse Sport- und Freizeitangebote beste Möglichkeiten zur Entspannung und aktiven Erholung. Das nahe gelegene Naherholungsgebiet lädt zu Spaziergängen, Joggingrunden oder Radtouren ein. Auch kulturell bietet die Umgebung einiges, von gemütlichen Cafés über Restaurants bis hin zu Veranstaltungen im Zentrum.
Die Lage verbindet somit auf ideale Weise ruhiges Wohnen mit urbaner Lebensqualität.
Sonstige Angaben
Energieverbrauchsausweis Energiekennwert: 172,00 kWh/(qm*a) Energieeffizienz: Klasse F (kl.200) Heizung: Zentralheizung mit Gas Baujahr laut Energieausweis: 1965
Grundriss
890239
>
>
Adresse
84030 Landshut
Interessante Orte
Preis- und Lageinformationen
Preistrend für Bestandsimmobilien in Industriegebiet