Willkommen in Ihrem neuen Zuhause in Oldenburg!
Dieses historische Einfamilienhaus bietet Ihnen den perfekten Rückzugsort für die ganze Familie. Auf einem großzügigen Grundstück von ca. 653 m², bietet das Objekt nicht nur viel Platz im Freien, sondern auch eine Wohnfläche von ca. 164,74 m², verteilt auf zwei Vollgeschosse sowie einem ausgebauten Dachgeschoss.
Ein Highlight des Hauses ist die große Terrasse, die zum Entspannen und geselligen Abenden mit Freunden und Familie einlädt. Der liebevoll angelegte Garten ist nicht einsehbar und bietet somit höchste Privatsphäre. Das vollständig unterkellerte Haus bietet Ihnen zusätzlichen Stauraum und vielfältige Nutzungsmöglichkeiten.
Ferner ist hervorzuheben, dass sich das Objekt in einem guten Pflegezustand befindet. Renovierugs- und Sanierungsarbeiten wurden, sofern erforderlich, regelmäßig durchgeführt.
Das Objekt ist aktuell vermietet. Innenaufnahmen wurden seitens der Mieter nicht erwünscht.
Charmante 100-jährige sucht den Partner fürs Leben!
26121 Oldenburg (Oldenburg)
Die vollständige Adresse der Immobilie erhalten Sie vom Anbieter.
Auf Karte anzeigen
Die vollständige Adresse der Immobilie erhalten Sie vom Anbieter.
Finanzierungszertifikat
In nur zwei Minuten zu Ihrem persönlichen Finanzierungszertifkat.
Infos
| Haustyp | Einfamilienhaus |
|---|---|
| Etagenzahl | 4 |
| Wohnfläche ca. | 164 m2 |
| Nutzfläche | 84,88 m2 |
| Grundstücksfläche | 653 m2 |
| Zimmer | 6 |
| Schlafzimmer | 4 |
| Badezimmer | 2 |
Kosten
| Kaufpreis |
650.000 € |
|---|---|
| Provision |
3,57% inkl. MwSt. |
Finanzierungsrechner:
Kaufpreis:
600.000 €
Eigenkapital:
600.000 €
Monatliche Rate
0 €
Effektiver Jahreszins
0 %
Sollzinsbindung
10 Jahre
Bausubstanz & Energieausweis
| Baujahr | 1921 |
|---|---|
| Wesentliche Energieträger | Erdgas leicht |
| Energieausweis | liegt vor |
| Energieausweistyp | Bedarfsausweis |
Beschreibung des Objekts
Ausstattung
- Massivbauweise
- Außenmauerwerk: verputzt, regelmäßig gestrichen
- Walmdach mit Tonfalzziegeln
- Kunststofffenster mit doppelter Isolierverglasung, 80er Jahre
- Gas-Zentralheizung, Fabrikat: Brötje, Bj. 2001
- Fußöden: Laminat/Vinyl sowie Fliesen im Nassbereich
- Zisterne
Erdgeschoss:
- Flur
- Gäste-WC
- Küche
- Speisekammer
- Wohnzimmer
- Esszimmer
- Büro
Obergeschoss:
- Flur
- WC mit Dusche
- Zimmer I
- Zimmer II
- Zimmer III
- Bad mit Dusche & Wanne
Kellergeschoss:
- Flur
- Heizung
- Waschkeller
- Abstellraum
- Vorratskammer
Sonstiges:
- Terrasse
- Garten
- Garage
Lage
Dieses attraktive Einfamilienhaus befindet sich in einer der begehrtesten Wohngegenden Oldenburgs, dem Ziegelhofviertel. Die Lage besticht durch eine perfekte Kombination aus ruhigem Wohnumfeld und urbaner Nähe. In unmittelbarer Umgebung finden Sie zahlreiche Einkaufsmöglichkeiten, Restaurants und Cafés, die zum Verweilen und Genießen einladen. Für Familien sind Schulen und Kindergärten schnell und bequem erreichbar, was den Alltag erleichtert. Zudem ist die Anbindung an den öffentlichen Nahverkehr hervorragend, sodass Sie unkompliziert alle weiteren Teile der Stadt sowie das Umland erreichen. Das Ziegelhofviertel selbst zeichnet sich durch seinen unverwechselbaren Gründerzeit-Charme mit stilvollen Villen und gepflegten Gärten aus. Gleichzeitig profitieren Bewohner von einem lebendigen Quartier mit kulturellen Einrichtungen, Parks und Freizeitangeboten in unmittelbarer Nähe. Diese hochwertige Lage vereint somit Erholung, Komfort und eine ausgezeichnete Infrastruktur, die den Wohnwert dieses Einfamilienhauses maßgeblich unterstreicht.
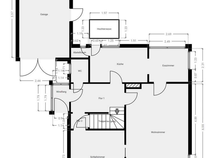
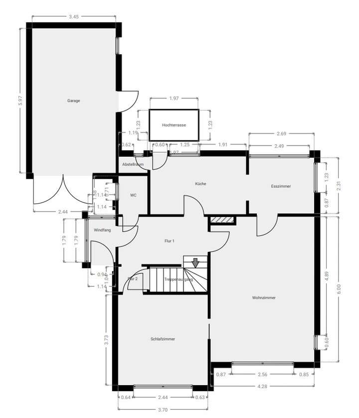
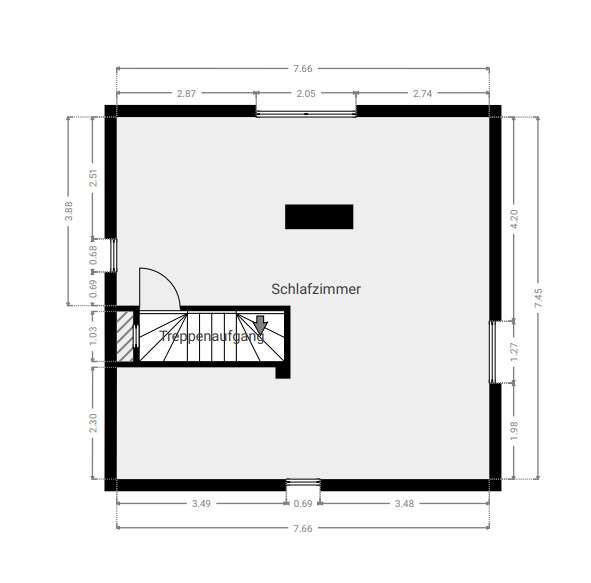
Grundriss
Grundriss Erdgeschoss
>
>
Grundriss Obergeschoss
>
>
Grundriss Dachgeschoss
>
>
Grundriss Keller
>
>
Adresse
26121 Oldenburg (Oldenburg)
Interessante Orte
Preis- und Lageinformationen
Preistrend für Bestandsimmobilien in Bürgerfelde