Dieses moderne Einfamilienhaus in Holzständerbauweise aus dem Jahr 2020 befindet sich in ruhiger Lage von Kressenbach und überzeugt durch seine energieeffiziente Bauweise (Energieklasse A+), barrierefreien Zugang sowie eine hochwertige Ausstattung. Auf einer Wohnfläche von ca. 151 m² verteilt sich ein durchdachtes Raumkonzept mit insgesamt 6 Zimmern. Ein besonderes Highlight sind die Raumhöhen von 2,75 m und die Türmaße von 2,20 m Höhe, welche Helligkeit und Wärme vermitteln.
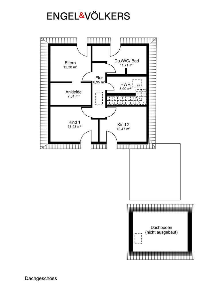
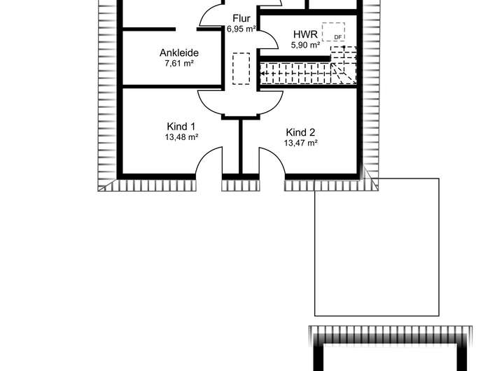
Im Erdgeschoss befinden sich der großzügige Wohn- und Essbereich mit Zugang zur Terrasse, eine moderne Küche, ein Hauswirtschaftsraum sowie ein Gäste-WC. Das Obergeschoss bietet drei Schlafzimmer und ein stilvolles Badezimmer mit ebenerdiger Dusche und moderner Ausstattung. Eine Einliegerwohnung im Erdgeschoss ist möglich, da die Räume entsprechend abtrennbar sind.
Das Haus steht auf einem Grundstück von ca. 815 m² und verfügt über eine Garage, einen Carport mit zwei Stellplätzen und zwei weiteren Stellplätzen. Die Wärmeversorgung erfolgt über eine effiziente Wärmepumpe mit Fußbodenheizung, die in allen Räumen für ein angenehmes Raumklima sorgt. Ergänzend ist die Installation einer Photovoltaikanlage vorbereitet, welche in den kommenden Jahren umgesetzt werden kann.
Besondere Merkmale sind die dreifach verglasten Fenster mit elektr. Aluminiumrollläden, Fliegenschutzgittern, ein Tondachziegeldach, eine autom. Be- und Entlüftung und hochwertige Bodenbeläge, sowie hochwertige Schreinereinbauschränke. Die hochwertige Einbauküche kann separat erworben werden.
Das Haus ist ein echtes Juwel mit toll angelegtem Garten – eine hochwertige Immobilie im verkehrsberuhigten Bereich, die modernen Wohnkomfort, Energieeffizienz und flexible Nutzungsmöglichkeiten (z. B. Mehrgenerationenwohnen) vereint.
Koffer packen, einziehen- 2026 in Ihrem neuen Zuhause!
36381 Schlüchtern
Die vollständige Adresse der Immobilie erhalten Sie vom Anbieter.
Auf Karte anzeigen
Die vollständige Adresse der Immobilie erhalten Sie vom Anbieter.
Finanzierungszertifikat
In nur zwei Minuten zu Ihrem persönlichen Finanzierungszertifkat.
Infos
| Haustyp | Einfamilienhaus |
|---|---|
| Etagenzahl | 2 |
| Wohnfläche ca. | 151 m2 |
| Grundstücksfläche | 815 m2 |
| Zimmer | 6 |
| Schlafzimmer | 4 |
| Badezimmer | 2 |
| Anzahl Garage/Stellplatz | 5 |
Kosten
| Kaufpreis |
0 € |
|---|---|
| Provision |
3,57 |
Finanzierungsrechner:
Kaufpreis:
600.000 €
Eigenkapital:
600.000 €
Monatliche Rate
0 €
Effektiver Jahreszins
0 %
Sollzinsbindung
10 Jahre
Bausubstanz & Energieausweis
| Baujahr | 2020 |
|---|---|
| Objektzustand | Neuwertig |
| Qualität der Austattung | Gehoben |
| Heizungsart | Wärmepumpe |
| Energieausweis | liegt vor |
Beschreibung des Objekts
Lage
Der Ortsteil Kressenbach gehört zur Stadt Schlüchtern im Main-Kinzig-Kreis in Osthessen und liegt etwa 6 Kilometer nordwestlich des Schlüchterner Stadtzentrums. Der Ort befindet sich in einer landschaftlich reizvollen Umgebung am Übergang zwischen Vogelsberg, Spessart und Rhön, im sogenannten „Bergwinkel“ – einer Region, die für ihre sanften Hügel, Wälder und Wiesen bekannt ist.
Mit einer Höhenlage von rund 250 Metern über NN bietet Kressenbach eine ruhige, naturnahe Wohnlage mit weitem Blick in die umliegende Mittelgebirgslandschaft. Die Bebauung ist geprägt durch Einfamilienhäuser, landwirtschaftliche Anwesen und neuere Wohngebiete, die sich harmonisch in das Ortsbild einfügen.
Die Verkehrsanbindung ist sehr gut: Über die Landesstraße L 3180 gelangt man in wenigen Minuten nach Schlüchtern mit Anschluss an die Bundesstraße 40 sowie an die Autobahn A 66 (Frankfurt – Fulda – Kassel). Eine Busverbindung stellt den öffentlichen Nahverkehr nach Schlüchtern und in die umliegenden Ortsteile sicher. Der Bahnhof Schlüchtern bietet zudem direkte Regional- und Fernverkehrsverbindungen in Richtung Frankfurt, Fulda und Kassel.
Im nahegelegenen Schlüchtern befinden sich Einkaufsmöglichkeiten, Schulen, Ärzte, Kindergärten und Freizeitangebote. Kressenbach selbst zeichnet sich durch seine ruhige, familienfreundliche Atmosphäre und eine aktive Dorfgemeinschaft aus.
Die Umgebung lädt zu Wander- und Radtouren ein – unter anderem durch das nahe gelegene Naturschutzgebiet „Hölle und Weinberg von Kressenbach“, das für seine artenreiche Flora und geologischen Besonderheiten bekannt ist.
Sonstige Angaben
Der Makler-Vertrag mit uns und/oder unserem Beauftragten kommt durch die Beauftragung der Maklertätigkeit in Textform (z.B. E-Mail mit Bestätigung der gewollten Inanspruchnahme) zustande. Die Höhe der Courtage richtet sich nach den ab dem 23.12.2020 in Kraft getretenen gesetzlichen Regelungen zur Teilung der Maklercourtage. Hiernach wird die Courtage regelmäßig für beide Parteien (Eigentümer und Käufer) jeweils in Höhe von 3 % zuzüglich Umsatzsteuer in jeweils geltender Höhe, derzeit also insgesamt 3,57% des Kaufpreises einschließlich Umsatzsteuer bei notariellem Vertragsabschluss verdient und fällig. Die Höhe der Bruttocourtage unterliegt einer Anpassung bei Steuersatzänderung. Grunderwerbssteuer, Notar- und Gerichtskosten trägt der Käufer.
Alle Angaben sind ohne Gewähr und basieren ausschließlich auf Informationen, die uns von unserem Auftraggeber übermittelt wurden. Wir übernehmen keine Gewähr für die Vollständigkeit, Richtigkeit und Aktualität dieser Angaben. Zwischenverkauf bleibt vorbehalten. Sollte das von uns nachgewiesene Objekt bereits bekannt sein, teilen Sie uns dies bitte unverzüglich mit. Die Weitergabe dieses Exposés an Dritte ohne unsere Zustimmung löst gegebenenfalls Courtage- bzw. Schadensersatzansprüche aus. Im Übrigen gelten die beigefügten allgemeinen Geschäftsbedingungen für die Rechtsbeziehung zwischen Ihnen und EV Fulda GmbH
Grundriss
Erdgeschoss
>
>
Dachgeschoss
>
>
Adresse
36381 Schlüchtern
Interessante Orte
Preis- und Lageinformationen
Preistrend für Bestandsimmobilien in Schlüchtern