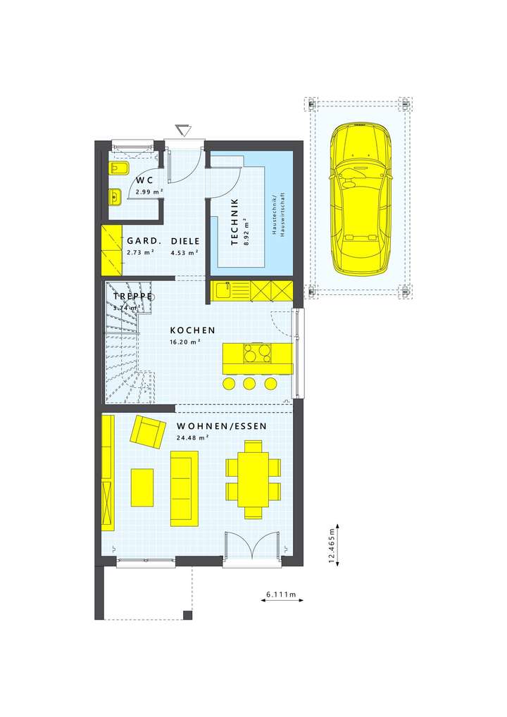
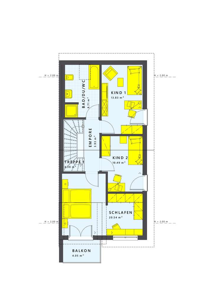
Dieses moderne Doppelhaus von LivingHaus wird ganz nach deinen Wünschen und Vorstellungen projektiert. Mit einer großzügigen Wohnfläche von 125 m² und 5 Zimmern bietet es ausreichend Platz für die gesamte Familie. Die durchdachte Raumaufteilung erstreckt sich über zwei Etagen und umfasst 3 Schlafzimmer, ein Badezimmer sowie eine einladende Terrasse, die zum Entspannen einlädt. Das Satteldach mit einer Neigung von 25 Grad sorgt nicht nur für ein ansprechendes äußeres Design, sondern ermöglicht auch im Obergeschoss viel Licht und Raum zur individuellen Gestaltung. Der große Giebel, der durch bodentiefe Fenstertüren aufgebrochen wird, bringt nicht nur den Sonnenschein ins Schlafzimmer, sondern führt auch direkt auf deinen eigenen Balkon. Ein Carport rundet dieses Angebot ab und bietet zusätzlichen Schutz für dein Fahrzeug. Bei LivingHaus profitierst du von zahlreichen zusätzlichen Leistungen, die dein Bauprojekt noch einfacher und stressfreier gestalten. Die hochwertige Traumküche wird exakt auf deinen Grundriss abgestimmt und verfügt über modernste Technik sowie clevere Stauraumlösungen. Mit der Living Haus Bau-App behältst du stets den Überblick über dein Bauvorhaben, während I-KON - Intelligentes Bauen dein Zuhause energieeffizient und nachhaltig gestaltet. Neben einem attraktiven Zuhause-Darlehen profitierst du vom Zuhause-Paket, das dir eine umfassende Grundausstattung mit modernen Materialien bietet. Das DIY-Ausbau-Coaching ermöglicht es dir, den Innenausbau nach deinen eigenen Vorstellungen zu gestalten, während du von Experten unterstützt wirst. So wird dein individuelles Traumhaus Wirklichkeit!
In Bestlage von Grenzach-Wyhlen - sichern Sie sich eine von zwei modernen Doppelhaushälften!
79639 Grenzach-Wyhlen
Die vollständige Adresse der Immobilie erhalten Sie vom Anbieter.
Auf Karte anzeigen
Die vollständige Adresse der Immobilie erhalten Sie vom Anbieter.
Finanzierungszertifikat
In nur zwei Minuten zu Ihrem persönlichen Finanzierungszertifkat.
Infos
| Haustyp | Doppelhaushaelfte |
|---|---|
| Etagenzahl | 2 |
| Wohnfläche ca. | 125 m2 |
| Nutzfläche | 125 m2 |
| Grundstücksfläche | 255 m2 |
| Zimmer | 5 |
| Schlafzimmer | 3 |
| Badezimmer | 1 |
Kosten
| Kaufpreis |
508.750 € |
|---|---|
| Provision | Nein |
Finanzierungsrechner:
Kaufpreis:
600.000 €
Eigenkapital:
600.000 €
Monatliche Rate
0 €
Effektiver Jahreszins
0 %
Sollzinsbindung
10 Jahre
Bausubstanz & Energieausweis
| Baujahr | 2026 |
|---|---|
| Bauphase | Haus in Planung (projektiert) |
| Qualität der Austattung | Gehoben |
| Heizungsart | Wärmepumpe |
| Energieausweis | liegt zur Besichtigung vor |
Beschreibung des Objekts
Ausstattung
Das Fertighaus von LivingHaus bietet dir eine umfassende Ausstattung, die keine Wünsche offenlässt. Du erhältst eine moderne Traumküche, die genau auf deinen Grundriss angepasst ist und mit der neuesten Technik ausgestattet wird. Im Zuhause-Paket sind sämtliche Innenausbaumaterialien, einschließlich eleganter Böden und stilvoller Sanitäranlagen, enthalten. Bei Bedarf kannst du auch Baustrom- und Bauwasseranschlüsse über LivingHaus organisieren lassen. Darüber hinaus bietet die I-KON-Lösung eine integrierte PV-Anlage mit Speicherbatterie, um deinen Strombedarf nachhaltig zu decken. Die hochwertige Grundausstattung, die in deinem Haus enthalten ist, sorgt dafür, dass alles perfekt aufeinander abgestimmt und direkt für dich bereit ist, sodass du in dein neues Zuhause einziehen kannst, ohne dich um Details kümmern zu müssen. Mit LivingHaus baust du dein "Wie ich es will Fertighaus"!
Lage
Grenzach-Wyhlen ist ein malerischer Ort, der dir alles bietet, was du für ein erfülltes Leben benötigst. In der Umgebung findest du zahlreiche Bildungseinrichtungen, darunter Kindergärten und Schulen, die für Familien ideal sind. Der Kindergarten "Sonnenschein" wurde von Eltern hochgelobt und bietet eine liebevolle Betreuung für die Kleinsten. Die Grundschule Grenzach hat einen sehr guten Ruf und wird von vielen Familien als hervorragender Ort für die frühe Bildung angesehen. Für die älteren Kinder gibt es eine Gesamtschule in der Nähe, die ein breites Spektrum an Bildungsmöglichkeiten bietet. Einkaufsmöglichkeiten sind in Grenzach-Wyhlen ebenfalls reichlich vorhanden. Supermärkte wie Edeka und Rewe sind schnell erreichbar und bieten eine große Auswahl an frischen Lebensmitteln und Produkten des täglichen Bedarfs. Zudem gibt es zahlreiche kleine Geschäfte und Bäckereien, die das Einkaufserlebnis bereichern. Die ärztliche Versorgung ist durch mehrere Arztpraxen, darunter Allgemeinmediziner und Fachärzte, gesichert. Das Freizeitangebot in Grenzach-Wyhlen ist vielfältig; der nahegelegene Rhein lädt zu Spaziergängen und Fahrradtouren ein und bietet zudem eine wunderschöne Kulisse für Picknicks. Die Anbindung an den öffentlichen Nahverkehr ist hervorragend, mit regelmäßigen Busverbindungen und der Nähe zur Autobahn A5, die schnelle Fahrten in die umliegenden Städte ermöglicht. Für Naturliebhaber gibt es zahlreiche Wander- und Radwege in der Umgebung. Hier findest du die perfekte Balance zwischen ruhigem Wohnen und der Nähe zur Stadt, was Grenzach-Wyhlen zu einem idealen Ort für Familien, Naturliebhaber und Pendler macht.
Sonstige Angaben
Stressfrei und unkompliziert:
Wir wissen, dass Zeit kostbar ist. Deshalb bieten wir Ihnen die Möglichkeit, ganz ohne Stress und mit nur wenigen Klicks einen Termin für ein unverbindliches Erstgespräch zu buchen. Egal ob Sie Fragen zu dieser Immobilie haben, eine Besichtigung wünschen oder mehr über Finanzierungsoptionen erfahren möchten - wir sind für Sie da!
So einfach geht's:
Klicken Sie auf den Button unten und wählen Sie Ihren Wunschtermin. Wir kümmern uns um den Rest!
https://scheduler.zoom.us/michael-haas/erstgespraech
Wir freuen uns, Ihnen Ihr neues Zuhause vorstellen zu dürfen!
Grundriss
Cleveres Raumwunder EG
>
>
Familienfreundlicher Grundriss
>
>
Adresse
79639 Grenzach-Wyhlen
Interessante Orte
Preis- und Lageinformationen
Preistrend für Bestandsimmobilien in Grenzach-Wyhlen