Dieses individuell geplante LivingHaus Fertighaus bietet dir die einzigartige Möglichkeit, dein Zuhause ganz nach deinen persönlichen Vorstellungen zu gestalten. Auf einer Wohnfläche von 110 m² und einem großzügigen Grundstück von 609 m² kannst du deine Wohnträume verwirklichen. Der Bungalow beeindruckt durch seine coole Fassade und die beiden Querhäuser (Sonderausstattung), die nicht nur zusätzlichen Wohnraum schaffen, sondern auch einen besonderen Freisitz unter dem Walmdach bieten, der sich ideal als Terrasse gestalten lässt.
Mit der hochwertigen Traumküche von Living Haus wird Kochen zum Erlebnis. Die Küche wird maßgeschneidert an deinen Grundriss angepasst und ist mit modernster Technik ausgestattet. Sie wird pünktlich zum Einzug geliefert, damit du sofort loslegen kannst. Das Living Haus Bau-Cockpit sorgt dafür, dass du immer den Überblick über dein Bauprojekt behältst - digital und stressfrei.
Das I-KON - Intelligentes Bauen Konzept kombiniert nachhaltiges Bauen mit modernster Technologie, sodass dein Haus als Effizienzhaus 55 besonders energieeffizient ist. Das Zuhause-Darlehen bietet dir zudem exklusive Finanzierungsvorteile mit staatlichen Fördermöglichkeiten.
Das Zuhause-Paket beinhaltet eine hochwertige Grundausstattung mit modernen Böden, edlen Türen und stilvollen Sanitäranlagen. Abschließend ermöglicht dir das DIY-Ausbau-Coaching, den Innenausbau selbst in die Hand zu nehmen und dabei professionell unterstützt zu werden.
Ihr neuer Bungalow mit Keller (inklusive Grundstück)
63683 Ortenberg
Die vollständige Adresse der Immobilie erhalten Sie vom Anbieter.
Auf Karte anzeigen
Die vollständige Adresse der Immobilie erhalten Sie vom Anbieter.
Finanzierungszertifikat
In nur zwei Minuten zu Ihrem persönlichen Finanzierungszertifkat.
Infos
| Haustyp | Bungalow |
|---|---|
| Etagenzahl | 1 |
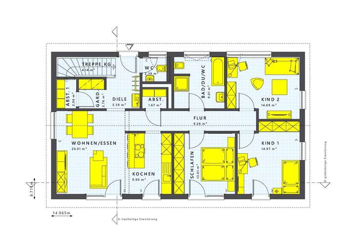
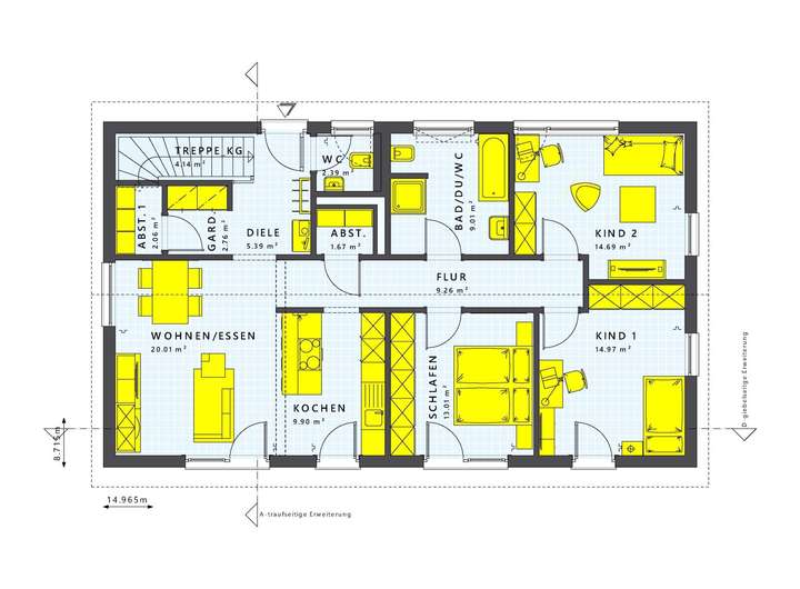
| Wohnfläche ca. | 110 m2 |
| Grundstücksfläche | 609 m2 |
| Bezugsfrei ab | 2026 |
| Zimmer | 4 |
| Schlafzimmer | 3 |
| Badezimmer | 1 |
Kosten
| Kaufpreis |
519.097 € |
|---|---|
| Provision | Nein |
Finanzierungsrechner:
Kaufpreis:
600.000 €
Eigenkapital:
600.000 €
Monatliche Rate
0 €
Effektiver Jahreszins
0 %
Sollzinsbindung
10 Jahre
Bausubstanz & Energieausweis
| Baujahr | 2026 |
|---|
Beschreibung des Objekts
Ausstattung
Mit LivingHaus erhältst du eine umfangreiche Sicherheits- und Garantieausstattung ab Auftragsbestätigung, einschließlich einer 18-monatigen Festpreisgarantie. Sollten Baukosten sinken, profitierst du ebenfalls davon. Essenzielle Bauversicherungen sind inklusive und schützen dich vor unvorhergesehenen Ereignissen.
Für deine Finanzierung steht das Zuhause-Darlehen bereit, häufig zu attraktiveren Konditionen als der Markt sie bietet. Mit dem Living Haus Bauherren-Cockpit hast du alle Bauunterlagen stets griffbereit und kannst Inspiration sammeln.
Dein Haus erhält höchste Zertifizierungen wie die DGNB-Serienzertifizierung in Gold sowie QDF-Zertifizierung für ökologische und technische Qualität. Wir garantieren dir 30 Jahre auf die Grundkonstruktion deines Hauses.
Zwei Tage intensive Ausstattungsberatung in der Haus-Statterei sorgen dafür, dass alles perfekt aufeinander abgestimmt ist. Die komplette Bauantragsplanung erfolgt durch erfahrene Architekten. Dein Haus kommt mit einer vorkonfigurierten I-KON-Lösung samt PV-Anlage zur Eigenstromerzeugung sowie moderner Wärmepumpentechnik für effizientes Heizen.
Das DIY Ausbau-Coaching rundet das Paket ab: In drei Tagen lernst du alle notwendigen Schritte für den Innenausbau deines Hauses - ein einzigartiges Angebot für dein »Wie ich es will Fertighaus«.
Lage
Ortenberg bietet eine ideale Lage für Familien, Naturliebhaber sowie Pendler gleichermaßen. In unmittelbarer Umgebung befinden sich zahlreiche Bildungseinrichtungen wie Schulen und Kindergärten, die optimal erreichbar sind. Darüber hinaus gibt es vielfältige Einkaufsmöglichkeiten inklusive Supermärkten, die deinen täglichen Bedarf decken.
Für deine Gesundheit ist bestens gesorgt: Verschiedene Fachärzte sowie Apotheken stehen dir zur Verfügung. Auch an Freizeitangeboten mangelt es nicht - ob Sportvereine oder Naturparks zum Entspannen und Erholen.
Die verkehrstechnische Anbindung ist hervorragend: Der öffentliche Nahverkehr bringt dich schnell in umliegende Städte und auch Autobahnanbindungen ermöglichen zügige Fahrten in weiter entfernte Regionen.
Besonders für Familien erweist sich Ortenberg als vorteilhafter Standort durch seine familienfreundliche Infrastruktur mit Spielplätzen und Grünflächen sowie einer aktiven Gemeinschaft. Naturliebhaber kommen ebenfalls auf ihre Kosten durch die zahlreichen Wander- und Radwege in der Umgebung.
Sonstige Angaben
Unsere Finanzierungsexperten von Heunfinanz beraten dich gerne über aktuelle Fördermöglichkeiten und das Livinghaus Zuhause Darlehen.
Die APP für dein neues Zuhause.
Mit der Bau-Cockpit APP hast Du immer alle Infos zu Deinem Fertighaus griffbereit. Alle relevanten Dokumente sowie der Baufortschritt sind mit einem Klick abrufbereit.
Ich zeige Dir, wie Du zu Deinem perfekten Traumhaus kommst und freue mich darauf, von Dir zu hören 0170 68 19 014
Grundriss
40902-4357-8-g
>
>
BZ LivingHaus Bungalows SOL
>
>
Adresse
63683 Ortenberg
Interessante Orte
Preis- und Lageinformationen
Preistrend für Bestandsimmobilien in Ortenberg