In gefragter Wohnlage eines familiären Umfelds und unweit von Feldern und Wiesen kommt diese sofort beziehbare 4,5 - 5-Zimmer-Eigentumswohnung mit ca. 121 m² Wohnfläche zum Verkauf.
Verteilt über zwei Ebenen (1. + 2. DG) bietet sich genügend Platz für die ganze Familie oder eventuell die Möglichkeit, das 2. DG separat zu vermieten (Bad, WC, Küchenanschluss, eigene Klingel + Briefkasten vorhanden).
Das Angebot bringt eine sehr gute Infrastruktur und dennoch ruhiges Wohnen bestens in Einklang.
Die Wohnung befindet sich in einem 6-Parteien-Mehrfamilienhaus, Baujahr ca. 1980.
Aufteilung:
Flur / Eingangsbereich, Gäste-WC, Treppenaufgang 2. DG
1. DG:
Zwei Schlafzimmer, Tageslichtbad und separates WC, offener Wohn- und Essbereich mit Zugang zur Küche mit Speisekammer und Balkon
2. DG:
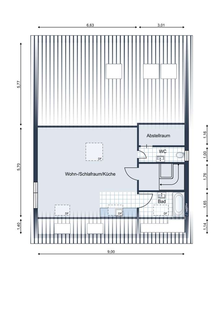
Goßer, offener Wohn-/Ess-/Schlafbereich mit kleiner Küchenzeile (nur Waschbecken vorhanden + Starkstromanschluss), kein Herd aktuell, modernisiertes Tageslichtbad, separates WC + Abstellkammer
Der Südbalkon, welcher das ganze Jahr über Sonnenstunden generiert, kann bestens genutzt werden, da er auch an schlechteren Wettertagen durch die Überdachung vor Wind und Wetter schützt.
Die Immobilie wird ohne Mietverhältnis und in einem leeren Zustand (außer Einbauküche) dem neuen Eigentümer übergeben. Sie ist somit „ab sofort beziehbar“, sodass gleich mit den gewünschten Renovierungen (z. B. neue Bodenbeläge) begonnen werden kann.
Wir freuen uns über Ihre schriftliche Anfrage und senden Ihnen anschließend unser ausführliches Verkaufsexposé per E-Mail zu!
++ Sofort beziehbar - 4,5-5,5 Zimmer mit flexiblen Nutzungsmöglichkeiten ++
73240 Wendlingen am Neckar
Die vollständige Adresse der Immobilie erhalten Sie vom Anbieter.
Auf Karte anzeigen
Die vollständige Adresse der Immobilie erhalten Sie vom Anbieter.
Finanzierungszertifikat
In nur zwei Minuten zu Ihrem persönlichen Finanzierungszertifkat.
Infos
| Wohnungskategorie | Maisonette |
|---|---|
| Wohnfläche ca. | 121 m2 |
| Bezugsfrei ab | Ab sofort |
| Zimmer | 4,5 |
| Schlafzimmer | 3 |
| Badezimmer | 2 |
| Garage/Stellplatz | Duplex |
| Anzahl Garage/Stellplatz | 1 |
Kosten
| Kaufpreis |
339.000 € |
|---|---|
| Preis für Garage/Stellplatz | 16.000 € |
| Provision |
2,38 % inkl. MwSt. |
Finanzierungsrechner:
Kaufpreis:
600.000 €
Eigenkapital:
600.000 €
Monatliche Rate
0 €
Effektiver Jahreszins
0 %
Sollzinsbindung
10 Jahre
Bausubstanz & Energieausweis
| Baujahr | 1980 |
|---|---|
| Objektzustand | Renovierungsbedürftig |
| Qualität der Austattung | Normal |
| Heizungsart | Zentralheizung |
| Wesentliche Energieträger | Öl |
| Energieausweis | liegt vor |
| Energieausweistyp | Bedarfsausweis |
| Energieverbrauchskennwert | 140,0 kWh/(m²*a) |
| Energieeffizienzklasse | E |
140,0
kWh/(m²*a)
Energieeffizienzklasse E
- A+
- A
- B
- C
- D
- E
- F
- G
- H
- 0
- 25
- 50
- 75
- 100
- 125
- 150
- 175
- 200
- 225
- >250
Beschreibung des Objekts
Ausstattung
Vor Einzug sind Renovierungs-/Modernisierungsarbeiten erforderlich in Bezug auf z. B. Maler-Tapezierarbeiten (evtl. auch Türen- + Zargenstreichen) oder neue Bodenbeläge / Küche.
Besondere Ausstattungsmerkmale sind:
- offener und lichtdurchfluteter Wohn- und Essbereich mit angrenzender Küche + Balkon,
- Klimaanlage im 1. + 2. DG,
- vollständig Überdachter Südbalkon (ca. 7 m²),
- zwei Schlafzimmer,
- zwei modernisierte Tageslichtbäder und Gäste-WC's,
- gute Grundrissaufteilung,
- gepflegtes MFH,
- Öl-Zentralheizung (ca. 1999) mit zentraler Warmwasseraufbereitung sowie
- ein Kellerraum im UG.
Abgerundet wird das Angebot durch einen eigenen Pkw-Stellplatz im Duplex in der anlageeigenen Tiefgarage.
Lage
Das Haus liegt ruhig am Ende einer Wohnstraße, direkt am nordöstlichen Stadtrand von Wendlingen am Neckar – mit unverbaubarem Blick über angrenzende Wiesen und Felder.
Die Lage verbindet naturnahes Wohnen mit einer ausgezeichneten städtischen Infrastruktur. Familien profitieren von kurzen Wegen zu Kindergärten, Schulen und Spielplätzen. Alle Einkaufsmöglichkeiten für den täglichen Bedarf sind schnell erreicht; Kaufland, REWE, Lidl und ALDI befinden sich im Umkreis von rund ca. 1,4 bis ca. 2 km.
Für Freizeit und Erholung bieten sich die angrenzenden Felder, der nahegelegene Neckar sowie zahlreiche Sportvereine und Freizeitangebote - darunter ein Walderlebnispfad, das Wendlinger Freibad oder das Wasserschlösschen – an.
Die Verkehrsanbindung ist hervorragend: Der Bahnhof Wendlingen mit Regional- und S-Bahn-Anschluss (S1 Kirchheim-Stuttgart-Herrenberg) ist in wenigen Minuten erreichbar.
Über die B313 erreichen Sie die Autobahn A8 in nur etwa 5 Fahrminuten, wodurch auch Berufspendler bestens angebunden sind.
Insgesamt ein optimaler und familienfreundlicher Standort zum Wohnen und Leben - auch Garant für eine nachhaltige Vermietbarkeit.
Sonstige Angaben
Wir bitten um Kenntnisnahme, dass auch diesem Verkaufsauftrag das in unserem Hause seit über 50 Jahren übliche Alleinverkaufsmandat zugrunde liegt und wir vom Eigentümer beauftragt sind, alle wesentlichen Gespräche und Verhandlungen zu führen.
Bitte fordern Sie zunächst unser ausführliches Verkaufs-Exposé an. Erst danach kann ein individueller Besichtigungstermin vereinbart werden.
Eine Exposé-Anforderung nur unter Angabe der reinen E-Mail-Adresse ist nicht möglich, sodass wir Sie bitten möchten, Ihre komplette Adresse anzugeben.
Vielen Dank!
Grundriss
1. DG
>
>
2. DG
>
>
Adresse
73240 Wendlingen am Neckar
Interessante Orte
Preis- und Lageinformationen
Preistrend für Bestandsimmobilien in Wendlingen am Neckar