Das im Jahr 2023 errichtete Mehrfamilienhaus umfasst insgesamt fünf Wohneinheiten mit einer Gesamtnutzfläche von rund 300 m², verteilt auf zwei Geschosse. Jede Wohneinheit verfügt über eine eigene Terrasse oder einen Balkon und bietet den Bewohnern damit zusätzlichen Wohnkomfort und Freiraum. Sämtliche Wohnungen sind derzeit fest vermietet; die jährlichen Mieteinnahmen betragen 45.120,00 €. Bei der Errichtung des Gebäudes wurde besonderer Wert auf eine moderne und hochwertige Bauausführung gelegt. Zur Ausstattung zählen u. a. eine Fußbodenheizung, 3-fach verglaste Fenster, eine effiziente Luftwärmepumpe zur Beheizung sowie insgesamt acht PKW-Stellplätze. Das Objekt ist zudem bereits nach dem Wohnungseigentumsgesetz (WEG) geteilt.
Attraktive Kapitalanlage - Neuwertiges-Mehrfamilienhaus mit 5 Wohneinheiten!
26655 Westerstede
Die vollständige Adresse der Immobilie erhalten Sie vom Anbieter.
Auf Karte anzeigen
Die vollständige Adresse der Immobilie erhalten Sie vom Anbieter.
Finanzierungszertifikat
In nur zwei Minuten zu Ihrem persönlichen Finanzierungszertifkat.
Infos
| Haustyp | Mehrfamilienhaus |
|---|---|
| Wohnfläche ca. | 300 m2 |
| Nutzfläche | 44,01 m2 |
| Grundstücksfläche | 752 m2 |
| Zimmer | 12 |
Kosten
| Kaufpreis |
1.250.000 € |
|---|---|
| Provision |
Käuferprovision: 5,95 % inkl. 19 % MwSt. |
Finanzierungsrechner:
Kaufpreis:
600.000 €
Eigenkapital:
600.000 €
Monatliche Rate
0 €
Effektiver Jahreszins
0 %
Sollzinsbindung
10 Jahre
Bausubstanz & Energieausweis
| Baujahr | 2023 |
|---|---|
| Energieausweis | liegt vor |
| Energieausweistyp | Bedarfsausweis |
| Energieverbrauchskennwert | 40,0 kWh/(m²*a) |
| Energieeffizienzklasse | A |
40,0
kWh/(m²*a)
Energieeffizienzklasse A
- A+
- A
- B
- C
- D
- E
- F
- G
- H
- 0
- 25
- 50
- 75
- 100
- 125
- 150
- 175
- 200
- 225
- >250
Beschreibung des Objekts
Ausstattung
Rohbau:
- Außenmauerwerk: Außenschale mit NF-Verblender, Luftschicht 3 cm, Innenschale aus Kalksandstein mit erforderlicher Dämmung nach KfW-55-Standard, inkl. notwendigen Sperrschichten
- Stahlbetongeschoßdecken
- Dachbedeckung besteht aus Tondachpfannen (schwarz)
- Verkleidung der Gesims- und Traufseiten mit weißen Kunststoffbrettern
Innenausbau:
- Luft/Wasser-Wärmepumpe mit integriertem Wärmepumpenspeicher
- Fußbodenheizung in allen Geschossen
- alle Wände mit Gips verputzt
- schwimmender Estrich in allen Räumen verlegt
- Wandfliesen in allen WC´s sowie Badezimmern deckenhoch verfliest
- Bodenfliesen in: Abstellräumen, Treppenhaus, Bad, WC
- Bodenbelag: Vinyl
- sämtliche Decken & Wände wurden 1x weiß gestrichen
- Geschosstreppe besteht aus einem Stahlbetonkern und wurde mit Fliesenstufen hergestellt
- Geländer aus Stahl oder Edelstahl mit Handlauf
- Kunststofffenster in anthrazit mit 3-fach-Verglasung
- elektrische Rollläden an allen Fenstern
- Zimmertüren in Holz mit Holzzargen
Sonstiges:
- 8 Pkw-Stellplätze
- 1 Schuppen für Fahrräder und Mülltonnen
- Balkon oder Terrasse für jede Wohnung
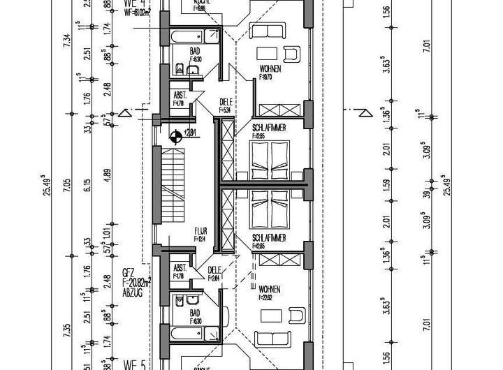
Aufteilung:
Wohnung 1 (71,96 m², Miete 850,00€)
- Wohnzimmer
- Schlafzimmer I + II
- Küche
- Bad mit Dusche
- Gäste-WC
- Abstellraum
- Flur
- Terrasse
Wohnung 2 (34,48 m², Miete 550,00€)
- Wohnzimmer mit offener Küche
- Schlafzimmer
- Bad mit Dusche
- Abstellraum
- Flur
- Terrasse
Wohnung 3 (71,96 m², Miete 850,00€)
- Wohnzimmer
- Schlafzimmer I + II
- Küche
- Bad mit Dusche
- Gäste-WC
- Abstellraum
- Flur
- Terrasse
Wohnung 4 (61,02 m², Miete 760,00 €)
- Wohnzimmer
- Schlafzimmer
- Küche
- Bad mit Dusche
- Abstellraum
- Flur
- Balkon
Wohnung 5 (61,23 m², Miete 750,00 €)
- Wohnzimmer
- Schlafzimmer
- Küche
- Bad mit Dusche
- Abstellraum
- Flur
- Balkon
Lage
Das Grundstück befindet sich in einer gepflegten Siedlung, die durch ihre ruhige Wohnlage zu überzeugen weiß. Neben diversen Betreuungs- und Bildungseinrichtungen wie Kindergärten und Schulen bietet Westerstede zudem eine exzellente ärztliche Versorgung aufgrund der Vielzahl verschiedener Fachärzte und dem ortsansässigen Krankenhaus, der "Ammerlandklinik". Nicht zu vernachlässigen ist, dass in Westerstede nahezu alle wichtigen Behörden einer Kreisstadt anzufinden sind. Außerdem kann Westerstede durch ein reges Vereinsleben, welches für diverse Sport- und Freizeitaktivitäten sorgt, punkten. Grüne Parkanlagen und Wälder wie zum Beispiel der Rhododrendron-Park oder der Hössenwald laden zu Spaziergängen ein, bei denen dem Alltag entflohen werden kann. Nicht zuletzt ist Westerstede verkehrsgünstig gelegen, da eine direkte Anbindung an die BAB 28 Emden/Leer-Oldenburg vorliegt, sodass Sie innerhalb von 15 Minuten die belebte Innenstadt Oldenburgs genießen können.
Grundriss
Grundriss Erdgeschoss
>
>
Grundriss Dachgeschoss
>
>
Adresse
26655 Westerstede
Interessante Orte
Preis- und Lageinformationen
Preistrend für Bestandsimmobilien in Westerstede