Dieser Walmdachbungalow befindet sich in begehrter Sackgassenlage von Vreschen-Bokel bei Augustfehn und bietet einen unverbaubaren Blick auf Wiesen und Felder - eine der begehrtesten Lagen!
Gliederung der Räumlichkeiten:
a) Kellergeschoss
Teilkeller bestehend aus einem Vorratsraum und Heizungsraum.
b) Erdgeschoss
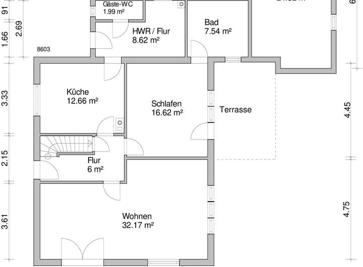
Eingangsdiele mit Garderobe, großzügiges Wohnzimmer, Küche mit Essbereich, Schlafzimmer mit Zugang zum Badezimmer, Hauswirtschaftsraum, Gäste-WC und Flur.
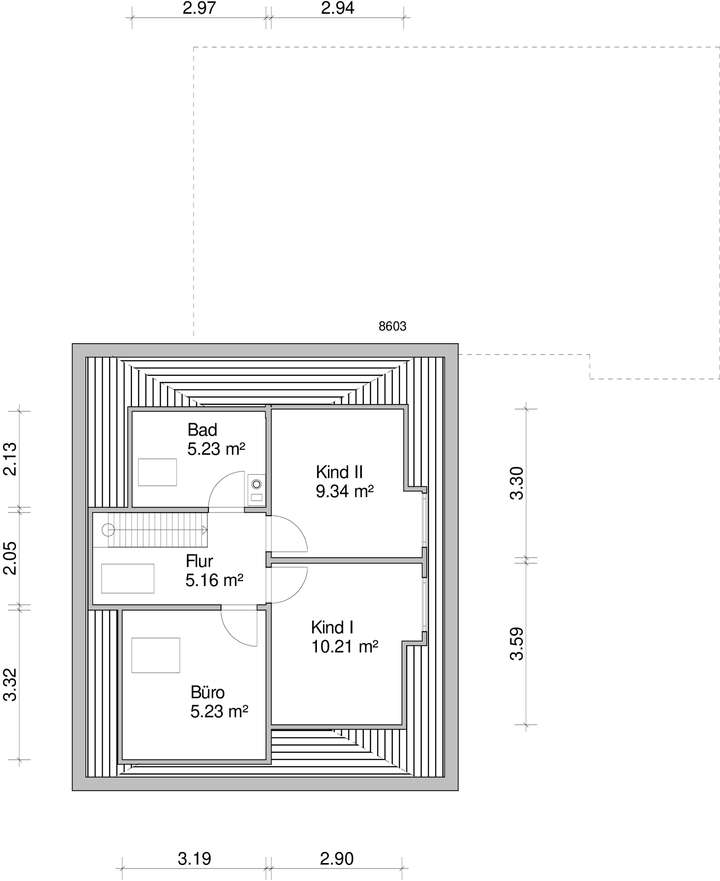
b) Dachgeschoss
Zwei Kinderzimmer, Büro, Badezimmer und Flur.
Die Wohnfläche beträgt ca. 120 m².
Die Nutzfläche beträgt ca. 69 m².
Weiter verfügt das Immobilienangebot über einen Garagenanbau in Flachdachausführung mit einem großzügigen Hobbyraum, der vielfältige Nutzungsmöglichkeiten bietet - etwa als Werkstattbereich oder Raum zur kreativen Entfaltung.
Der sehr gepflegte Walmdach-Bungalow wurde im Jahre 1968 in konventioneller Massivbauweise mit Teilkeller, Erdgeschoss und ausgebautem Dachgeschoss errichtet.
In den Jahre 2015 und 2016 erfuhr das Haus laut Eigentümer eine grundlegende Modernisierung:
- Neueindeckung des Walmdaches mit Dämmung und neuen Regenrinnen
- Einbau einer neuen Erdgas-Brennwert-Therme
- Einbau neuer Flachheizkörper (überwiegend)
- Einbau eines neuen Badezimmers im Erdgeschoss
- Modernisierung des Gäste-WC im Erdgeschoss
- Modernisierung des Badezimmers im Dachgeschoss
- Einbau neuer Kunststofffenster mit Isolierverglasung (überwiegend)
(im Wohnzimmer und der Küche stammen die Fenster aus 2013)
- die Hauseingangstür und die Nebeneingangstür stammen aus dem Jahre 2009
- Einbau eines neuen Garagen-Sektionaltores
- Einbau neuer Dachflächenfenster im Zuge der Neueindeckung des Daches
- Modernisierung der Elektro-Installation (überwiegend)
- Einbau neuer Innentüren
- Einbau einer neuen Einbauküche
- komplette Maler- und Bodenbelagsarbeiten
Das Verkaufsobjekt befindet sich in einem gepflegten Gesamtzustand.
Das Haus ist auf unbestimmte Zeit vermietet.
Der Energieausweis ist in Vorbereitung.
++ Begehrte Lage - an Wiesen und Weiden! Modernisierter Bungalow mit Garage in Vreschen-Bokel! ++
26689 Apen
Die vollständige Adresse der Immobilie erhalten Sie vom Anbieter.
Auf Karte anzeigen
Die vollständige Adresse der Immobilie erhalten Sie vom Anbieter.
Finanzierungszertifikat
In nur zwei Minuten zu Ihrem persönlichen Finanzierungszertifkat.
Infos
| Haustyp | Einfamilienhaus |
|---|---|
| Wohnfläche ca. | 120 m2 |
| Nutzfläche | 69 m2 |
| Grundstücksfläche | 800 m2 |
| Bezugsfrei ab | nach Vereinbarung |
| Zimmer | 5 |
| Schlafzimmer | 4 |
| Badezimmer | 2 |
| Garage/Stellplatz | Garage |
| Anzahl Garage/Stellplatz | 1 |
Kosten
| Kaufpreis |
329.000 € |
|---|---|
| Provision |
Die Käuferprovision beträgt 3,57 % inkl. 19 % MwSt. vom beurkundeten Kaufpreis. |
Finanzierungsrechner:
Kaufpreis:
600.000 €
Eigenkapital:
600.000 €
Monatliche Rate
0 €
Effektiver Jahreszins
0 %
Sollzinsbindung
10 Jahre
Bausubstanz & Energieausweis
| Baujahr | 1968 |
|---|---|
| Objektzustand | Gepflegt |
| Heizungsart | Zentralheizung |
| Energieausweis | laut Gesetz nicht erforderlich |
Beschreibung des Objekts
Lage
Der Bahnhof und sämtliche Versorgungseinrichtungen (Aldi, Edeka, Lidl usw.) befinden sich in Umkreis von nur ca. 1.000 m und sind allesamt bequem zu Fuß zu erreichen!
Die Kreisstadt Westerstede ist ca. 13 km entfernt. Hier befinden sich u.a. die Ammerland-Klinik, Fachärzte, sämtliche Kreisbehörden und das Gymnasium als weiterführende Schule. Augustfehn verfügt über sehr gute Verkehrsanbindungen.
Die BAB 28 (Anschlussstelle Nr. 4) ist nur ca. 6 km entfernt.
Weiter verfügt Augustfehn über einen Bahnhof an der Bahnstrecke Oldenburg - Leer. Von hier fahren Züge im stündlichen Wechsel in beide Richtungen. Der bekannte Kurort Bad Zwischenahn ist in ca. 15 Auto- bzw. Bahnminuten zu erreichen, die Oberzentren Oldenburg und Bremen in ca. ½ bzw. 1 Auto- bzw. Bahnstunde.
Sonstige Angaben
Zu diesem Objekt liegt ein ausführliches Exposé mit weiteren Detailinformationen vor, das Sie gerne bei uns anfordern können.
Telefonische Erreichbarkeit:
Montag - Freitag: 8.00 Uhr - 12.30 Uhr und 14.00 Uhr bis 17.30 Uhr
Samstag: 9.00 Uhr -12.00 Uhr
Sie möchten Ihre Immobilie verkaufen.....
..... und suchen den passenden Käufer?
Unabhängig davon, ob Sie aktuell oder erst in unbestimmter Zeit Ihre Immobilie verkaufen möchten, ist eine fundierte Beratung bares Geld wert. Wir wissen, worauf es beim professionellen Verkauf Ihrer Immobilie ankommt.
Über 60 Jahre Marktpräsenz und tausende Vermittlungen sprechen für sich.
Für ein kostenfreies und informatives Beratungsgespräch stehen wir Ihnen jederzeit gerne zur Verfügung.
Grundriss
Erdgeschoss
>
>
Dachgeschoss
>
>
Kellergeschoss
>
>
Adresse
26689 Apen
Interessante Orte
Preis- und Lageinformationen
Preistrend für Bestandsimmobilien in Apen