Dieses beeindruckende Einfamilienhaus in Ahrensbök verkörpert den Inbegriff individuellen Wohnens. Auf einer großzügigen Fläche von 206,60 Quadratmetern erstrecken sich acht lichtdurchflutete Zimmer, die dir und deiner Familie ausreichend Raum für persönliche Entfaltung bieten. Der einladende Eingangsbereich heißt dich und deine Gäste herzlich willkommen und setzt bereits beim Betreten Akzente. Der großzügige Wohn- und Essbereich verbindet sich harmonisch mit der Terrasse und schafft eine nahtlose Verbindung zwischen drinnen und draußen - perfekt für gesellige Abende oder entspannte Stunden im Freien. Hier kannst du deine Träume und Vorstellungen verwirklichen, während du gleichzeitig von den zahlreichen zusätzlichen Leistungen profitierst, die Living Haus dir bietet. Die Traumküche von Living Haus wird perfekt auf deinen Grundriss abgestimmt und begeistert mit modernster Technik, cleveren Stauraumlösungen und einem ansprechenden Design. So kannst du direkt nach dem Einzug loslegen und deine kulinarischen Fähigkeiten entfalten. Mit der Living Haus Bau-App behältst du stets den Überblick über dein Bauprojekt. Von der Zeitplanung bis zur Dokumentenverwaltung - alles ist digital und einfach zugänglich, was dir ein stressfreies Bauen ermöglicht. Das I-KON-Konzept vereint nachhaltiges Bauen mit modernster Technik und sorgt dafür, dass dein Zuhause energieeffizient und umweltfreundlich ist, während es gleichzeitig auf deine Bedürfnisse zugeschnitten wird. Das Zuhause-Darlehen bietet dir attraktive Finanzierungsmöglichkeiten, sodass du dein Traumhaus zu besonders günstigen Konditionen realisieren kannst. Das Zuhause-Paket beinhaltet eine hochwertige Grundausstattung, die alles für einen sofortigen Einzug umfasst - von modernen Böden über edle Türen bis hin zu stilvollen Sanitäranlagen. Und wenn du selbst Hand anlegen möchtest, steht dir das DIY-Ausbau-Coaching zur Verfügung, bei dem Experten dir zeigen, wie du den Innenausbau selbst meisterst.
LivingHaus: Wohnen neu definiert - dein individuelles Traumhaus in Ahrensbök, Ob Generationen unter
23623 Ahrensbök
Die vollständige Adresse der Immobilie erhalten Sie vom Anbieter.
Auf Karte anzeigen
Die vollständige Adresse der Immobilie erhalten Sie vom Anbieter.
Finanzierungszertifikat
In nur zwei Minuten zu Ihrem persönlichen Finanzierungszertifkat.
Infos
| Haustyp | Mehrfamilienhaus |
|---|---|
| Etagenzahl | 2 |
| Wohnfläche ca. | 206 m2 |
| Nutzfläche | 206,6 m2 |
| Grundstücksfläche | 600 m2 |
| Zimmer | 8 |
| Schlafzimmer | 4 |
| Badezimmer | 2 |
Kosten
| Kaufpreis |
794.934 € |
|---|
Finanzierungsrechner:
Kaufpreis:
600.000 €
Eigenkapital:
600.000 €
Monatliche Rate
0 €
Effektiver Jahreszins
0 %
Sollzinsbindung
10 Jahre
Bausubstanz & Energieausweis
| Baujahr | 2026 |
|---|---|
| Bauphase | Haus in Planung (projektiert) |
| Qualität der Austattung | Gehoben |
| Energieausweis | liegt vor |
| Energieausweistyp | Bedarfsausweis |
| Energieverbrauchskennwert | 18,0 kWh/(m²*a) |
| Energieeffizienzklasse | A+ |
18,0
kWh/(m²*a)
Energieeffizienzklasse A+
- A+
- A
- B
- C
- D
- E
- F
- G
- H
- 0
- 25
- 50
- 75
- 100
- 125
- 150
- 175
- 200
- 225
- >250
Beschreibung des Objekts
Ausstattung
Dein zukünftiges Zuhause wird mit einer Vielzahl an hochwertigen Ausstattungsmerkmalen versehen, die jeden Raum in einen Wohlfühlort verwandeln. Du kannst dich auf modernste Materialien und Technologien freuen, die in alle Bereiche deines Hauses integriert sind. Der Wohnbereich wird durch große Fenster lichtdurchflutet, während die Schlafzimmer mit behaglichen Teppichböden ausgestattet sind. Die Bäder überzeugen mit eleganten Fliesen und modernen Sanitäranlagen. Eine durchdachte Raumaufteilung sorgt für eine angenehme Wohnatmosphäre. Zudem erhältst du eine hochwertige Traumküche, die auf deinen individuellen Grundriss abgestimmt ist, sowie eine umfassende Grundausstattung, die alle wichtigen Elemente für dein neues Zuhause umfasst. Deine Wünsche stehen im Vordergrund, und alles wird so geplant, dass es deinem persönlichen Stil entspricht. Dein "Wie ich es will Fertighaus" wartet auf dich!
Lage
Ahrensbök bietet dir eine hervorragende Lebensqualität, die durch ein breites Spektrum an Bildungseinrichtungen, Freizeitmöglichkeiten und gesundheitlichen Angeboten geprägt ist. In der Nähe befinden sich mehrere Kindergärten und Schulen, darunter die Grundschule Ahrensbök, die für ihre engagierten Lehrkräfte und die familiäre Atmosphäre bekannt ist. Für die gesundheitliche Versorgung stehen dir verschiedene Arztpraxen zur Verfügung, die alle leicht erreichbar sind. Einkaufsmöglichkeiten für den täglichen Bedarf findest du in den nahegelegenen Supermärkten und Geschäften. Die gute Anbindung an den öffentlichen Nahverkehr sowie an die Autobahn ermöglicht es dir, bequem in die umliegenden Städte wie Lübeck oder Kiel zu pendeln. Ahrensbök ist von einer malerischen Landschaft umgeben, die ideal für Naturliebhaber ist. Hier kannst du entspannende Spaziergänge in der Natur genießen oder die zahlreichen Freizeitangebote wie Sportvereine und kulturelle Veranstaltungen wahrnehmen. Die Kombination aus ländlichem Charme und urbaner Anbindung macht Ahrensbök zu einem perfekten Ort für Familien und Pendler.
Sonstige Angaben
Das angebotene Grundstück ist im oben genannten Preis enthalten und wird ohne zusätzliche Provision an einen Living Haus-Bauherren bereitgestellt. Zusätzliche Baunebenkosten sind noch hinzuzufügen; hierbei beraten wir dich gerne. Wir bieten interessante Finanzierungsmöglichkeiten inklusive der Beantragung aller Fördermittel! Die Hausabbildungen und die Bilder der Inneneinrichtung zeigen möglicherweise Extras, die nicht im angegebenen Kaufpreis enthalten sind. Gute Beratung ist der Anfang von allem. Daher analysieren wir gemeinsam mit dir deine Vorstellungen, Wünsche und Bedürfnisse, um das passende Living Haus für dich und deine Familie zu finden. Interessiert? Kontaktiere mich und vereinbare noch heute einen kostenlosen und unverbindlichen Beratungstermin unter 0178-168 3993.
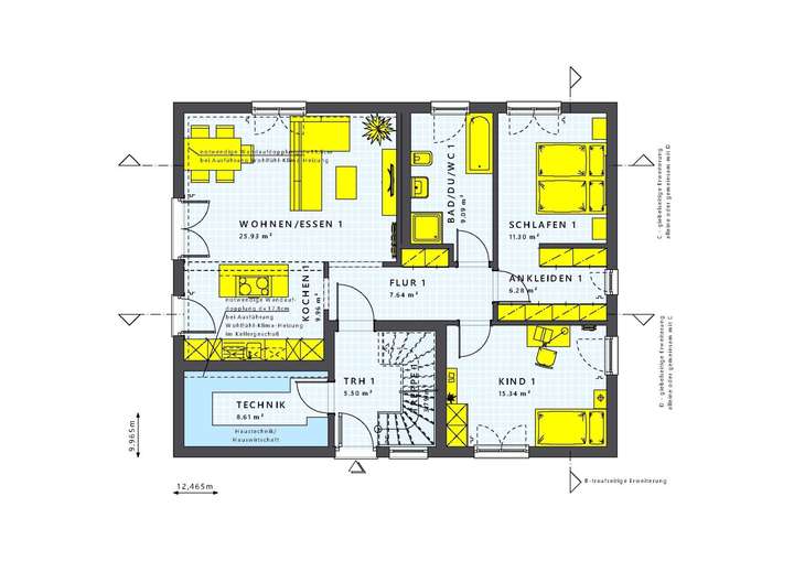
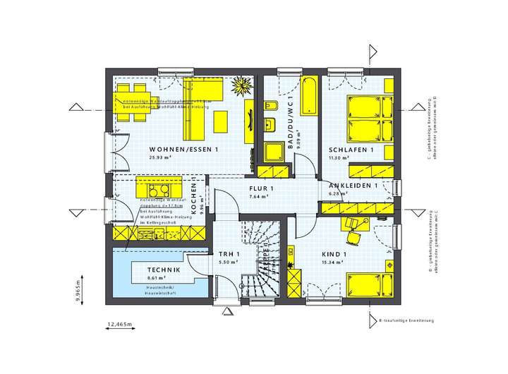
Grundriss
9675-538-18-g
>
>
9676-538-19-g
>
>
Adresse
23623 Ahrensbök
Interessante Orte
Preis- und Lageinformationen
Preistrend für Bestandsimmobilien in Ahrensbök