***Reizendes modernisiertes Reihenendhaus mit Terrasse und Garage in Offingen***
– eine tolle Alternative zu Ihrer Wohnung
In schöner Lage von Offingen finden Sie hier Ihr kleines Eigenheim mit ca. 66,82 m² Wohnfläche, einer sonnigen Terrasse, sowie zusätzlicher Nutzfläche durch das vollunterkellerte Untergeschoss. Sogar eine Garage mit Stellplatz davor kann für 9.500 Euro erworben werden. Das Haus befindet sich in einer kleinen Wohnungseigentümergemeinschaft (WEG) zusammen mit dem benachbarten Reihenmittelhaus auf der rechten Seite.
Das Gebäude wurde 1950 erbaut und im Laufe der Jahre umfassend modernisiert – zuletzt im Jahr 2024. Es präsentiert sich in einem sehr gepflegten Zustand, ist seit Februar 2025 vermietet, jedoch nach Absprache mit den Bewohnern auf Wunsch kurzfristig bezugsfrei. Die Terrasse grenzt direkt an die Garage an und ist ein schöner Platz zum Verweilen. Zusätzlich steht ein gemeinschaftlicher Garten zur Verfügung. Ein separater Außenzugang vom Untergeschoss führt direkt ins Grüne – praktisch für Hobbygärtner oder Familien mit Kindern.
***Ausstattung***
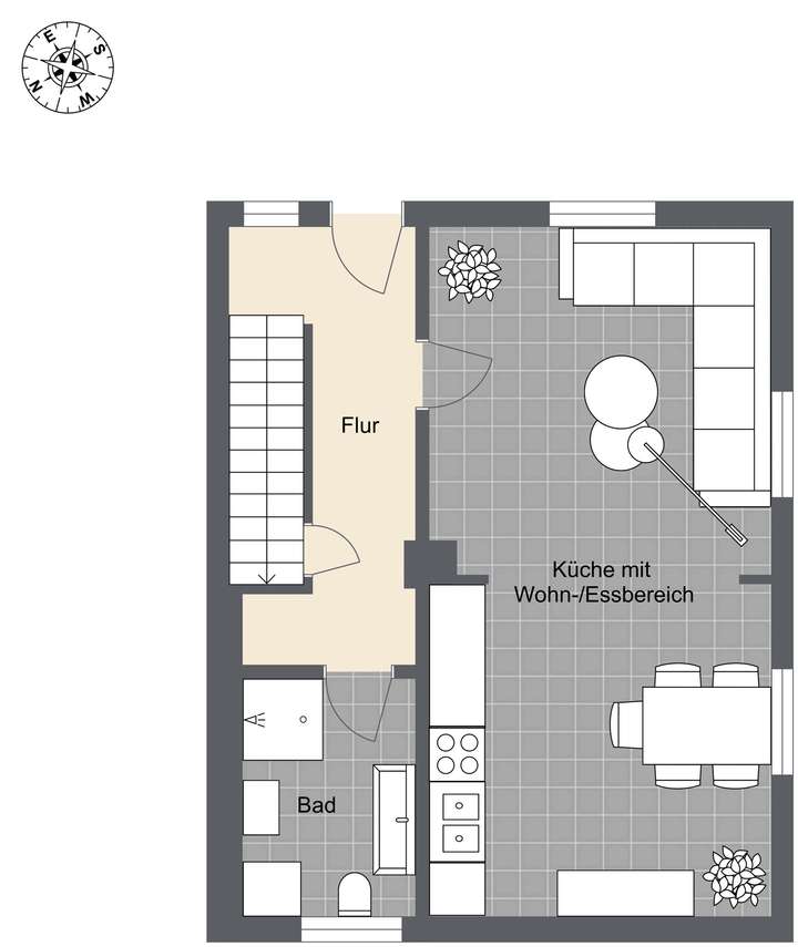
- Wohnfläche: ca. 66,82 m²
- plus Terrasse
- plus Nutzfläche: vollunterkellert, mit Garage und Abstellmöglichkeiten
- Grundstücksanteil: rechnerisch ca. 227,5 m² von gesamt 455 m²
- Baujahr: 1950
- umfangreich modernisiert im Jahr 2013 und 2024
- 2-fach-verglaste Kunststofffenster
- Rollläden zur Verschattung
- Beheizung: Gas
- Garage mit Stellplatz davor (zzgl. 9.500 €)
- Einbauküche (neu 2024) mit Geräten und Möbeln (zzgl. 4.000 €)
- Tageslichtbad mit begehbarer Dusche, Waschbecken, WC und Waschmaschinenanschluss
- abschließbarer Außenzugang vom UG in den Garten
***Ein absoluter Pluspunkt***
Die Immobilie war bislang nicht vom Hochwasser betroffen, was zusätzliche Sicherheit bietet.
Daher ist dieses Reihenendhaus die ideale Wahl für Familien, Paare oder Einzelpersonen, die eine ruhige und sichere Alternative zu einer Wohnung suchen. Es wartet eine tolle Kapitalanlage oder ein gemütliches Zuhause mit eigener Terrasse, Garten und Garage, mitten in einem gepflegten Wohngebiet von Offingen auf Sie.
PROVISIONSFREI: tolle Kapitalanlage oder Ihr erstes kleines Eigenheim
89362 Offingen
Die vollständige Adresse der Immobilie erhalten Sie vom Anbieter.
Auf Karte anzeigen
Die vollständige Adresse der Immobilie erhalten Sie vom Anbieter.
Finanzierungszertifikat
In nur zwei Minuten zu Ihrem persönlichen Finanzierungszertifkat.
Infos
| Haustyp | Reiheneckhaus |
|---|---|
| Wohnfläche ca. | 66 m2 |
| Grundstücksfläche | 227,5 m2 |
| Bezugsfrei ab | nach Absprache |
| Zimmer | 3 |
| Schlafzimmer | 2 |
| Badezimmer | 1 |
| Garage/Stellplatz | Garage |
| Anzahl Garage/Stellplatz | 1 |
Kosten
| Kaufpreis |
247.000 € |
|---|---|
| Preis für Garage/Stellplatz | 9.500 € |
| Provision | Nein |
Finanzierungsrechner:
Kaufpreis:
600.000 €
Eigenkapital:
600.000 €
Monatliche Rate
0 €
Effektiver Jahreszins
0 %
Sollzinsbindung
10 Jahre
Bausubstanz & Energieausweis
| Baujahr | 1950 |
|---|---|
| Objektzustand | Modernisiert |
| Heizungsart | Zentralheizung |
| Wesentliche Energieträger | Gas |
| Energieausweis | liegt vor |
| Energieausweistyp | Bedarfsausweis |
| Energieverbrauchskennwert | 318,2 kWh/(m²*a) |
| Energieeffizienzklasse | H |
318,2
kWh/(m²*a)
Energieeffizienzklasse H
- A+
- A
- B
- C
- D
- E
- F
- G
- H
- 0
- 25
- 50
- 75
- 100
- 125
- 150
- 175
- 200
- 225
- >250
Beschreibung des Objekts
Ausstattung
+++ALLES AUF EINEN BLICK+++
# reizendes modernisiertes Reihenendhaus
# mit toller Terrasse, gleich angrenzend an die Garage
# zudem ein gemeinschaftlicher Garten
# seit Februar 2025 vermietet - nach Absprache kurzfristig bezugsfrei
# in einer WEG, zusammen mit dem benachbarten Reihenmittelhaus verwaltet
# ca. 66,82 qm Wohnfläche
# plus Nutzfläche (Garage und UG) - voll unterkellert
# rechnerischer Grundstücksanteil ca. 227,5 qm auf die Gesamtgrundstücksgröße von 455 qm
# Baujahr 1950
# Modernisierungen in den Jahren 2013 und 2024
# Beheizung über Gas
# Energieeffizienzklasse H (Bedarf 318,2 kWh (m² x a))
# 2-fach-verglaste Kunststofffenster
# Rollläden dienen der Verschattung
# neue Einbauküche mit Einbaumöbeln und Geräten ist für 4.000 Euro zu übernehmen
# Tageslichtbad: mit Waschbecken, WM-Anschluss, WC und begehbarer Dusche
# inmitten eines gepflegten Wohngebiets
# eine eigene Garage mit Stellplatz davor ist für 9.500 Euro zu erwerben
# abschließbarer Außenzugang vom UG in den Garten
Das Haus ist derzeit vermietet, wird aber nach Abspache mit den Mietern kurzfristig bezugsfrei. Es eignet sich sowohl für Familien mit Kindern als auch für Paare oder Einzelpersonen, die Wert auf ruhiges Wohnen mit guter Anbindung legen.
***MODERNISIERUNGEN 2024***
- Innenputz
- Außenputz (Fassade)
- Pflasterarbeiten im Außenbereich
- Küche
- Duschkabine
- Bodenbeläge
- Geländer
***MODERNISIERUNGEN 2013***
- Heizung
- Fenster
- Leitungen und Rohre
- Badezimmer
- Heizkörper
- Rollläden
Wasser und Strom sind für beide Häuser getrennt, die Heizung befindet sich für beide Häuser im Untergeschoss diesen Reihenmittelhauses
***MIETEINNAHMEN***
- Kaltmiete: 850,- Euro inkl. Garage und Küche
- keine Kaution
- Nebenkosten werden vollumfänglich vom Mieter direkt selbst übernommen und geleistet
Lage
Offingen, mit seinen rund 4.400 Einwohnern, liegt verkehrsgünstig im Landkreis Günzburg zwischen Ulm und Augsburg. Der Bahnhof an der Zugstrecke Stuttgart–München sowie die nahegelegene Autobahn A8 (Anschluss Burgau) garantieren eine schnelle und bequeme Anbindung. Busverbindungen und ein ausgebautes Rad-/Fußwegenetz ergänzen die Mobilität vor Ort.
Für Familien ist die schulische Versorgung hervorragend: Es gibt eine Grund- und Mittelschule direkt in Offingen. Weiterführende Schulen finden sich in den umliegenden Städten wie Burgau, Günzburg (z. B. Dossenberger-Gymnasium, Maria-Ward-Gymnasium sowie mehrere Realschulen), Wettenhausen und Ichenhausen.
Zur Freizeitgestaltung im Sommer bietet die Region mehrere Freibäder und Badeseen: Das Waldbad in Günzburg und das Freibad in Burgau sind nur wenige Kilometer entfernt und mit öffentlichen Verkehrsmitteln oder mit dem Auto gut zu erreichen. Viele der ehemaligen Kies- und Baggerseen rund um Günzburg dienen als Naherholungsgebiete; einige davon sind offiziell als Badegewässer ausgewiesen. Für Filmfreunde steht das örtliche Kino in Offingen zur Verfügung; ein größeres Kino mit breitem Programmangebot findet sich in Günzburg.
Ein besonderes Highlight ist das nahegelegene LEGOLAND Deutschland Resort in Günzburg, das mit seinem Freizeitangebot Familien aus der ganzen Region anzieht. Ergänzt wird das Angebot durch ein aktives Vereinsleben in Offingen, etwa durch den TSV Offingen und zahlreiche weitere Sport- und Kulturvereine – ideal für alle, die Gemeinschaft und Freizeitgestaltung in der Nähe schätzen.
Auch wirtschaftlich ist Offingen attraktiv: Mit einer Vielzahl an Unternehmen aus Industrie, Handwerk, Handel und Dienstleistung bietet der Ort zahlreiche Arbeitsplätze und eine solide wirtschaftliche Basis.
Damit vereint Offingen naturnahes Wohnen mit idealer Verkehrsanbindung, ausgezeichneter Infrastruktur, guten Arbeitsmöglichkeiten und hohem Freizeitwert – eine attraktive Adresse besonders für Familien, Berufspendler und Erholungssuchende.
Sonstige Angaben
Für dieses Objekt ist ein virtueller 3D-Rundgang verfügbar. Diesen erreichen Sie über folgende Adresse:
https://app.immoviewer.com/portal/tour/3129492
Alle im Exposé veröffentlichten Angaben, insbesondere zur (Wohn-) Fläche sowie (Wohn-) Flächenberechnungsmethode, sind ungeprüfte Angaben des Auftraggebers und können vom aktuellen Stand abweichen.
Die (Wohn-) Flächenangaben stellen "circa"-Flächenangaben, also nur Näherungswerte, dar.
Sämtliche im Exposé abgedruckten Grundrisspläne und Lichtbilder dienen lediglich der Visualisierung, sind nicht maßstäblich und können vom aktuellen Stand abweichen.
Irrtum und Fehler bleiben vorbehalten.
Zur Verfügung gestellte Objektunterlagen
Grundriss
Grundriss EG
>
>
Grundriss DG
>
>
Grundriss UG
>
>
Adresse
89362 Offingen
Interessante Orte
Preis- und Lageinformationen
Preistrend für Bestandsimmobilien in Offingen