Zum Verkauf steht ein charaktervolles, sanierungsfähiges Bauernhaus auf einem attraktiven Grundstück in ruhiger Lage von Bockhorn-Steinhausen.
Das ursprüngliche Baujahr des Hauses liegt um 1860, spätere Erweiterungen erfolgten in 1958 und 1967.
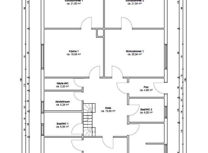
Eine weitere Möglichkeit anstelle einer Nutzung als Ein- oder Zweifamilienhaus besteht in der Erweiterung auf bis zu fünf bzw. sechs Wohneinheiten. Damit bietet das Objekt hervorragendes Potenzial für Investoren oder Projektentwickler.
Das Haus ist frei und verfügbar, die Übergabe erfolgt nach Absprache.
In den letzten Jahren wurden bereits einige Modernisierungen vorgenommen, darunter Fenster und Bodenbeläge.
Ihre Entscheidung: Sanierung oder Neubau
Sanierung:
Bewahren Sie den besonderen Charme des historischen Bauernhauses und gestalten Sie es nach Ihren individuellen Vorstellungen.
Neubau:
Nutzen Sie das großzügige Grundstück für einen individuellen Neubau. Nach Rücksprache mit der Gemeinde besteht die Möglichkeit, ein weiteres Doppelhaus zu errichten oder das Grundstück anteilig zu erwerben.
Charmantes Bauernhaus mit großem Potenzial in Bockhorn-Steinhausen ,Sanierung, Neubau oder Teilverka
26345 Bockhorn
Die vollständige Adresse der Immobilie erhalten Sie vom Anbieter.
Auf Karte anzeigen
Die vollständige Adresse der Immobilie erhalten Sie vom Anbieter.
Finanzierungszertifikat
In nur zwei Minuten zu Ihrem persönlichen Finanzierungszertifkat.
Infos
| Haustyp | Einfamilienhaus |
|---|---|
| Etagenzahl | 2 |
| Wohnfläche ca. | 190 m2 |
| Nutzfläche | 100 m2 |
| Grundstücksfläche | 700 m2 |
| Zimmer | 8 |
| Schlafzimmer | 3 |
| Badezimmer | 2 |
| Garage/Stellplatz | Garage |
| Anzahl Garage/Stellplatz | 2 |
Kosten
| Kaufpreis |
125.000 € |
|---|---|
| Provision |
3,57 % |
Finanzierungsrechner:
Kaufpreis:
600.000 €
Eigenkapital:
600.000 €
Monatliche Rate
0 €
Effektiver Jahreszins
0 %
Sollzinsbindung
10 Jahre
Bausubstanz & Energieausweis
| Baujahr | 1958 |
|---|---|
| Letzte Sanierung | 2022 |
| Objektzustand | Renovierungsbedürftig |
| Qualität der Austattung | Einfach |
| Heizungsart | Gas-Heizung |
| Wesentliche Energieträger | Gas |
| Energieausweis | liegt vor |
| Energieausweistyp | Verbrauchsausweis |
| Energieverbrauchskennwert | 300,8 kWh/(m²*a) |
| Energieeffizienzklasse | H |
300,8
kWh/(m²*a)
Energieeffizienzklasse H
- A+
- A
- B
- C
- D
- E
- F
- G
- H
- 0
- 25
- 50
- 75
- 100
- 125
- 150
- 175
- 200
- 225
- >250
Beschreibung des Objekts
Ausstattung
Erweiterung auf bis zu fünf bzw. sechs Wohneinheiten
Großzügiges Grundstück
Erweiterungspotenzial bis zu ca 300 qm Wohnfläche
Historisches Bauernhaus mit Charme
Ausbaumöglichkeiten im DG
Gute Lage mit guter Anbindung
Lage
Bockhorn ist eine Gemeinde im Landkreis Friesland im nordwestlichen Niedersachsen und ein staatlich anerkannter Erholungsort. Historisch gehört die Gemeinde zum Oldenburger Land und bietet eine reizvolle Landschaft mit hohem Erholungswert. Das nahegelegene Steinhausen gilt als eines der schönsten Dörfer Frieslands und besticht durch seine idyllische Atmosphäre und historische Bedeutung. Weitere Informationen zur Geschichte von Steinhausen finden Sie unter: Bürgerverein Steinhausen.
Sonstige Angaben
Wir bitten Sie, das Grundstück aus Gründen der Privatsphäre nicht zu betreten. Eine Besichtigung ist nach vorheriger Terminvereinbarung mit unserem Büro möglich.
Ein Energieausweis liegt vor.
Das Dach ist nicht gedämmt und die Heizung ist derzeit defekt. Der Gasverbrauch im Jahr 2024 betrug ca. 19.000 kWh.
Adresse
26345 Bockhorn
Interessante Orte
Preis- und Lageinformationen
Preistrend für Bestandsimmobilien in Bockhorn