Das angebotene Grundstück mit einer Fläche von 690 m² bietet eine hervorragende Gelegenheit für den Bau eines Doppelhauses. Die leichte Hanglage des Grundstücks ermöglicht eine attraktive architektonische Gestaltung und bietet zudem eine angenehme Aussicht in Ortsrandlage.
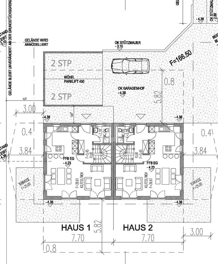
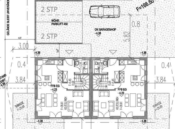
Haus 1 umfasst eine Fläche von 276 m² inklusive eines Doppelparkers, während Haus 2 eine Fläche von 244 m² bietet, ebenfalls mit einem Doppelparker.
Der gemeinsame Zufahrtsbereich, einschließlich Rampe, erstreckt sich über 188 m² und bietet ausreichend Platz für eine komfortable Erschließung.
Die Gesamtfläche für den Neubau beträgt somit 690 m², was eine optimale Nutzung des Grundstücks gewährleistet. Die Planung sieht eine durchdachte Raumaufteilung vor, die sowohl Funktionalität als auch Wohnkomfort in den Vordergrund stellt.
Die Lage des Grundstücks bietet eine ruhige und familienfreundliche Umgebung, die dennoch eine gute Anbindung an die städtische Infrastruktur gewährleistet. Einkaufsmöglichkeiten, Schulen und Freizeiteinrichtungen sind in der Nähe und leicht erreichbar.
Mit einem Gesamtkaufpreis von 548.000 € stellt dieses Grundstück eine wertvolle Investition in eine zukunftssichere Wohnlage dar. Die Möglichkeit, ein Doppelhaus zu errichten, bietet Flexibilität für individuelle Wohnbedürfnisse und schafft Raum für eine harmonische Nachbarschaft.
Dieses Grundstück ist eine ideale Wahl für Familien, die ein modernes und komfortables Zuhause in einer attraktiven Lage suchen - entweder zusammen mit Angehörigen, oder Freunden, die sich zu zweit den Traum vom Eigenheim verwirklichen wollen.
WINDISCH IMMOBILIEN - Grundstück in Orsrandlage mit genehmigter Planung für ein Doppelhaus
82281 Egenhofen
Die vollständige Adresse der Immobilie erhalten Sie vom Anbieter.
Auf Karte anzeigen
Die vollständige Adresse der Immobilie erhalten Sie vom Anbieter.
Finanzierungszertifikat
In nur zwei Minuten zu Ihrem persönlichen Finanzierungszertifkat.
Infos
| Vermarktungsart | Kaufen |
|---|---|
| Grundstücksfläche | 690 m2 |
| Erschließung | Teilerschlossen |
| Empfohlene Nutzung | Doppelhaus, Einfamilienhaus |
| Grundflächenzahl (GRZ) | 0.22 |
| Geschossflächenzahl (GFZ) | 0.32 |
| Bebaubar nach | wie Nachbarbebauung |
Kosten
| Miete pro Jahr |
548.000 € |
|---|---|
| Provision |
2,975 % inkl. 19 % MwSt. |
Finanzierungsrechner:
Kaufpreis:
600.000 €
Eigenkapital:
600.000 €
Monatliche Rate
0 €
Effektiver Jahreszins
0 %
Sollzinsbindung
10 Jahre
Beschreibung des Objekts
Lage
Eingebettet inmitten der reizvollen Hügellandschaft präsentiert sich das Grundstück in Ortsrandlage als grüne Oase mit ausgezeichneter Infrastruktur.
ÜBER EGENHOFEN
Die Gemeinde Egenhofen ist eine aufstrebende, traditionsbewusste und lebendige Gemeinde, bestehend aus 24 Ortsteilen und Weilern. Sie liegt ziemlich genau in der Mitte zwischen München und Augsburg im Norden des Landkreises Fürstenfeldbruck.
In Egenhofen leben mittlerweile ca. 3.500 Einwohner. Lokale Einkaufsmöglichkeiten, wie Bäcker und Metzger sind direkt in Egenhofen als auch in den Nachbargemeinden Mammendorf und Maisach in kurzer Zeit erreichbar. Ebenso wenige Fahrminuten entfernt bietet die Gemeinde Odelzhausen eine Vielzahl an Gastronomie, Arztpraxen und zusätzliche Geschäfte.
Auch ein Kindergarten und eine Grundschule sind in Egenhofen vorzufinden - weiterführende Schulen in Maisach, Olching oder auch Fürstenfeldbruck. Das Rathaus der Gemeinde Egenhofen befindet sich im Ortsteil Unterschweinbach. Im Norden grenzt die Gemeinde an den Landkreis Dachau.
FREIZEIT & KULTUR
Die malerische umliegende Landschaft, wie zum Beispiel das Haspelmoor, lädt zu zahlreichen Ausflügen ein, egal ob zu Fuß, zu Pferd oder auf dem Rad.
Golfbegeisterte finden hier gleich drei Golfplätze (Golfclub Rottbach, Golfclub Tegernbach und Golfclub München West Odelzhausen) in der näheren Umgebung, auf denen sich der Alltag vergessen lässt. Diverse Reitställe befinden sich ebenfalls in unmittelbarer Nähe und nicht zu vergessen, der Freizeitpark Mammendorf mit seinem dazugehörigen Badesee. Zahlreiche Vereine und Veranstaltungen ermöglichen somit eine individuelle Freizeitgestaltung.
VERKEHRSANBINDUNGEN
Wer die Nähe zur Stadt sucht, erreicht innerhalb von 30 Minuten über die nahgelegene Autobahn (A8) sowohl München als auch Augsburg. Der Flughafen ist in 40 Minuten gut über die A8 erreichbar.
Mit der S-Bahn (S3) ab Mammendorf oder Maisach sind Sie in ca. 45 min im Zentrum der bayerischen Landeshauptstadt, in 25 min. erreichen Sie München-Pasing.
Auch die Busanbindungen sind u.a. mit einem Expressbus nach München-Pasing ausgezeichnet.
Sonstige Angaben
Folgen Sie uns auf Instagram/Facebook für exklusive Einblicke in unser Unternehmen: @windischimmobilien
WINDISCH IMMOBILIEN bietet neue Objekte zunächst den registrierten Suchkunden an. Dies bietet für Sie den Vorteil, dass Sie einen zeitlichen Vorsprung gegenüber den nicht registrierten Suchenden haben. Sie werden über das Immobilienangebot durch WINDISCH IMMOBILIEN informiert, schon bevor es in den Internetportalen platziert wird. Registrieren Sie sich hierfür unter https://windisch-immobilien.de/registrierung/
PROVISION
Bei Erwerb der im Exposé beworbenen Immobilie ist vom Käufer die Käuferprovision zu zahlen. Die Höhe der Provision richtet sich nach dem beurkundeten Kaufpreis. Das im Exposé beworbene Objekt wird Ihnen durch WINDISCH IMMOBILIEN vermittelt.
HAFTUNGSAUSSCHLUSS:
Trotz regelmäßiger Prüfung von Daten, Bildern und Informationen übernehmen wir keine Haftung für die Richtigkeit der Angaben. Ebenso wenig für die Verfügbarkeit des Angebotes bei Vermietung oder Verkauf. Es gelten unsere Allgemeinen Geschäftsbedingungen.
Grundriss
Grundriss Erdgeschoss
>
>
Grundriss Obergeschoss
>
>
Grundriss Dachgeschoss
>
>
Grundriss Kellergeschoss
>
>