Top Lage mit Aussicht
Öffnen Sie Herz und Augen für eine der begehrtesten Lagen, die Steinheim zu bieten hat. Wer hier steht und den Blick hebt, genießt eine herrliche Aussicht und spürt sofort das besondere Lebensgefühl dieses Ortes. In dieser bevorzugten Wohnlage wird Ihr persönlicher Wohntraum Wirklichkeit.
ARCHITEKTUR mit Charakter.
Die Doppelhaushälfte überzeugt durch klare Linien, eine moderne Formensprache und einen durchdachten Grundriss. Der zeitlos-elegante Baukörper fügt sich harmonisch in die Umgebung ein und präsentiert sich dennoch mit einer selbstbewussten architektonischen Note.
Große Fensterflächen schaffen helle, lichtdurchflutete Räume und ermöglichen weite Blicke ins Grüne. Gleichzeitig sorgen sie für Geborgenheit und Privatsphäre – ein gelungenes Zusammenspiel von Offenheit und Rückzug.
Das Innere des Hauses ist geprägt von einer modernen, harmonischen Gestaltung. Hochwertige Materialien, großzügige Raumhöhen und eine klare Linienführung schaffen ein Ambiente, das Stil und Behaglichkeit perfekt vereint.
WOHNEN mit Weitblick.
Diese Doppelhaushälfte steht für modernes Wohnen mit einem besonderen Anspruch. Hier genießen Sie das Leben in ruhiger, naturnaher Umgebung – und dennoch in unmittelbarer Nähe zur Stadt.
Ein Ort, an dem Sie zur Ruhe kommen, Energie tanken und den Alltag hinter sich lassen können.
Das Wohnkonzept wurde mit viel Liebe zum Detail und dem Blick auf das Wesentliche entwickelt: Funktionalität, Licht, Raumgefühl und Wohnkomfort.
Wenn wir Ihr Interesse geweckt haben und Sie sich nach einem neuen Rückzugsort in bester Lage umsehen, freuen wir uns über Ihre Anfrage.
Aus Diskretionsgründen werden nur ausgewählte Bilder veröffentlicht.
Gerne senden wir Ihnen auf Anfrage weitere Unterlagen und Grundrisse zu.
Wohnen mit Weitblick: Traumhafte Doppelhaushälfte in Top-Lage (Effizienz B)
71711 Steinheim an der Murr
Die vollständige Adresse der Immobilie erhalten Sie vom Anbieter.
Auf Karte anzeigen
Die vollständige Adresse der Immobilie erhalten Sie vom Anbieter.
Finanzierungszertifikat
In nur zwei Minuten zu Ihrem persönlichen Finanzierungszertifkat.
Infos
| Haustyp | Doppelhaushaelfte |
|---|---|
| Wohnfläche ca. | 161 m2 |
| Grundstücksfläche | 347 m2 |
| Bezugsfrei ab | 12-2026 |
| Zimmer | 6 |
Kosten
| Kaufpreis |
789.000 € |
|---|---|
| Provision |
3,57% inkl. MwSt. |
Finanzierungsrechner:
Kaufpreis:
600.000 €
Eigenkapital:
600.000 €
Monatliche Rate
0 €
Effektiver Jahreszins
0 %
Sollzinsbindung
10 Jahre
Bausubstanz & Energieausweis
| Baujahr | 2002 |
|---|---|
| Heizungsart | Gas-Heizung |
| Energieausweis | liegt vor |
| Energieausweistyp | Verbrauchsausweis |
| Energieverbrauchskennwert | 38,1 kWh/(m²*a) |
| Energieeffizienzklasse | A |
38,1
kWh/(m²*a)
Energieeffizienzklasse A
- A+
- A
- B
- C
- D
- E
- F
- G
- H
- 0
- 25
- 50
- 75
- 100
- 125
- 150
- 175
- 200
- 225
- >250
Beschreibung des Objekts
Ausstattung
Ausstattung
Dieses massiv gebaute Architektenhaus überzeugt durch eine individuell geplante Architektur, einen durchdachten Grundriss und eine hochwertige Ausstattung, die Wohnqualität und Komfort auf höchstem Niveau vereint.
Bereits beim Betreten des Hauses empfängt Sie ein einladender Eingangsbereich, der die architektonische Handschrift des Hauses erkennen lässt. Hier wird sofort spürbar: Dieses Haus ist etwas Besonderes – klar strukturiert, hell und mit Liebe zum Detail gestaltet.
Im Erdgeschoss öffnet sich ein großzügiger Wohn- und Essbereich mit offener Einbauküche. Die moderne Küche ist funktional durchdacht und mit hochwertigen Geräten ausgestattet – ein Ort, an dem Kochen und Genießen gleichermaßen Freude bereiten. Große Fensterflächen schaffen eine helle, freundliche Atmosphäre und verbinden Innen- und Außenbereich harmonisch miteinander.
Der weitläufige Garten mit herrlicher Aussicht lädt zum Entspannen und Verweilen ein. Dank der Randlage genießen Sie hier Ruhe und Privatsphäre, umgeben von viel Grün.
Das Obergeschoss bietet weitere behagliche Räume mit beeindruckender Aussicht. Besonders hervorzuheben ist das große Badezimmer mit Tageslicht – ein Ort des Wohlfühlens, ausgestattet mit moderner Sanitärtechnik und edlen Materialien.
Die funktionale Aufteilung sorgt für klare Linien und eine angenehme Raumwirkung. Das Dachgeschoss eröffnet einen atemberaubenden Blick in die Umgebung und setzt dem Wohnkomfort die Krone auf – hier möchte man einfach wohnen bleiben.
Auch technisch ist das Haus bestens ausgestattet: Die massive Bauweise mit gedämmter Bodenplatte sorgt für hervorragende Energieeffizienz und ein angenehmes Raumklima.
Ausstattung im Überblick
massive Bauweise
individuell geplantes Architektenhaus
Gasheizung
Fußbodenheizung im Bad
hochwertige Elektroausstattung
Einbauküche mit modernen Geräten
großes, lichtdurchflutetes Badezimmer mit Tageslicht
großzügiger Garten mit herrlicher Aussicht
massive Wände und sehr gute Energiewerte
Dämmung unter der Bodenplatte bereits integriert
Garage mit einem zusätzlichen Stellplatz
Obergschoss und Dachgeschoss mit beeindruckendem Ausblick
Eingangsbereich architektonisch ansprechend gestaltet
Top Zustand
Ein Zuhause mit Charakter und Komfort – hier wird Wohnen zum Genuss.
Vereinbaren Sie gerne einen persönlichen Besichtigungstermin.
Lage
Eine UMGEBUNG ZUM WOHLFÜHLEN im wunderschönen Bottwartal. Einziehen und heimisch fühlen. Hier wird ein Traum von Wohnen wahr.
Ihr neues Zuhause liegt in einem ruhigen Wohngebiet von Steinheim an der Murr, einer Stadt im Landkreis Ludwigsburg mit mehr als 12.000 Einwohnern.
Nur wenige Kilometer trennen Sie vom Zentrum von Steinheim, das sich zu Fuß, mit dem Auto oder öffentlichen Verkehrsmitteln zeitnah erreichen lässt. Die attraktiven Busverbindungen bringen Sie in kürzester Zeit zur S-Bahn Marbach oder S-Bahn Erdmannhausen.
Sämtliche Einkaufsmöglichkeiten des täglichen Bedarfs befinden sich in unmittelbarer Nähe.
Der Ort liegt gebettet in einer malerischen, von Weinbergen und Feldern geprägten Naturlandschaft. Als Wohnort besticht Steinheim durch einen historischen Stadtkern, vielseitige Erholungs- und Freizeitangebote sowie eine ausgeprägte Infrastruktur.
Sie haben Kinder? In unmittelbarer Nähe Ihres Zuhauses befindet sich die Blankenstein-Grundschule, die Riedbach-Gemeinschaftsschule und die Erich Kästner Realschule sowie das bekannte Friedrich-Schiller-Gymnasium in Marbach.
Freuen Sie sich außerdem auf eine Vielzahl kultureller und kulinarischer Entdeckungen! Neben den vielen Möglichkeiten, die Natur zu erkunden, bietet Steinheim ein breites Angebot an örtlichen Vereinen für alle Altersgruppen.
Sonstige Angaben
Die Angaben in diesem Exposé beruhen auf uns erteilten Informationen. Eine Haftung für die Richtigkeit und Vollständigkeit können wir jedoch nicht übernehmen. Unser Nachweis- und/oder Vermittlungshonorar beträgt vom Käufer bei einem Kauf 3,57% des Kaufpreises, inklusive der gesetzlichen Mehrwertsteuer, fällig bei Vertragsabschluss.
Sie benötigen Hilfe bei Ihrer Finanzierung? Wir bieten zahlreiche Möglichkeiten und ein Top Service an. Besuchen Sie uns auf unserer Website:
www.kube5.de/baufinanzierung/
WICHTIG – Bitte beachten:
Bei Interesse an dieser Immobilie füllen Sie bitte das Kontaktformular vollständig aus. Bitte haben Sie Verständnis dafür, dass wir nur Anfragen bearbeiten können, bei denen die vollständige Adresse und Telefonnummer angegeben ist. Zu diesem Angebot liegt ein ausführliches Exposé mit weiteren Detailinformationen und vollständiger Objektadresse vor, das Sie gerne bei uns anfordern können.
Weitere Angebote finden Sie auf unserer Website:
www.kube.de
Unser Service für Mieter:
Wir unterstützen Sie bei der Suche nach einer geeigneten Wohnung und auch bei der Nachvermietung Ihrer Immobilie.
Unser Service für Eigentümer und Vermieter:
Möchten Sie Ihre Immobilie vermieten oder verkaufen?
Wir unterstützen Sie gerne fachkundig und unkompliziert. Wir bieten diskrete und seriöse Beratung rund um die
Immobilie:
Bewertung Ihrer Immobilie anhand der aktuellen Marktgegebenheiten
Entwicklung einer Vermarktungsstrategie für Vermietung oder Verkauf
Machen Sie sich unsere langjährige Markterfahrung zunutze, um Ihre Ziele zu erreichen. Rufen Sie uns an oder senden Sie uns eine E-Mail. Gerne stehen wir Ihnen auch für ein unverbindliches persönliches Gespräch oder eine Besichtigung Ihres Objekts zur Verfügung.
Hinweis zum Geldwäschegesetz: Gemäß § 2 Abs. 1 Nr. 10 GwG sind Immobilienvermittler verpflichtet, Kaufinteressenten zu identifizieren. Hierzu müssen von jedem Interessenten die persönlichen Daten sowie die
Kontaktdaten aufgenommen und überprüft werden.
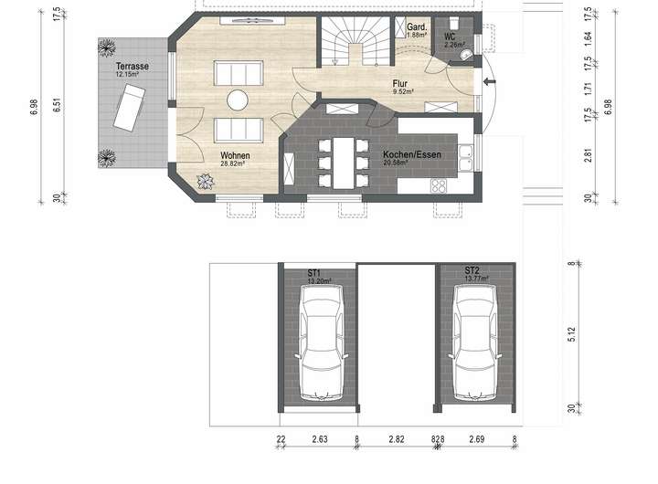
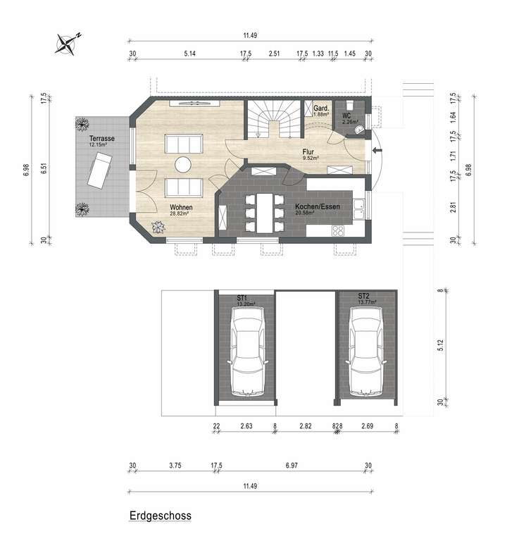
Grundriss
Erdgeschoss
>
>
Obergeschoss
>
>
Dachgeschoss
>
>
Untergeschoss
>
>
Adresse
71711 Steinheim an der Murr
Interessante Orte
Preis- und Lageinformationen
Preistrend für Bestandsimmobilien in Steinheim an der Murr