Das gepflegte Wohnhaus befindet sich in der kleinen Ortschaft Neuendorf, nahe dem Ostseebad Zinnowitz, in ruhigen Ortsrandlage, ohne Durchgangsverkehr, umgeben von freien Feldern und wenigen Wohnhäusern.
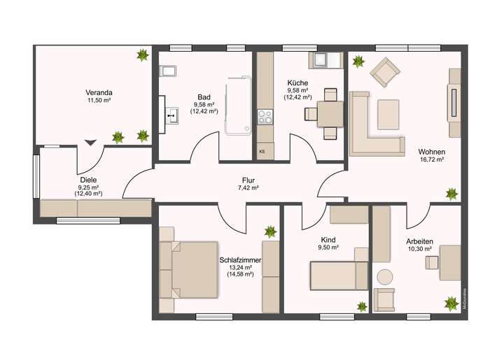
Das Haus verfügt über 4 Zimmer, eine Küche und ein Badezimmer, mit einer Wohnfläche von ca. 90 m². Im Erdgeschoß stellt das Wohnzimmer den Mittelpunkt des Hauses dar. Große Fenster sorgen für ein helles und angenehmes Raumgefühl. Die separate Küche ist mit modernen Einbauschränken versehen und bietet einen gemütlichen Essbereich. Über den zentralen Flur, von der geräumigen Diele ausgehend, erreichen Sie das große Badezimmer und drei weitere Zimmer, das Schlafzimmer, ein Kinderzimmer und ein Arbeitszimmer. Das Bad mit Tageslicht ist mit einer großen ebenerdigen Dusche, WC und einem Waschtisch ausgestattet. Das Wohn- und das Kinderzimmer, sowie der Flur verfügen über einen Laminat-Fußbodenbelag, das Schlaf- und das Arbeitszimmer sind mit einem Teppichbelag versehen. Die Küche verfügt über helle Bodenfliesen.
Das umzäunte und großzügige Grundstück mit seiner Größe von über 1.700 qm bietet Ihnen reichlich Platz und diverse Unterstellmöglichkeiten. Ein vorhandenes Nebengebäude verfügt über einen separaten Raum, welcher als Hauswirtschaftsraum genutzt wird und einen weiteren Hobbyraum/Werkstatt. Auf der Giebelseite dieses Gebäudes befindet sich ein Doppelcarport. Ein weiteres Carport befindet sich auf dem Grundstück.
Auf dem idyllischen Grundstück können Sie sich ideal erholen und und den Tag gemütlich ausklingen lassen. Auch eine gärtnerischen Betätigung und viel Platz zum Spielen ergänzen sich gut auf diesem Grundstück. Das Haus ist an die öffentl. Versorgungsmedien Abwasser, Trinkwasser, Strom und Glasfaser angeschlossen.
Im hinteren Bereich des Grundstücks befindet sich ein Ferienhaus, welches 1997 in Holzbauweise errichtet wurde. Es bietet auf ca. 24 m² Platz für ein Wohnzimmer, eine kleine Küche, ein Schlafzimmer und ein Bad mit Dusche, sowie eine geräumige Terrasse.
Die Haushälfte wurde im Jahr 2000 umfangreich saniert. Es wurden neue Fenster eingebaut, eine neue Heizung, neue Wasserleitungen, die Elektik erneuert, die Hausfassade wurde neu gedämmt, sowie der Innenausbau mit Malerarbeiten, Bodenbeläge und die Sanitärausstattung neu gestaltet. Das Dach wurde 2015 neu eingedeckt.
Wohnen in ruhiger Ortsrandlage in Neuendorf bei Zinnowitz
17440 Lütow
Die vollständige Adresse der Immobilie erhalten Sie vom Anbieter.
Auf Karte anzeigen
Die vollständige Adresse der Immobilie erhalten Sie vom Anbieter.
Finanzierungszertifikat
In nur zwei Minuten zu Ihrem persönlichen Finanzierungszertifkat.
Infos
| Haustyp | Einfamilienhaus |
|---|---|
| Etagenzahl | 1 |
| Wohnfläche ca. | 90 m2 |
| Grundstücksfläche | 1.719 m2 |
| Zimmer | 4 |
| Schlafzimmer | 3 |
| Badezimmer | 1 |
| Garage/Stellplatz | Carport |
Kosten
| Kaufpreis |
229.000 € |
|---|---|
| Provision |
3,57% inkl. MwSt. |
Finanzierungsrechner:
Kaufpreis:
600.000 €
Eigenkapital:
600.000 €
Monatliche Rate
0 €
Effektiver Jahreszins
0 %
Sollzinsbindung
10 Jahre
Bausubstanz & Energieausweis
| Baujahr | 1980 |
|---|---|
| Letzte Sanierung | 2015 |
| Objektzustand | Gepflegt |
Beschreibung des Objekts
Grundriss
Grundriss Wohnhaus
>
>
Adresse
17440 Lütow
Interessante Orte
Preis- und Lageinformationen
Preistrend für Bestandsimmobilien in Lütow