WELCOME HOME. WELCOME TO YOUR FUTURE.
Dein Zuhause ist mehr als vier Wände – es ist dein Rückzugsort, dein Investment, dein neuer Lebensabschnitt.
White&Black macht Wohneigentum bezahlbar, modern und flexibel.
Jetzt ist der richtige Moment, um anzukommen.
Fast fertig: Erstklassiges Neubau Projekt mit Bauland.
37079 Göttingen
Die vollständige Adresse der Immobilie erhalten Sie vom Anbieter.
Auf Karte anzeigen
Die vollständige Adresse der Immobilie erhalten Sie vom Anbieter.
Finanzierungszertifikat
In nur zwei Minuten zu Ihrem persönlichen Finanzierungszertifkat.
Infos
| Haustyp | Einfamilienhaus |
|---|---|
| Wohnfläche ca. | 170 m2 |
| Nutzfläche | 0 m2 |
| Grundstücksfläche | 450 m2 |
| Zimmer | 6 |
| Schlafzimmer | 4 |
| Badezimmer | 1 |
| Anzahl Garage/Stellplatz | 0 |
Kosten
| Kaufpreis |
453.000 € |
|---|---|
| Provision | Nein |
Finanzierungsrechner:
Kaufpreis:
600.000 €
Eigenkapital:
600.000 €
Monatliche Rate
0 €
Effektiver Jahreszins
0 %
Sollzinsbindung
10 Jahre
Bausubstanz & Energieausweis
| Baujahr | 2026 |
|---|---|
| Bauphase | Haus in Planung (projektiert) |
| Qualität der Austattung | Gehoben |
| Heizungsart | Wärmepumpe |
Beschreibung des Objekts
Ausstattung
THINK FAST-VOLLENDET PLUS – Bereit für dein Finish.
- Technik, Heizung & Sanitärinstallation sind drin – du kümmerst dich nur um den Feinschliff
- Das Plus mit hochwertigen Sanitärobjekten und Fliesen
- Streichen, Böden verlegen, Türen setzen – du machst, was du willst
- Kein Stress mit Rohbau oder Technik – Fokus nur noch auf den Feinschliff
- Smartes Sparpotenzial – fertig gebaut, individuell finalisiert
- Ideal für Macher mit Anspruch – hochwertige Basis für deinen Stil
Für alle, die mitgestalten wollen – ohne auf Komfort zu verzichten.
Lage
🏡 Bauen in Göttingen – Groß Ellershausen:
Ihre beste Wahl! Groß Ellershausen ist der ideale Vorort von Göttingen, der Ihnen die Ruhe einer ländlichen Lage mit der Stärke der Universitätsstadt verbindet. Ihre Familie profitiert von einer ausgezeichneten Infrastruktur mit nahen Kindergärten, Schulen und dem beliebten Kauf Park für sämtliche Einkaufsmöglichkeiten.
Bei dem angebotenen Grundstück handelt es sich um eine Baulücke, die Ihnen die seltene Chance bietet, nach § 34 BauGB sofort und zentral in dieser begehrten Lage zu bauen, was die zukünftige Wertentwicklung Ihrer Immobilie garantiert.
Ein besonderer Vorteil: Das Grundstück erwerben Sie direkt vom Eigentümer. Sollte das Grundstück nicht zu Ihren Plänen passen, nutzen Sie gerne unseren Grundstücksservice. Haben Sie jedoch bereits Ihr ideales Fleckchen Erde in Groß Ellershausen gefunden, freuen wir uns darauf, als Ihr erfahrener Baupartner den Traum von Ihrem Zuhause zu realisieren.
Sonstige Angaben
Vereinbare einen persönlichen Beratungstermin, um über Deinen Haustraum und das angebotene Objekt zu sprechen.
Bitte beachte, dass die dargestellten Bilder und Grundrisse nur beispielhaft sind und unter Umständen Sonderbauteile enthalten, die nicht im angegebenen Preis enthalten sind.
Hab außerdem bitte Verständnis dafür, dass weitere Details zum angebotenen Grundstück erst nach einem persönlichen Gespräch bekanntgegeben werden und nur vollständige Anfragen bearbeitet werden können.
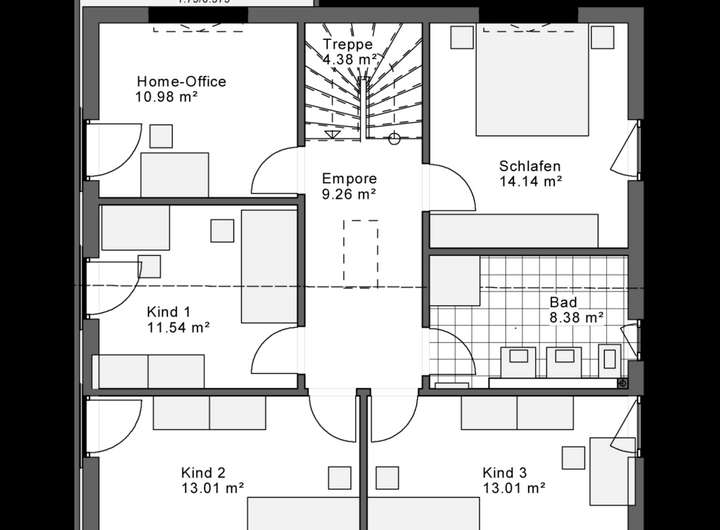
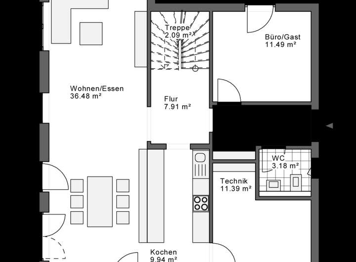
Grundriss
Grundriss EG
>
>
Grundriss DG
>
>
Adresse
37079 Göttingen
Interessante Orte
Preis- und Lageinformationen
Preistrend für Bestandsimmobilien in Göttingen