Zum Verkauf steht ein ca. 670 m² großes Baugrundstück in einem gewachsenen Wohngebiet von Krefeld. Die Lage überzeugt durch eine ruhige Wohnumgebung mit gleichzeitig sehr guter Infrastruktur und Verkehrsanbindung – ideal für ein modernes Wohnbauprojekt.
🔹 Projektdetails
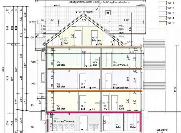
Für das Grundstück liegt eine Projektplanung für ein Mehrfamilienhaus mit 7 Wohneinheiten und 5 Garagen vor.
Geplante Wohnfläche: ca. 457 m²
Baugenehmigung wird für Ende des 3. Quartals 2025 erwartet
Kompaktes, renditestarkes Bauvorhaben mit klarem Kosten-Nutzen-Profil
🔹 Investitionsdaten (ca.)
Gesamte Baukosten: ca. 1.600.000 €
Geplanter Verkaufserlös nach Fertigstellung: ca. 2.450.000 €
Grundstück in Krefeld – attraktive Lage für Ihre Zukunftspläne
47803 Krefeld
Die vollständige Adresse der Immobilie erhalten Sie vom Anbieter.
Auf Karte anzeigen
Die vollständige Adresse der Immobilie erhalten Sie vom Anbieter.
Finanzierungszertifikat
In nur zwei Minuten zu Ihrem persönlichen Finanzierungszertifkat.
Infos
| Vermarktungsart | Kaufen |
|---|---|
| Grundstücksfläche | 670 m2 |
| Empfohlene Nutzung | Mehrfamilienhaus |
Kosten
| Miete pro Jahr |
450.000 € |
|---|---|
| Provision |
4,76 |
Finanzierungsrechner:
Kaufpreis:
600.000 €
Eigenkapital:
600.000 €
Monatliche Rate
0 €
Effektiver Jahreszins
0 %
Sollzinsbindung
10 Jahre
Beschreibung des Objekts
Lage
Die Mikrolage ist geprägt von Wohnbebauung, guter Nahversorgung sowie Anbindung an den öffentlichen Nahverkehr und die Autobahn (A57 / A44). Schulen, Einkaufsmöglichkeiten, Ärzte und Grünflächen sind in wenigen Minuten erreichbar. Die ruhige, zentrale Lage spricht sowohl Eigennutzer als auch Mieter an.