Das EVOLUTION 161 von Bien-Zenker ist mehr als ein Haus - es ist ein Ausdruck von Individualität und Lebensqualität. In diesem modernen und zukunftsorientierten Fertighaus spiegelt sich die ganze Erfahrung und Kompetenz unseres Unternehmens wider. Die Möglichkeit, Ihr Zuhause nach Ihren Wünschen zu gestalten, ist nahezu grenzenlos. Ob Dachform, Design oder ergänzende Architektur-Bauteile - Sie entscheiden, wie Ihr maßgeschneidertes EVOLUTION 161 aussehen soll. Mit einer großzügigen Wohnfläche von 165 Quadratmetern auf zwei Etagen bietet dieses Haus viel Raum für Entfaltung und persönliche Gestaltungsmöglichkeiten.
Die Ausbaustufe "Schlüsselfertig" macht den Bauprozess für Bauherren besonders komfortabel. Wir übernehmen alle Schritte vom Fundament bis zur letzten Schraube im Innenausbau. Das bedeutet stressfreies Bauen ohne unerwartete Überraschungen und eine planbare Verwirklichung Ihres Wohntraums. Sobald Ihr neues Zuhause fertiggestellt ist, können Sie direkt einziehen und die Vorfreude auf Ihr neues Leben in vollen Zügen genießen.
Bei Bien-Zenker ist es nie nur »Haus.« Es ist Zuhause, es ist Ankommen, es ist Familie. Bien-Zenker, das sind 80.000 gebaute Häuser, mehr als 700 Mitarbeitende und über 115 Jahre Erfolgsgeschichte. Der Pionier des Fertighauses mit Sitz im hessischen Schlüchtern zählt zu den größten und erfahrensten Fertighausanbietern Deutschlands. Dank Know-how, Leidenschaft und Einfühlungsvermögen wird jede Baufamilie individuell und kompetent beraten und unterstützt - bis sie den Schlüssel in die Tür des eigenen Heims stecken können. Mit wohngesunden Materialien und zukunftsweisenden Standards ist nicht nur jedes Bien-Zenker Haus für die Zukunft gerüstet, sondern auch jeder Bauherr.
Grundrisse und Abbildungen können Extras zeigen. Flächenangaben nach DIN 277.
Ihr Traumhaus von Bien-Zenker: Maßgeschneidertes Wohnen mit Herz
39110 Magdeburg
Die vollständige Adresse der Immobilie erhalten Sie vom Anbieter.
Auf Karte anzeigen
Die vollständige Adresse der Immobilie erhalten Sie vom Anbieter.
Finanzierungszertifikat
In nur zwei Minuten zu Ihrem persönlichen Finanzierungszertifkat.
Infos
| Haustyp | Einfamilienhaus |
|---|---|
| Etagenzahl | 2 |
| Wohnfläche ca. | 170 m2 |
| Nutzfläche | 170 m2 |
| Grundstücksfläche | 1.245 m2 |
| Zimmer | 5 |
| Schlafzimmer | 3 |
| Badezimmer | 2 |
Kosten
| Kaufpreis |
854.432 € |
|---|
Finanzierungsrechner:
Kaufpreis:
600.000 €
Eigenkapital:
600.000 €
Monatliche Rate
0 €
Effektiver Jahreszins
0 %
Sollzinsbindung
10 Jahre
Bausubstanz & Energieausweis
| Baujahr | unbekannt |
|---|---|
| Bauphase | Haus in Planung (projektiert) |
| Qualität der Austattung | Gehoben |
| Heizungsart | Wärmepumpe |
Beschreibung des Objekts
Ausstattung
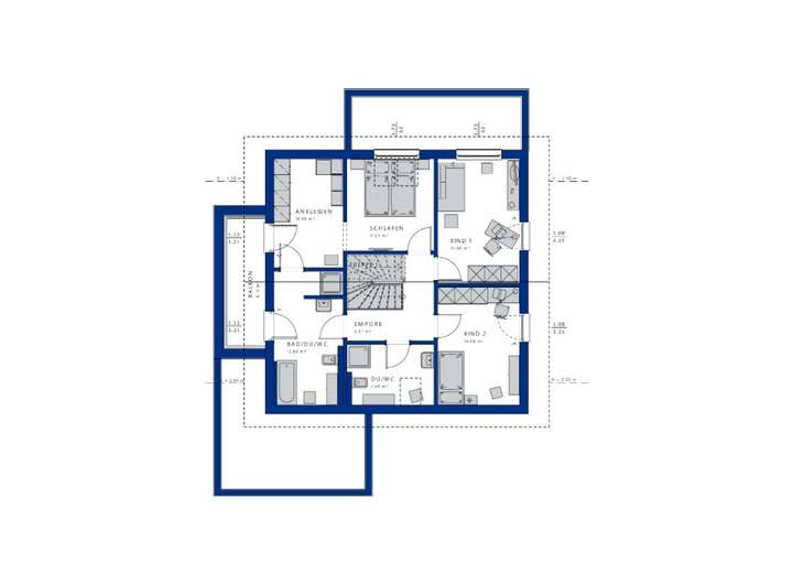
Auf zwei Etagen verteilen sich insgesamt fünf Zimmer auf einer Wohnfläche von 165 Quadratmetern - ideal für Familien, die Wert auf großzügige Räumlichkeiten legen. Drei Schlafzimmer bieten ausreichend Platz für Eltern und Kinder oder Gäste, während zwei Badezimmer dafür sorgen, dass der Morgenstress entfällt und Privatsphäre garantiert wird.
Besondere Komfortdetails wie Balkone oder Terrassen erweitern den Wohnraum nach draußen und laden dazu ein, sonnige Tage im Freien zu genießen oder entspannte Abende unter dem Sternenhimmel zu verbringen. Großzügige Fensterfronten sorgen zudem dafür, dass das gesamte Haus lichtdurchflutet ist, was dem Wohnraum eine freundliche Atmosphäre verleiht.
Die Schlüsselfertig-Ausbaustufe gewährleistet einen reibungslosen Bauablauf ohne Stress für die zukünftigen Bewohner. Alles vom Fundament bis zum letzten Schliff am Innenausbau wird professionell umgesetzt - kein Detail bleibt dem Zufall überlassen. Diese Ausbaustufe bietet Ihnen den Vorteil einer planbaren Übergabe Ihres neuen Zuhauses ohne zusätzliche Arbeiten oder unvorhergesehene Kosten.
Lage
Das projektierte Bien-Zenker Haus liegt in der pulsierenden Stadt Magdeburg, die mit ihrer Vielfalt an Bildungs-, Gesundheits- und Einkaufsmöglichkeiten überzeugt. Schulen aller Bildungsstufen sowie renommierte Universitäten befinden sich in unmittelbarer Nähe und bieten beste Voraussetzungen für Familien mit Kindern jeden Alters.
Für Ihre Gesundheit ist ebenfalls bestens gesorgt: Zahlreiche Arztpraxen sowie das Uniklinikum Magdeburg garantieren eine umfassende medizinische Versorgung direkt vor Ort. Einkaufsbegeisterte finden alles was das Herz begehrt in den vielfältigen Einkaufszentren der Stadt.
Die hervorragende Anbindung an den öffentlichen Nahverkehr ermöglicht es Ihnen, schnell ins Zentrum oder in andere Stadtteile zu gelangen - ideal für Pendler oder spontane Ausflüge nach Feierabend. Auch die Autobahnen A2 und A14 sind leicht erreichbar und machen Magdeburg zu einem idealen Ausgangspunkt für Reisen in ganz Deutschland.
Sonstige Angaben
Das Grundstück ist im obigen Preis eingerechnet.
Zusätzliche Baunebenkosten müssen noch hinzugerechnet werden. Hierüber beraten wir Sie gern.
Wir bieten Ihnen interessante Finanzierungsmöglichkeiten inklusive Beantragung aller Fördermittel!
Sie möchten dieses Haus besichtigen: Rufen Sie uns an und zufriedene Kunden zeigen ihnen gern ihr Haus!
Gute Beratung ist der Anfang von Allem. Deshalb analysieren wir gemeinsam mit Ihnen Ihre Vorstellungen, Wünsche und Bedürfnisse und finden so das für Sie und Ihre Familie passende BIEN ZENKER Haus.
Interessiert? Rufen Sie gleich an und vereinbaren Sie noch heute einen kostenlosen und unverbindlichen Beratungstermin unter 0151/42448360
Adresse
39110 Magdeburg
Interessante Orte
Preis- und Lageinformationen
Preistrend für Bestandsimmobilien in Diesdorf