Das angebotenen Baugrundstück für ein großzügiges Einfamilienhaus mit Doppelgarage und einer großzügigen Grundstücksfläche von 926,7 Quadratmetern, ist eins von sieben Grundstücken, welche zum Verkauf stehen.. Das Grundstück befindet sich in einer ruhigen und gut angebundenen Gegend, ideal für den Bau eines neuen Wohnhauses. Die Umgebung bietet viel Platz und Grünflächen, perfekt für Familien oder Paare, die sich nach einem idyllischen Zuhause in einer exponierten Lage sehnen.
Das Grundstück bietet ausreichend Platz für den Bau eines geräumigen Einfamilienhauses mit Doppelgarage. Durch die großzügige Fläche lassen sich sowohl Wohn- als auch Gartenbereiche nach individuellen Wünschen gestalten. Die Umgebung ist geprägt von einer angenehmen Nachbarschaft und einer guten Infrastruktur, was das Grundstück zu einem attraktiven Ort für den Bau eines Eigenheims macht.
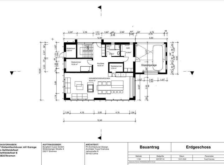
Die bereits erteilte Baugenehmigung erlaubt den Bau eines großzügigen freistehenden Einfamilienhauses mit einer Wohnfläche von ca. 190 m² Wohnfläche zzgl. Nutzfläche und einer sehr geräumigen Doppelgarage.
In der näheren Umgebung finden sich Einkaufsmöglichkeiten, Schulen und öffentliche Verkehrsmittel, die eine gute Anbindung an die umliegenden Städte garantieren. Die Natur in der Umgebung lädt zu Spaziergängen und Erholung ein und bietet somit ein harmonisches Lebensumfeld. Das Grundstück bietet die ideale Basis für Bauherren, die ihren Traum vom Eigenheim verwirklichen möchten, sowie für Investoren, die nach einer attraktiven Bauparzelle suchen.
Bremen Borgfeld Traumlage: 7 voll erschlossene Baugrundstücke für EFH mit Doppelgarage ab 840 m².
28357 Bremen
Die vollständige Adresse der Immobilie erhalten Sie vom Anbieter.
Auf Karte anzeigen
Die vollständige Adresse der Immobilie erhalten Sie vom Anbieter.
Finanzierungszertifikat
In nur zwei Minuten zu Ihrem persönlichen Finanzierungszertifkat.
Infos
| Vermarktungsart | Kaufen |
|---|---|
| Grundstücksfläche | 935,7 m2 |
| Erschließung | Erschlossen |
| Empfohlene Nutzung | Einfamilienhaus |
| Bebaubar nach | Bebauungsplan |
| Verfügbar ab | 01.10.2025 |
Kosten
| Miete pro Jahr |
445.616 € |
|---|---|
| Provision |
5,95% |
Finanzierungsrechner:
Kaufpreis:
600.000 €
Eigenkapital:
600.000 €
Monatliche Rate
0 €
Effektiver Jahreszins
0 %
Sollzinsbindung
10 Jahre
Beschreibung des Objekts
Lage
Die Baugrundstücke für das Einfamilienhaus befinden sich in einem Wohngebiet im Stadtteil in Bremen. Der Stadtteil zeichnet sich durch seine ruhige und familiäre Atmosphäre aus. In unmittelbarer Nähe befinden sich kleine Geschäfte, Schulen, Kindergärten und Grünflächen, die zum Erholen und Entspannen einladen.
Bremen selbst ist eine lebendige Stadt mit einer reichen Geschichte und einer vielfältigen Kulturszene. Die Stadt bietet zahlreiche Einkaufsmöglichkeiten, Restaurants, Cafés und kulturelle Veranstaltungen. Durch die gute Infrastruktur ist man schnell in der Innenstadt, am Flughafen oder am Bahnhof und kann von dort aus bequem andere Städte in Deutschland und Europa erreichen.
Die Region Bremen zeichnet sich besonders durch ihre grüne Umgebung und die Nähe zur Natur aus. Die Weser fließt durch die Stadt und lädt zu Spaziergängen und Radtouren entlang des Flusses ein. Darüber hinaus gibt es viele Parks und Naturschutzgebiete, die zum Wandern und Erholen in der Natur einladen. Die Region bietet somit eine hohe Lebensqualität und ist ideal für Familien und Naturliebhaber.
Borgfeld - Familienfreundlich und naturverbunden.
Das ehemalige Dorf an der Wümme zeichnet sich durch dörflich-nachbarschaftliche Atmosphäre aus. Das Grundstück liegt in einer sehr ruhigen, kaum befahrenen Straße.
Alle Dinge des täglichen Bedarfs wie Einkaufsmöglichkeiten, Banken, Ärzte, Apotheken und finden Sie in unmittelbarer Nähe. Auch für die Kleinen ist mit Kindergärten, Grund-, Haupt- und Realschule sowie ein Gymnasien im angrenzenden Lilienthal und in Oberneuland gesorgt.
Das größte Naturschutzgebiet liegt im nord-östlichsten Stadtteil Bremens direkt vor der Tür: Die Borgfelder Wümmewiesen. Sportangebote für alle Generationen, vor allem für junge Familien, bietet der TSV Borgfeld. Über die Straßenbahnlinie 4 ist Borgfeld in ca. 25 Minuten ohne Umstieg von der Innenstadt aus zu erreichen.
Sonstige Angaben
Insgesamt werden sieben Baugrundstücke zwischen 840 und 1220 m² angeboten
Die Preis beginnen für die voll erschlossenen Grundstücke bei € 488,940,--