Basisdaten:
- Art der Immobilie: Bungalow mit Ausbaureserve
- Kaufpreis: 399.000,00 € - keine zusätzliche Käuferprovision
- Baujahr: ca. 1964
- Wohnfläche: ca. 130 m²
- Nutzfläche: ca. 214 m²
- Anzahl der Zimmer: 4
- Grundstücksgröße: 2.004 m²
- Heizung: Brötje Öl-Zentralheizung, Baujahr 2004
- Keller: voll unterkellert
- Parkmöglichkeiten: 1 Garage
- Endenergiebedarf: 300,61 kWh
- Energieeffizienzklasse: H
- bezugsfrei: nach Absprache
Objektbeschreibung:
Für dieses wunderbare Idyll benötigt man nicht viele Worte: Lage, Lage, Lage!
Umgeben von der herrlichen Natur residiert dieser geräumige Bungalow mit Sanierungsbedarf auf einem traumhaften Grundstück im äußerst beliebten Stuhr-Moordeich.
Das begehrte ebenerdige Wohnkonzept sowie der exzellente Zuschnitt der Räumlichkeiten ist für Jung, Alt, Paare und Familien gleichermaßen optimal geeignet.
Dieses gemütliche Familiendomizil befindet sich seit der Errichtung im Familienbesitz und soll nun neue Eigentümer erfreuen, die den Bungalow durch einen kleinen Feinschliff wieder zum Strahlen bringen.
Das Erdgeschoss ist wie folgt aufgeteilt:
1 Windfang, 2 Flure, 1 Küche, 1 Wohn- / Esszimmer mit Zugang zur Süd-Terrasse, 1 Schlafzimmer, 2 Kinderzimmer, 1 Tageslicht-Vollbad mit Dusche und Badewanne, 1 Tageslicht-Gästetoilette.
Das ca. 130 m² große Vollkellergeschoss ist wie folgt aufgeteilt:
1 Flur, 2 Abstellräume, 1 Hauswirtschaftsraum, 1 Vorratsraum, 1 Heizungsraum, 1 Heizöltank-Raum, 1 Werkstatt, 1 Garage.
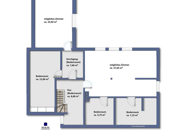
Über eine massive Holztreppe gelangen Sie in das Dachgeschoss, welches außerordentlich viel Ausbaureserve bereithält.
Zwei Räume wurden bereits zur weiteren Wohnraumgewinnung ausgebaut, sodass sich diese ideal als Arbeitszimmer oder Hobbyräume nutzen lassen.
Das Dachgeschoss findet in der Wohnflächenberechnung keine Berücksichtigung und ist lediglich als großzügige Nutzfläche ausgewiesen.
Das Gartenparadies mit einer großflächig angelegten Terrassenanlage lässt sich individuell nutzen und bietet für Klein und Groß erstaunlich viel Platz für Entfaltungsmöglichkeiten und Freizeitaktivitäten.
Anfragestopp! 0 % Käuferprovision! Lage, Lage, Lage! Geräumiger Bungalow
28816 Stuhr
Die vollständige Adresse der Immobilie erhalten Sie vom Anbieter.
Auf Karte anzeigen
Die vollständige Adresse der Immobilie erhalten Sie vom Anbieter.
Finanzierungszertifikat
In nur zwei Minuten zu Ihrem persönlichen Finanzierungszertifkat.
Infos
| Haustyp | Einfamilienhaus |
|---|---|
| Wohnfläche ca. | 130 m2 |
| Nutzfläche | 214 m2 |
| Grundstücksfläche | 2.004 m2 |
| Bezugsfrei ab | nach Absprache |
| Zimmer | 4 |
| Schlafzimmer | 3 |
| Badezimmer | 1 |
| Garage/Stellplatz | Garage |
| Anzahl Garage/Stellplatz | 1 |
Kosten
| Kaufpreis |
399.000 € |
|---|---|
| Preis für Garage/Stellplatz | 0 € |
| Provision | Nein |
Finanzierungsrechner:
Kaufpreis:
600.000 €
Eigenkapital:
600.000 €
Monatliche Rate
0 €
Effektiver Jahreszins
0 %
Sollzinsbindung
10 Jahre
Bausubstanz & Energieausweis
| Baujahr | 1964 |
|---|---|
| Bauphase | Haus fertig gestellt |
| Objektzustand | Renovierungsbedürftig |
| Qualität der Austattung | Normal |
| Heizungsart | Zentralheizung |
| Wesentliche Energieträger | Öl |
| Energieausweis | liegt vor |
| Energieausweistyp | Bedarfsausweis |
| Energieverbrauchskennwert | 300,6 kWh/(m²*a) |
| Energieeffizienzklasse | H |
300,6
kWh/(m²*a)
Energieeffizienzklasse H
- A+
- A
- B
- C
- D
- E
- F
- G
- H
- 0
- 25
- 50
- 75
- 100
- 125
- 150
- 175
- 200
- 225
- >250
Beschreibung des Objekts
Ausstattung
- z.T. Außenrollläden
- Tageslicht-Gästetoilette
- große Süd-Terrasse
- Grundwasseranschluss
- Vollkeller
- Garage
Weitere Angaben:
- z.T. Ausbau Dachgeschoss aus ca. 2000
- Holzfensterrahmen aus 1964
- Dacheindeckung aus 1964
- Elektrik mit Drehsicherungen
Lage
28816 Stuhr / Moordeich.
Weitere Entfernungen:
- Bushaltestelle: ca. 600 m
- Kindergarten: ca. 350 m
- Grundschule: ca. 1 km
- weiterführende Schule: ca. 800 m
- Einkaufsmöglichkeiten: ca. 1,7 km
- Bremen / Innenstadt: ca. 9,2 km
- Bremen / Flughafen: ca. 8,3 km
Sonstige Angaben
Hinweise:
Die Objektbeschreibung basiert auf unseren persönlichen Eindrücken bzw. Wahrnehmungen und wurde nicht KI-generiert.
Die von uns angegebenen Objektdaten, Unterlagen, Pläne u.a. stammen vom Verkäufer. Eine Haftung für die Richtigkeit oder Vollständigkeit der Angaben übernehmen wir nicht. Es obliegt unseren Kunden, die darin enthaltenen Objektdaten/Angaben auf ihre Richtigkeit hin zu überprüfen. Alle Immobilienangebote sind freibleibend und vorbehaltlich Irrtümer. Zwischenverkauf behalten wir uns vor.
Provision:
Keine zusätzliche Käuferprovision!
Finanzierung:
Sie haben Fragen zur Finanzierung? Sehr gerne unterstützen wir Sie auch in diesem Bereich Ihres Immobilienerwerbes und bieten Ihnen durch unseren Finanzierungs- und Kooperationspartner individuelle Lösungen an. Sprechen Sie uns bitte an, wenn Ihrerseits ein Interesse bestehen sollte.
Geldwäsche:
Nach § 1, 2 Abs. 1 Nr. 10, 4 Absatz 3 des Geldwäschegesetzes (GwG) sind wir dazu verpflichtet, vor Begründung einer Geschäftsbeziehung die Identität des Vertragspartners festzustellen und zu überprüfen.
Grundriss
Grundriss EG - nicht maßstabsg
>
>
Grundriss DG - nicht maßstabsg
>
>
Grundriss KG - nicht maßstabsg
>
>
Adresse
28816 Stuhr
Interessante Orte
Preis- und Lageinformationen
Preistrend für Bestandsimmobilien in Stuhr