Im Herzen von Markt Rennertshofen präsentiert sich dieses repräsentative, historische Wohn- und Geschäftshaus – ideal kombinierbar für Wohnen und Gewerbe. Das Gebäude befindet sich inmitten des alten Marktstraßenzuges, einer Lage mit hoher Sichtbarkeit und geprägt von historischem Flair.
Die Umgebung besticht durch den Charme des historischen Altorts, was insbesondere für ein denkmalgeschütztes Objekt einen besonderen Reiz ausmacht.
Historische Bausubstanz mit Charakter – ein echter Blickfang im Ortsbild.
Das Haupthaus (Baujahr ca. 1700) verfügt im Erdgeschoss über eine Grundfläche von ca. 280 m² und ist teilunterkellert mit ca. 88 m² Nutzfläche. Im Obergeschoss befinden sich Wohnräume mit ca. 280 m². Hier war früher eine gut eingeführte Metzgerei untergebracht.
Der Anbau erfolgte in den 1970er-Jahren. Das Haupthaus wurde erweitert; im Erdgeschoss entstand ein neues Schlachthaus, im Obergeschoss zusätzlicher Wohnraum.
Das Erdgeschoss des Anbaus verfügt über ca. 164 m², die Wohnräume darüber ebenfalls über ca. 164 m².
Der Anbau ist voll unterkellert und bietet ca. 164 m² Nutzfläche.
Auf dem Grundstück befinden sich zudem eine große Scheune sowie eine ehemalige Maschinenhalle.
Kombination von Wohnen und Gewerbe:
Im Erdgeschoss ist eine gewerbliche Nutzung denkbar (z. B. Ladenlokal, Büro oder Praxis), darüber bzw. rückwärtig Wohnräume.
Denkmalpotenzial – möglich sind steuerliche Vorteile und besondere Gestaltungsspielräume.
Vielseitige Nutzungsmöglichkeiten:
Eigennutzung, Vermietung oder Kapitalanlage.
Hohe Sichtbarkeit und gute Erreichbarkeit im zentralen Ortsbereich.
Das Objekt eignet sich besonders für:
• Unternehmer oder Freiberufler, die Geschäftsflächen im Erdgeschoss und Wohnraum darüber benötigen.
• Investoren, die eine Kapitalanlage mit langfristiger Perspektive suchen – insbesondere mit Fokus auf denkmalgeschützte Immobilien.
• Privatpersonen mit Sinn für Geschichte und Charakter, die Wohnen mit Gewerbe oder Praxis kombinieren möchten.
Denkmalschutz: Wohn- und Geschäftshaus in Rennertshofen
86643 Rennertshofen
Die vollständige Adresse der Immobilie erhalten Sie vom Anbieter.
Auf Karte anzeigen
Die vollständige Adresse der Immobilie erhalten Sie vom Anbieter.
Finanzierungszertifikat
In nur zwei Minuten zu Ihrem persönlichen Finanzierungszertifkat.
Infos
| Haustyp | Sonstige |
|---|---|
| Wohnfläche ca. | 445 m2 |
| Nutzfläche | 445 m2 |
| Grundstücksfläche | 4.514 m2 |
| Zimmer | 12 |
| Badezimmer | 2 |
| Garage/Stellplatz | Garage |
| Anzahl Garage/Stellplatz | 2 |
Kosten
| Kaufpreis |
590.000 € |
|---|---|
| Preis für Garage/Stellplatz | 0 € |
| Provision |
3,57 % |
Finanzierungsrechner:
Kaufpreis:
600.000 €
Eigenkapital:
600.000 €
Monatliche Rate
0 €
Effektiver Jahreszins
0 %
Sollzinsbindung
10 Jahre
Bausubstanz & Energieausweis
| Baujahr | 1700 |
|---|---|
| Letzte Sanierung | 1975 |
| Bauphase | Haus fertig gestellt |
| Denkmalschutzobjekt | Ja |
| Heizungsart | Zentralheizung |
| Wesentliche Energieträger | Öl |
| Energieausweis | liegt vor |
| Energieausweistyp | Bedarfsausweis |
| Energieverbrauchskennwert | 267,0 kWh/(m²*a) |
| Energieeffizienzklasse | H |
267,0
kWh/(m²*a)
Energieeffizienzklasse H
- A+
- A
- B
- C
- D
- E
- F
- G
- H
- 0
- 25
- 50
- 75
- 100
- 125
- 150
- 175
- 200
- 225
- >250
Beschreibung des Objekts
Lage
Der Markt Rennertshofen liegt malerisch im Urdonautal im Landkreis Neuburg-Schrobenhausen in Oberbayern. Die Gemeinde mit rund 5.000 Einwohnern besticht durch ihre idyllische Lage zwischen Ingolstadt (ca. 30 km) und Donauwörth (ca. 25 km) sowie durch ihre hervorragende Verkehrsanbindung und hohe Lebensqualität.
Einkaufsmöglichkeiten für den täglichen Bedarf, eine Apotheke, Ärzte, Handwerksbetriebe und Gastronomie sind vor Ort vorhanden.
Kindergarten, Grund- und Mittelschule sowie zahlreiche Freizeit- und Sportangebote bieten ideale Bedingungen für Familien.
Weiterführende Schulen und ergänzende Versorgungseinrichtungen sind in Neuburg an der Donau oder Donauwörth schnell erreichbar.
Verkehrstechnisch ist Rennertshofen bestens angebunden:
• Über die B16 besteht eine direkte Verbindung nach Neuburg an der Donau, Donauwörth und Rain.
• Die Autobahn A9 ist über die Anschlussstelle Manching erreichbar.
Sonstige Angaben
weitere Sonderausstattungen: Wellnessbereich, Kühlhaus, großzügige Dachterrasse
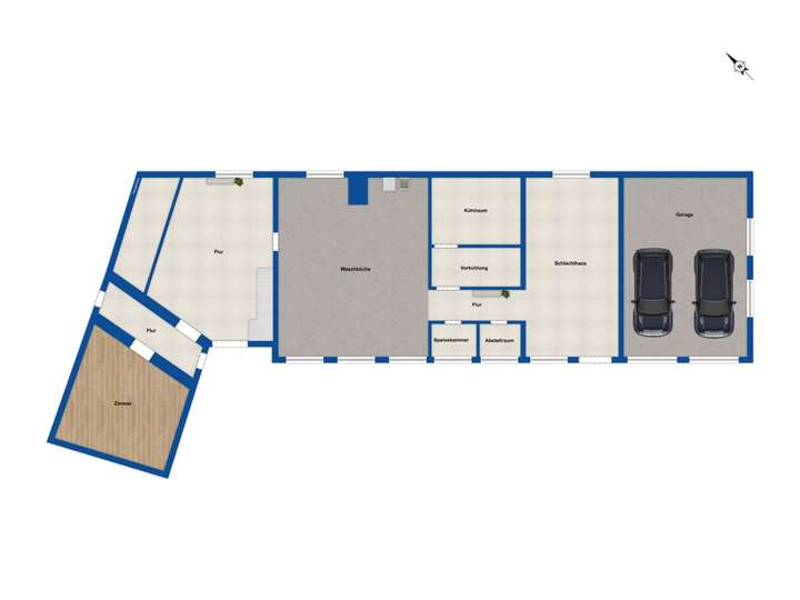
Grundriss
Grundriss I
>
>
Grundriss II
>
>
Grundriss III
>
>
Grundriss IV
>
>
Grundriss V
>
>
Adresse
86643 Rennertshofen
Interessante Orte
Preis- und Lageinformationen
Preistrend für Bestandsimmobilien in Rennertshofen