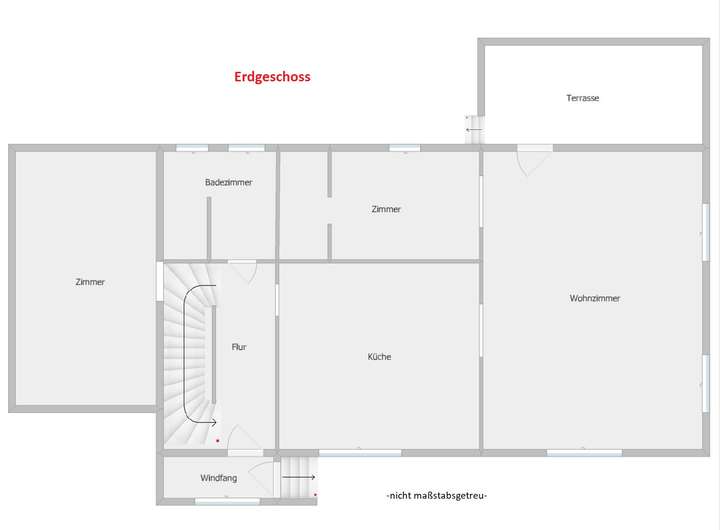
Das hier zum Verkauf stehende Einfamilienhaus wurde 1963 in massiver Bauweise errichtet. Auf einem großzügigen Grundstück von 712qm, einer Wohnfläche von 200qm und einer Nutzfläche von 90qm besticht das Haus vor allem durch seine städtische Lage und das flexibel gestaltbare Raumangebot.
Als Einfamilienhaus mit Einliegerwohnung oder Zweigenerationenhaus ist die Immobilie derzeit in eine Erdgeschoss- und eine Obergeschosswohnung aufgeteilt und wurde als Zweigenerationenhaus genutzt. Der Stromkreis ist getrennt, der Heizkreis nicht.
Das Haus wurde 2015 kernsaniert. Fenster wurden seit 2015 sukzessive modernisiert. Die Gasheizungsanlage wurde zuletzt 2025 modernisiert.
Freistehendes EFH mit viel Potenzial (Einliegerwohnung/Mehrgenerationenhaus)
38159 Vechelde
Die vollständige Adresse der Immobilie erhalten Sie vom Anbieter.
Auf Karte anzeigen
Die vollständige Adresse der Immobilie erhalten Sie vom Anbieter.
Finanzierungszertifikat
In nur zwei Minuten zu Ihrem persönlichen Finanzierungszertifkat.
Infos
| Haustyp | Einfamilienhaus |
|---|---|
| Etagenzahl | 3 |
| Wohnfläche ca. | 200 m2 |
| Nutzfläche | 90 m2 |
| Grundstücksfläche | 712 m2 |
| Bezugsfrei ab | 1.12.2025 |
| Zimmer | 7 |
| Schlafzimmer | 5 |
| Badezimmer | 3 |
| Garage/Stellplatz | Garage |
| Anzahl Garage/Stellplatz | 2 |
Kosten
| Kaufpreis |
475.000 € |
|---|---|
| Provision | Nein |
Finanzierungsrechner:
Kaufpreis:
600.000 €
Eigenkapital:
600.000 €
Monatliche Rate
0 €
Effektiver Jahreszins
0 %
Sollzinsbindung
10 Jahre
Bausubstanz & Energieausweis
| Baujahr | 1963 |
|---|---|
| Letzte Sanierung | 2025 |
| Objektzustand | Gepflegt |
| Qualität der Austattung | Gehoben |
| Heizungsart | Gas-Heizung |
| Wesentliche Energieträger | Gas |
| Energieausweis | liegt zur Besichtigung vor |
Beschreibung des Objekts
Ausstattung
Zusätzliche Eckpunkte:
• Freistehendes Einfamilienhaus mit
Einliegerwohnung (98qm) / Mehrgenerationenhaus
• Anbau aus 1988
• Kernsanierung 2015
• massive Bauweise
• voll unterkellert
• Fassade überwiegend verklinkert, eine Seite
verputzt
• drei Badezimmer mit großen, bodentiefen Duschen
• gepflegter Garten mit überdachter Terrasse,
Brunnen inkl. Pumpe und Werkzeugschuppen
• Fenster seit 2015 zunehmend erneuert
• Kaminofen im Erdgeschoss und Obergeschoss
• Heizung 2025 modernisiert
• Erdgeschoss und Obergeschoss nahezu vollständig
mit Hochglanzfliesen gefliest
• Balkon im Obergeschoss
• Dachgeschoss vollständig ausgebaut
• große Einbauküchen im Erdgeschoss und
Obergeschoss
Lage
Die Immobilie befindet sich im Ortsteil Vechelade der Gemeinde Vechelde. Vechelade ist ein ruhiger und familienfreundlicher Ortsteil, eingebettet in ländlicher Idylle und dennoch verkehrsgünstig gelegen.
Das Haus ist sehr ruhig gelegen und der Garten von der Straße nicht einsehbar; ideal für alle, die Wert auf Ruhe, Privatsphäre und eine sichere Wohnlage legen. Die nächsten Einkaufsmöglichkeiten, Ärzte, Apotheken, Restaurants, Schulen, Kindergärten befinden sich in unmittelbarer Umgebung in Vechelde und sind in wenigen Minuten mit dem Auto oder Fahrrad erreichbar.
Die Immobilie verfügt über eine hervorragende Verkehrsanbindung. Über die Bundesstraße B1 sowie den Bahnhof Vechelde ist Vechelade bestens in das regionale Verkehrsnetz eingebunden. Die Autobahnen A2 und A39 sind ebenfalls schnell erreichbar und ermöglichen eine zügige Anbindung an das überregionale Straßennetz
Sonstige Angaben
Anfragen bitte ausschließlich per Kontaktformular. Gerne können Sie mir Ihre Erreichbarkeit hinterlassen, sodass ich Sie zeitnah kontaktieren kann.
Grundriss
GR KG
>
>
GR EG
>
>
GR OG
>
>
GR DG
>
>
Adresse
38159 Vechelde
Interessante Orte
Preis- und Lageinformationen
Preistrend für Bestandsimmobilien in Vechelde