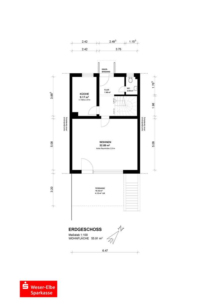
Dieses charmante Reihenmittelhaus in Bremerhaven, Stadtteil Surheide, bietet eine Wohnfläche von ca. 107 m² und befindet sich auf einem Grundstück mit einer Fläche von ca. 186 m². Das Haus wurde circa 1978 errichtet und ist somit ein klassisches Beispiel für die Architektur der damaligen Zeit. Im Erdgeschoss befinden sich neben der Küche ein Wohnzimmer mit Ausgang zur Terrasse sowie zum Garten und ein Gäste-WC. Im Obergeschoss bieten Ihnen 3 weitere Zimmer Platz. Eines der im Obergeschoss gelegenen Zimmer verfügt über einen Balkon, auf dem man den Abend vor dem Schlafengehen ausklingen lassen kann. Ein Dusch-/Wannenbad befindet sich ebenfalls im Obergeschoss. Das Haus ist sanierungsbedürftig, was Ihnen als künftigem Besitzer die Möglichkeit bietet, Ihre eigene Note hineinzubringen und das Haus nach Ihren Vorstellungen zu gestalten. Das Flachdach und die Bauart als Massivbau zeugen von einer soliden Konstruktion des Hauses. Ein Keller mit Zugang zum Garten liefert zusätzlichen Stauraum und bietet die Möglichkeit für verschiedene Nutzung. Wenn Sie nach einer Immobilie suchen, die Charme und Charakter aufweist und in der Sie Ihre eigene Handschrift hinterlassen können, dann ist dieses Reihenmittelhaus in außergewöhnlich ruhiger Lage ohne Durchgangsverker genau das Richtige für Sie. Eine Garage sowie der Vollkeller runden dieses Angebot ab.
Reihenmittelhaus in Sackgassenlage
27574 Bremerhaven
Die vollständige Adresse der Immobilie erhalten Sie vom Anbieter.
Auf Karte anzeigen
Die vollständige Adresse der Immobilie erhalten Sie vom Anbieter.
Finanzierungszertifikat
In nur zwei Minuten zu Ihrem persönlichen Finanzierungszertifkat.
Infos
| Haustyp | Reihenmittelhaus |
|---|---|
| Wohnfläche ca. | 106 m2 |
| Grundstücksfläche | 186 m2 |
| Zimmer | 4 |
Kosten
| Kaufpreis |
169.000 € |
|---|---|
| Provision |
3,57 % inkl. ges. MwSt. |
Finanzierungsrechner:
Kaufpreis:
600.000 €
Eigenkapital:
600.000 €
Monatliche Rate
0 €
Effektiver Jahreszins
0 %
Sollzinsbindung
10 Jahre
Bausubstanz & Energieausweis
| Baujahr | 1978 |
|---|---|
| Bauphase | Haus fertig gestellt |
| Heizungsart | Zentralheizung |
| Wesentliche Energieträger | Öl |
| Energieausweis | liegt vor |
| Energieausweistyp | Bedarfsausweis |
| Energieverbrauchskennwert | 175,5 kWh/(m²*a) |
| Energieeffizienzklasse | F |
175,5
kWh/(m²*a)
Energieeffizienzklasse F
- A+
- A
- B
- C
- D
- E
- F
- G
- H
- 0
- 25
- 50
- 75
- 100
- 125
- 150
- 175
- 200
- 225
- >250
Beschreibung des Objekts
Ausstattung
Individuelle Ausstattungsmerkmale:
- Garage
- Vollkeller
- Gäste-WC
- teilw. Rollläden
Lage
Surheide ist der jüngste und flächenmäßig kleinste Stadtteil der Stadtgemeinde Bremerhaven und zeichnet sich durch seine besonders ruhige Stadtrandlage aus. Der Stadtteil liegt an der Anschlussstelle Bremerhaven-Geestemünde A 27. Die Buslinien 503, 509 und ML (Moonliner) verbinden den Stadtteil mit dem Hauptbahnhof und den anderen Stadtteilen. Surheide ist ein Wohnstadtteil und grenzt unmittelbar an Schiffdorf an. Die dort vorhandenen Einkaufsmöglichkeiten sind gut zu erreichen. Für Familien ist dieser gemütliche Stadtteil ideal, da er über eine Kindertagesstätte, eine Grundschule, einen Freizeittreff und eine Kirchengemeinde verfügt. Der Sportverein in Surheide ist eine beliebte Anlaufstelle für Jung und Alt.
Sonstige Angaben
Grundsteuer B zurzeit 361,63 EUR pro Jahr, Hochwasserschutzbeitrag zurzeit 26,04 EUR pro Jahr, Gebäudeversicherung zurzeit 685,56 EUR pro Jahr.
Weitere Objektdetails wie z. B. die Objektanschrift, den Energieausweis, einen Lageplan sowie ggf. ergänzende Objektunterlagen erhalten Sie zusammen mit unserem Web-Exposé.
Möchten mehrere Interessenten die angebotene Immobilie erwerben, kann es auf Wunsch der Verkäuferseite zu einer Vergabe im nachgeschobenen Bieterverfahren kommen.
Wir empfehlen, vor der Vereinbarung eines Besichtigungstermines den möglichen Finanzierungrahmen durch Ihr Kreditinstitut prüfen zu lassen. Vielen Dank.
VERBRAUCHERINFO
1. Maklerleistung ist der Nachweis der Gelegenheit zum Abschluss eines Vertrages bzw. Vermittlung eines Vertrages über eine Immobilie gegen die Courtagezahlungspflicht des Kunden
2. Unternehmer,Anschrift,Beschwerdeadressat
LBSi NordWest, Himmelreichallee 40, 48149 Münster, Tel:0251/973233-997, eMail:info@lbsi-nw.de
GF:Martin Englert, Volker Goldbeck
3. Es besteht ein Widerrufsrecht
4. Weitere Infos: verbraucherinfo.lbsi-nordwest.de
Grundriss
Grundriss Erdgeschoss
>
>
Grundriss Obergeschoss
>
>
Grundriss Kellergeschoss
>
>
Adresse
27574 Bremerhaven
Interessante Orte
Preis- und Lageinformationen
Preistrend für Bestandsimmobilien in Surheide