Sie lieben Häuser mit Geschichte? Nicht nur auf Gemälden vergangener Jahr-hunderte, sondern vor allem auch als Kontrapunkt zur oftmals doch sehr nüchternen Architektur unserer Städte und Gemeinden? Lassen Sie sich überraschen. Mit einem charmanten Stück historischer Harmonie. Zum Leben, zum Wohnen, zum Arbeiten.
ZWEI-FAMILIENHAUS IN WILDBERG
Ihr neues Zuhaus wurde im Jahr 1791 auf einem 983 qm großen Grundstück, ge-genüber der historischen Klosteranlage der Schäferlaufstadt Wildberg errichtet und hält auf zwei Etagen, ca. 200 qm Wohnfläche für Sie bereit.
Vom gefliesten Eingangsbereich im EG des Hauses aus, erreichen Sie einen Lagerraum, den Heizraum, das Öllager sowie einen großen Gewölbekeller. Über das Treppenhaus gelangen Sie in das 1. OG des Gebäudes.
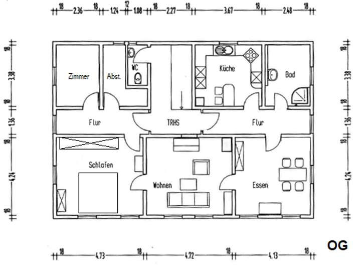
4 Zimmer, die Küche und das Bad in der ca. 107 qm großen Wohnung des Ersten Stockwerks, überraschen und begeistern durch den Stuck an den Decken, die Holzböden, sowie die teilweise vorhandenen Fliesenböden und Wandvertäfelungen. Diese Wohnebene wurde Ende der 1990er Jahre saniert.
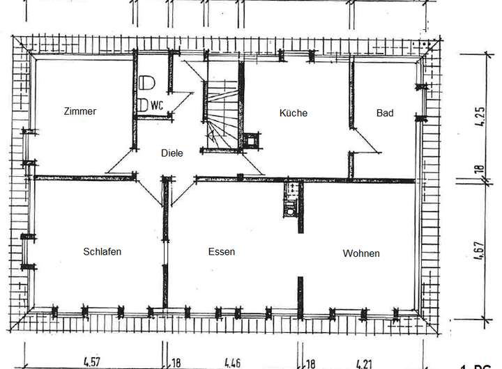
Die ca. 92 qm große Mansarde im Dachgeschoss bietet Ihnen 4 gemütliche Zimmer, Küche und Bad. Die Wohnung wurde regelmäßig saniert, die Fenster vor 9 Jahren erneuert. Unter dem Dach befinden sich 3 Bühnenräume und darüber ein kleiner Spitzboden. Der obere Teil des Daches wurde ebenfalls Ende der 1990er Jahre saniert. Genießen Sie im weiteren den Garten mit dem idyllischen Gartenhäuschen. Eine Garage im Haus und der Carport für 2 Fahrzeuge neben dem Haus machen Ihr neues, historisches Wohnerleben perfekt. Das Gebäude steht unter Denkmalschutz.
Laut der Energieeinsparverordnung (EnEv) sind denkmalgeschützte Gebäude von der Energieausweispflicht ausgenommen.
Der Kaufpreis: 320.000,- €.
Finanzierungszertifikat
In nur zwei Minuten zu Ihrem persönlichen Finanzierungszertifkat.
Infos
| Etagenzahl | 2 |
|---|---|
| Wohnfläche ca. | 200 m2 |
| Grundstücksfläche | 983 m2 |
| Zimmer | 8 |
| Badezimmer | 2 |
| Anzahl Garage/Stellplatz | 3 |
Kosten
| Kaufpreis |
320.000 € |
|---|---|
| Provision |
3% zuzüglich der gesetzlichen Mehrwertsteuer |
Finanzierungsrechner:
Kaufpreis:
600.000 €
Eigenkapital:
600.000 €
Monatliche Rate
0 €
Effektiver Jahreszins
0 %
Sollzinsbindung
10 Jahre
Bausubstanz & Energieausweis
| Baujahr | 1791 |
|---|---|
| Letzte Sanierung | 1990 |
| Energieausweis | laut Gesetz nicht erforderlich |
Beschreibung des Objekts
Ausstattung
Kurzüberblick
Baujahr:
1791
Wohnungen: 2
Wohnfläche: ca. 200 qm
Geschosse: EG teils im Hang, mit Gewölbekeller, Garage, Nebenräumen, gemauerte Wände ca. 60 - 90 cm, oberhalb EG Fachwerk verputzt
1. OG Hauptwohnung, Zimmer mit Stuck, teils mit Wandvertäfelung
1. DG 2. Wohnung
2. DG, Bühnenräume
Grundstück: ca. 983 qm
• Carport 2 Stellplätze
• Garage im Haus
• Schuppen
• Gartenhäuschen
• Dach oberer Teil Ende 1990er -Jahre saniert
• Hauptwohnung Ende 1990er -Jahre saniert (Fenster aaElektroleitungen, Sanitärräume, Küche), teilweise alte aaHolzböden, Fliesenboden
• DG-Wohnung: neue Fenster ca. 9 Jahre, regelmäßig saniert
Begründung der Denkmaleigenschaft
Objekt: Wohnhaus Status:§ 2
Zweigeschossiges Gebäude mit Mansardwalmdach. Massives Erdgeschoss mit rundbogigen Türgewänden. Datierung 1791. Das stattliche Gebäude befindet sich an der Straße nach Nagold, außerhalb der Stadtmauer gegenüber vom Kloster Reuthin. Nach Aussagen der Bewohner soll ein französischer Offizier sich dieses Haus erstellt haben. Dadurch ließe sich auch die für Wildberg ungewöhnliche Architektur erklären. Die Erhaltung des Gebäudes liegt aus heimatgeschichtlichen Gründen im öffentlichen Interresse.aut der
Lage
Der Luftkurort Wildberg befindet sich auf einer Höhe zwischen 350-630 m ü. M., am Rand des nördlichen Schwarzwalds und hat mit seinen Teilorten Gültlingen, Sulz am Eck, Effringen und Schön-bronn zusammen insgesamt etwa 10.300 Einwohner. Die frühere Oberamtsstadt kann auf eine reiche Geschichte zurück blicken. Viele der historischen Fachwerkgebäude im Städtchen geben darüber auch heute noch Auskunft. Bekannt geworden ist Wildberg allerdings als Schäferlaufstadt. Als eines der wenigen historischen Heimatfeste des Schwarzwalds wird der Schäferlauf regelmäßig alle zwei Jahre gefeiert.
Der örtliche Einzelhandel ist gut sortiert, so daß die täglichen Einkäufe bequem im Ort getätigt werden können. Landwirtschaft, Handwerk, sowie kleine bis mittlere Betriebe und mehrere Dienstleister sorgen für eine intakte und bodenständige Infrastruktur.
Die gesundheitliche Grundversorgung ist durch drei ärztliche Praxen, eine Zahnarztpraxis, sowie die mobilen sozialen Dienste sichergestellt.
Für die jüngsten Gemeindemitglieder bietet der Ort auf die einzelnen Ortsteile verteilt 4 Kindergärten an. Die Stadt verfügt zudem über eine Haupt- und Realschule welche im "Bildungszentrum Wildberg" zusammengefasst sind. Außerdem gibt es in der Kernstadt und den Ortsteilen Effringen, Sulz am Eck und Gültlingen jeweils eine Grundschule.
Die Gemarkung liegt inmitten eines herrlichen Waldgebietes und bietet vor allem auf den Hochflächen reizvolle Landschaften und Ausblicke. Ideal für alle die gern wandern oder Fahrrad fahren. Natürlich bietet Wildberg auch dem Sportler mit seinen Sportplätzen, 1 Tennisplatz, 1 Minigolfanlage und mehreren Sportvereinen genügend Anlaufstellen für die Ausübung seines Hobbys.
Die Stadt ist durch die Nagoldtalbahn an das überregionale Streckennetz der Deutschen Bahn angebunden. Über die an Deckenpfronn und Gärtringen vorbei führende Landstrasse L357 sowie die L358 über Sulz am Eck und Herrenberg ist die A81 und somit der Großraum Stuttgart in kürzester Zeit erreichbar.
Weitere Dokumente
wohnflaeche01wohnflaeche02
Grundriss
EG
>
>
OG
>
>
1. DG
>
>
Adresse
Talstraße 106, 72218 Wildberg
Interessante Orte
Preis- und Lageinformationen
Preistrend für Bestandsimmobilien in Wildberg