Dieses ansprechende Ensemble in der Hans-Thoma-Straße 2 verbindet historische Bausubstanz mit soliden Erträgen und flexiblen Nutzungsmöglichkeiten – eine seltene Kombination im Herzen Potsdams!
Das nicht unter Denkmalschutz stehende Wohn- und Geschäftshaus ist derzeit in zwei Wohneinheiten (in Summe ca. 212 qm Wohnfläche) und zwei Gewerbeeinheiten (in Summe ca. 424 qm Gewerbefläche) unterteilt und eröffnet Kapitalanlegern wie Eigennutzern gleichermaßen vielseitige Perspektiven.
Die größere Altbaueinheit – über einen separaten, herrschaftlichen Eingang erschlossen – ist leerstehend und bietet Raum für die Visionen des neuen Eigentümers.
Die Gebäudestruktur erlaubt eine flexible Neuaufteilung: Durch einfache Grundrissanpassungen lassen sich Einheiten zusammenlegen oder trennen – ideal für eine individuelle Nutzung als großzügige Wohnvilla, repräsentatives Büro oder extravaganter Showroom.
Bisher als exklusives Küchenstudio genutzt, beeindruckt sie mit großzügigen Deckenhöhen, teils holzvertäfelten Decken und weitläufigen Grundrissen, die klassische Eleganz mit zeitloser Präsenz verbinden.
Das eindrucksvolle Treppenhaus führt auf eine Galerieebene im Obergeschoss und unterstreicht den repräsentativen Charakter dieser Einheit – prädestiniert für stilvolles Wohnen, kreative Büronutzung oder anspruchsvolle Präsentationsflächen mit bester Sichtbarkeit.
Die zweite Gewerbeeinheit ist aktuell als Seminareinheit, ebenso wie die beiden Wohneinheiten vermietet.
Ergänzt wird das Ensemble durch eine Garagen-Remise im Innenhof, die zusätzliche Lagerfläche bietet. Insgesamt stehen sieben Stellplätze zur Verfügung – ein klarer Vorteil in dieser zentralen Lage.
Die aktuelle Jahresnettokaltmiete (IST) beläuft sich aufgrund des Leerstands auf 41.952 €. Unter Berücksichtigung des früheren Mietvertrages ergibt sich eine kalkulatorische Soll-Miete von 85.752 € – mit zusätzlichem Entwicklungspotenzial bei Neuvermietung.
Fazit:
Ein vielseitiges Anlageobjekt mit klar erkennbarem Wertsteigerungspotenzial, das Wohnen und Arbeiten auf einem Grundstück intelligent vereint. Ob als renditestarke Kapitalanlage, repräsentativer Firmensitz mit Wohnanteil oder entwicklungsfähiges Projekt – die Hans-Thoma-Straße 2 bietet den passenden Rahmen für unterschiedlichste Nutzungskonzepte in bester Potsdamer Lage.
Historische Wohn- und Geschäftsvilla in zentraler Lage von Potsdam - mit flexibler Nutzung
14467 Potsdam
Die vollständige Adresse der Immobilie erhalten Sie vom Anbieter.
Auf Karte anzeigen
Die vollständige Adresse der Immobilie erhalten Sie vom Anbieter.
Finanzierungszertifikat
In nur zwei Minuten zu Ihrem persönlichen Finanzierungszertifkat.
Infos
| Haustyp | Mehrfamilienhaus |
|---|---|
| Etagenzahl | 4 |
| Wohnfläche ca. | 636 m2 |
| Grundstücksfläche | 969 m2 |
| Zimmer | 18 |
| Garage/Stellplatz | Garage |
| Anzahl Garage/Stellplatz | 7 |
Kosten
| Kaufpreis |
2.700.000 € |
|---|---|
| Provision |
7.14 % inkl. MwSt. Bei Abschluss eines notariellen Kaufvertrages ist eine Käuferprovision vom Käufer in Höhe von 7.14 % inkl. MwSt. aus dem Kaufpreis fällig. |
Finanzierungsrechner:
Kaufpreis:
600.000 €
Eigenkapital:
600.000 €
Monatliche Rate
0 €
Effektiver Jahreszins
0 %
Sollzinsbindung
10 Jahre
Bausubstanz & Energieausweis
| Baujahr | 1890 |
|---|---|
| Objektzustand | Saniert |
| Qualität der Austattung | Normal |
| Heizungsart | Zentralheizung |
| Wesentliche Energieträger | Gas |
| Energieausweis | liegt vor |
| Energieausweistyp | Bedarfsausweis |
| Energieverbrauchskennwert | 231,0 kWh/(m²*a) |
| Energieeffizienzklasse | G |
231,0
kWh/(m²*a)
Energieeffizienzklasse G
- A+
- A
- B
- C
- D
- E
- F
- G
- H
- 0
- 25
- 50
- 75
- 100
- 125
- 150
- 175
- 200
- 225
- >250
Beschreibung des Objekts
Ausstattung
- WGH
- 4 Einheiten (2x Wohnen, 2x Gewerbe)
- repräsentatives Wohnen und Arbeiten
- Altbauvilla
- 7 Stellplätze plus Garage
- Beste Lage in Potsdam
- Sehr gute ÖPNV-Anbindung
Lage
DIE LAGE: ZENTRAL, URBAN, LEBENSWERT – POTSDAM NÖRDLICHE INNENSTADT
Mit der Hans-Thoma-Straße 2 wohnen Sie mitten im Herzen Potsdams – dort, wo Geschichte und modernes Stadtleben aufeinandertreffen. Das Quartier der Nördlichen Innenstadt verbindet historischen Charme mit urbaner Dynamik. Berliner Vorstadt, Holländisches Viertel, Innenstadt und die Havel liegen nur wenige Schritte entfernt.
ALLES, WAS DAS LEBEN LEICHT MACHT
Einkaufen, entspannen, genießen – alles direkt vor der Tür. Supermärkte, Bäckereien und Fachgeschäfte sind bequem zu Fuß erreichbar. Spaziergänge entlang der Havel oder Auszeiten in den Parks Babelsberg und Nuthepark bieten Erholung im Grünen – mitten in der Stadt.
ANBINDUNG: SCHNELL UND FLEXIBEL UNTERWEGS
Mehrere Tram- und Bushaltestellen in umittelbarer Nähe, sorgen für beste Verbindungen in alle Stadtteile. Der Potsdamer Hauptbahnhof ist nur wenige Minuten entfernt – von hier gelangen Sie in rund 25–30 Minuten zum Berliner Hauptbahnhof. Auch mit dem Auto sind Sie über die zentralen Verkehrsadern optimal angebunden.
FAZIT
Die Hans-Thoma-Straße 2 steht für urbanes Leben mit hoher Lebensqualität. Zentral, grün, bestens vernetzt – ein Ort für Menschen, die Stadt und Natur gleichermaßen schätzen.
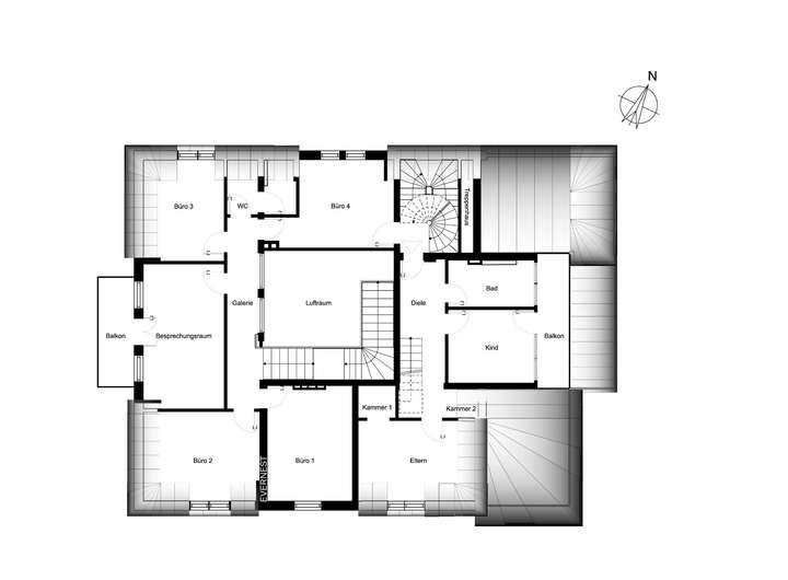
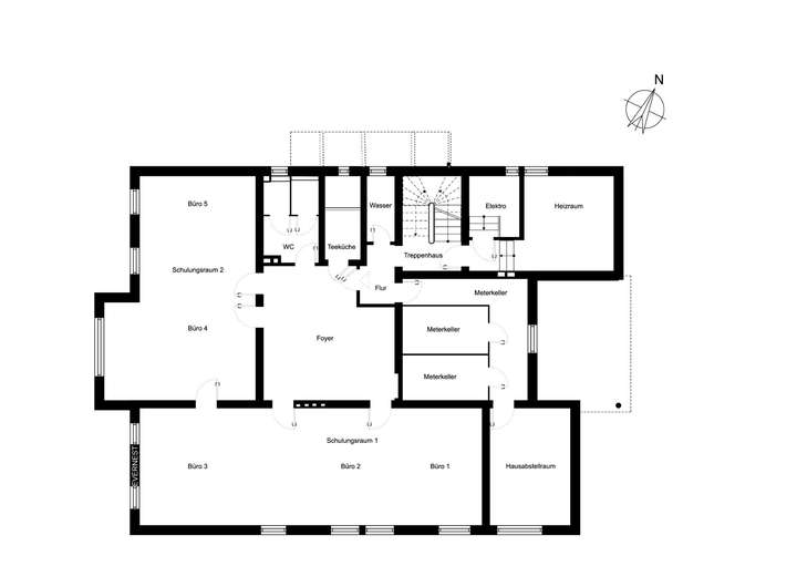
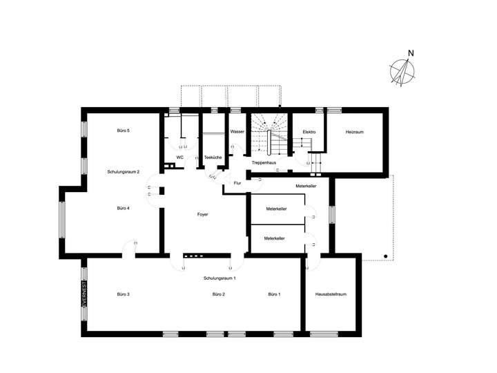
Grundriss
Souterrain
>
>
Hochparterre
>
>
1.Obergeschoss
>
>
Dachgeschoss
>
>
Adresse
14467 Potsdam
Interessante Orte
Preis- und Lageinformationen
Preistrend für Bestandsimmobilien in Nördliche Innenstadt