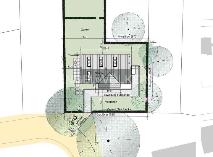
Das angebotene Baugrundstück ist Teil eines noch ideell zu teilenden Grundstückes. Der nördliche Teil ist mit einer Doppelhaushälfte bebaut. Der hier angebotene, rückwärtige Grundstücksanteil wird etwa 368 m² betragen und ist bereits durch eine Hecke vom Garten des Bestandshauses getrennt. Das Baugrundstück ist nicht bebaut und nicht erschlossen.
Gebaut werden darf nach den Vorgaben des Baustufenplans Langenhorn vom 28.02.1956. Demnach handelt es sich um ein Wohngebiet mit offener, zweigeschossiger Bauweise. Es ist also ein Einfamilien- oder Doppelhaus mit maximal zwei Vollgeschossen denkbar.
Zusätzlich befindet sich das Grundstück im Gebiet der Erhaltungsverordnung "Gartenstadt Siemershöhe" vom 08.02.1994 nach §172 BauGB.
Auf dem Grundstück wurde ein ca. 148 m² großes Einfamilienhaus mit zwei Vollgeschossen und einem Dachgeschoss, ohne Keller und ohne Stellplätze geplant. Das Gebäude lehnt sich and die Typologie des Bebauungsstiles der "Siemershöhe" an. Für das geplante Bauvorhaben liegt eine Baugenehmigung vor.
Erschlossen wird das Grundstück nach Süden über die Straße Schäferhofstieg, auch die Zuwegung wird hierüber erstellt.
Haben wir Ihr Interesse geweckt? Für weitere Details oder einen Besichtigungstermin melden Sie sich gerne. Wir freuen uns auf Sie!
Baugrundstück am Fuße der Siemershöhe
22415 Hamburg
Die vollständige Adresse der Immobilie erhalten Sie vom Anbieter.
Auf Karte anzeigen
Die vollständige Adresse der Immobilie erhalten Sie vom Anbieter.
Finanzierungszertifikat
In nur zwei Minuten zu Ihrem persönlichen Finanzierungszertifkat.
Infos
| Vermarktungsart | Kaufen |
|---|---|
| Grundstücksfläche | 368 m2 |
| Erschließung | Unerschlossen |
| Empfohlene Nutzung | Einfamilienhaus |
| Bebaubar nach | Bebauungsplan |
Kosten
| Miete pro Jahr |
297.500 € |
|---|---|
| Provision |
7,14 % inkl. gesetzl. MwSt. |
Finanzierungsrechner:
Kaufpreis:
600.000 €
Eigenkapital:
600.000 €
Monatliche Rate
0 €
Effektiver Jahreszins
0 %
Sollzinsbindung
10 Jahre
Beschreibung des Objekts
Lage
Dass Urbanität und grüne Umgebung sich nicht widersprechen müssen, zeigt der Hamburger Stadtteil Langenhorn in besonderer Weise. Die Umgebung des angebotenen Hauses ist optisch grün und naturnah. Dennoch bietet die Umgebung eine gute Infrastruktur mit zahlreichen Restaurants, Einkaufsmöglichkeiten und Kitas. Der U-Bahnhof Fuhlsbüttel-Nord (U1) ist zu Fuß in nur vier Minuten zu erreichen. Das Einkaufszentrum Langenhorner Markt liegt nur eine Haltestelle entfernt und bietet neben vielen Einzelhändlern auch Ärzte, Fitness-Club, Wochenmarkt, ein Kundenzentrum der Stadt Hamburg und vieles mehr. Die Hamburger Innenstadt erreichen Sie mit der U1 in 22 Minuten. Das Taxi zum Terminal des Hamburg Airport ist ganze vier Minuten unterwegs; zu Fuß geht´s in ca. 23 Minuten.
Wenn Sie in die Natur möchten, liegt die Grünanlage Höpen direkt nebenan. Im weitläufigen Naturschutzgebiet Raakmoor können Sie auch ausgedehnte Spaziergänge oder Joggingrunden tätigen.
In gut 10 Minuten erreichen Sie die Autobahn A7, welche Sie im Süden durch den Elbtunnel führt und im Norden mit den Stränden von Nord- und Ostsee verbindet.
Sonstige Angaben
Der Makler-Vertrag mit uns kommt durch die Bestätigung der Inanspruchnahme unserer Maklertätigkeit in Textform zustande, wie z.B. insbesondere die Unterschrift des Suchkundenvertrages und/oder des Objekt-Exposés. Die Courtage in Höhe von 7,14 % inkl. der gesetzlichen Mehrwertsteuer auf den Kaufpreis ist mit dem Zustandekommen des Kaufvertrages (notarieller Vertragsabschluss) verdient und fällig. Die Vermittelnden und/oder Nachweisenden, Hamburg Südost Immobilien GmbH (Lizenznehmer der Engel & Völkers Residential GmbH) und ggf. deren Beauftragter, erhalten einen unmittelbaren Zahlungsanspruch gegenüber dem Käufer (Vertrag zugunsten Dritter, § 328 BGB). Alle Angaben sind ohne Gewähr und basieren ausschließlich auf Informationen, die uns von unserem Auftraggeber zur Verfügung gestellt wurden. Wir übernehmen keine Gewähr für die Vollständigkeit, Richtigkeit und Aktualität dieser Angaben. Die Grunderwerbsteuer, Notar- und Grundbuchkosten sind vom Käufer zu tragen. Im Übrigen gelten unsere Allgemeinen Geschäftsbedingungen. Irrtum und Zwischenverkauf vorbehalten.