Dieses besondere Einfamilienhaus mit Gewerbeanteil wurde 1953 in massiver Bauweise erbaut. Es beherbergt auf ca. 165,98 m² Wohn- und Nutzfläche vier Zimmer, eine Küche, ein großes Vollbad sowie ein separates Büro mit Gäste-WC.
Abgerundet wird das Angebot durch ein massives Nebengebäude inklusive Abstellraum, welches derzeit gewerblich genutzt wird.
Wohn- und Geschäftshaus in Altkloster
21614 Buxtehude
Die vollständige Adresse der Immobilie erhalten Sie vom Anbieter.
Auf Karte anzeigen
Die vollständige Adresse der Immobilie erhalten Sie vom Anbieter.
Finanzierungszertifikat
In nur zwei Minuten zu Ihrem persönlichen Finanzierungszertifkat.
Infos
| Haustyp | Einfamilienhaus |
|---|---|
| Wohnfläche ca. | 141 m2 |
| Nutzfläche | 160,55 m2 |
| Grundstücksfläche | 495 m2 |
| Bezugsfrei ab | nach Vereinbarung |
| Zimmer | 5 |
| Badezimmer | 1 |
Kosten
| Kaufpreis |
399.000 € |
|---|---|
| Provision |
3,57 % inkl. MwSt. |
| Mieteinnahmen | 1.401 € |
Finanzierungsrechner:
Kaufpreis:
600.000 €
Eigenkapital:
600.000 €
Monatliche Rate
0 €
Effektiver Jahreszins
0 %
Sollzinsbindung
10 Jahre
Bausubstanz & Energieausweis
| Baujahr | 1953 |
|---|---|
| Objektzustand | Gepflegt |
| Heizungsart | Zentralheizung |
| Wesentliche Energieträger | Gas |
| Energieausweis | liegt vor |
| Energieausweistyp | Bedarfsausweis |
| Energieverbrauchskennwert | 352,6 kWh/(m²*a) |
| Energieeffizienzklasse | H |
352,6
kWh/(m²*a)
Energieeffizienzklasse H
- A+
- A
- B
- C
- D
- E
- F
- G
- H
- 0
- 25
- 50
- 75
- 100
- 125
- 150
- 175
- 200
- 225
- >250
Beschreibung des Objekts
Ausstattung
Betreten Sie den Wohnbereich im Erdgeschoss, befinden Sie sich im Eingangsbereich mit Zugang in das geräumige Wohn- und Esszimmer. Über eine Treppe erreichen Sie das Obergeschoss des Hauses. Hier befinden sich drei Zimmer, die Küche mit hellen Einbauten und das große Vollbad.
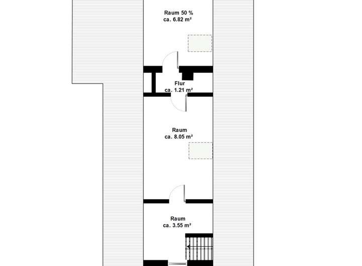
Über eine weitere Treppe aus einem der Zimmer gelangen sie in das wohnlich ausgebaute Dachgeschoss des Hauses.
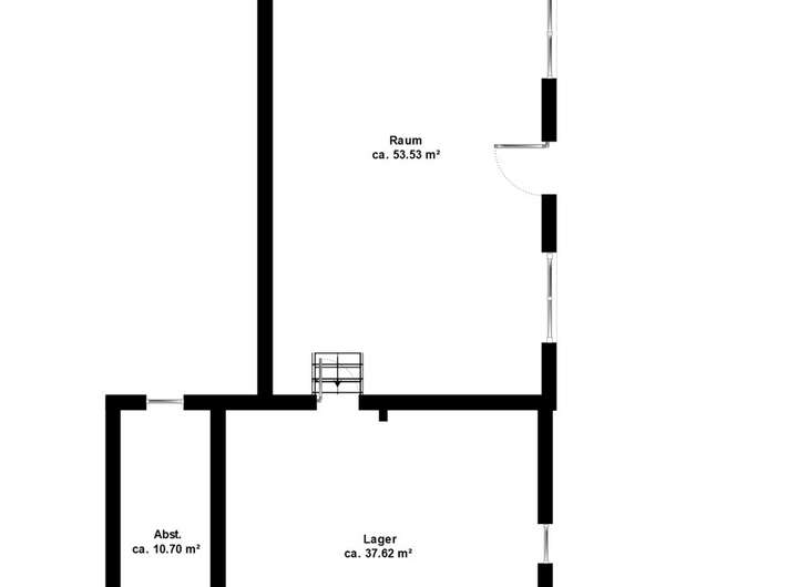
Auf der Rückseite des Hauses befindet sich ein Büro mit Gäste-WC. Im Nebengebäude befindet sich ein großzügiger Gewerberaum nebst Abstellflächen und einem geräumigen Dachboden.
Das Haus und auch die Gewerbeeinheit sind derzeit für eine Pauschalmiete in Höhe von € 1.400,50 vermietet.
Lage
Buxtehude, die zweitgrößte Stadt des Landkreises Stade an der Este, zählt über 40.000 Einwohner. Für Jung und Alt befinden sich in Buxtehude und der direkten Umgebung Einkaufsmöglichkeiten, Sportvereine, Schwimmbäder und verschiedene Ärzte und Apotheken.
Die Buxtehuder Altstadt und den Bahnhof erreichen Sie zu Fuß und mit dem Fahrrad in wenigen Minuten. Durch den S-Bahn- und Metronom-Anschluss erreichen Sie die Hamburger Innenstadt und Stade, ohne umzusteigen, bequem und zügig.
Umgeben vom Estetal, Wiesen und dem Neukloster Forst hat Buxtehude selbst viel Grün zu bieten. Das Alte Land mit seinen Obstplantagen und die Elbe laden zu Spaziergängen und Erholung ein.
Grundriss
Erdgeschoss
>
>
Obergeschoss
>
>
Dachgeschoss
>
>
Erdgeschoss Nebengebäude
>
>
Adresse
21614 Buxtehude
Interessante Orte
Preis- und Lageinformationen
Preistrend für Bestandsimmobilien in Buxtehude