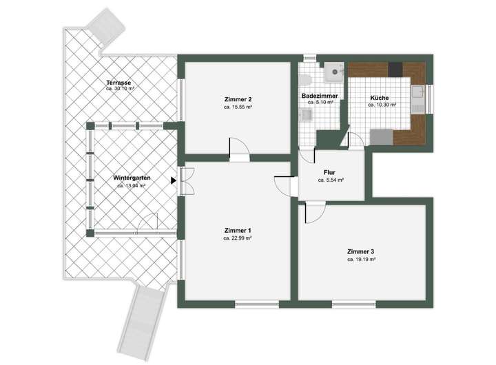
Bezugsfrei zum 01.03.2026: Ankommen, aufatmen, zuhause sein. Diese Hochparterre-Wohnung fängt den Charme des Berliner Altbaus ein und verwandelt ihn in ein warmes, lichtdurchflutetes Zuhause. Auf rund 104 m² entfalten sich drei ansprechend geschnittene Zimmer mit über 2,80 Meter Deckenhöhe. Das Herzstück ist der nach Süden gerichtete Wintergarten, der ganzjährig nutzbar ist durch die Fußbodenheizung. Er führt hinaus auf die neu verflieste Terrasse und weiter in den eigenen Gartenteil. In den Sommermonaten sorgen die Baumkronen für einen sanften Schatten und bewahren ein angenehmes Klima.
Der Wohnbereich liegt am Wintergarten und füllt sich mit natürlichem Licht über große Fensterfronten. Gepflegtes Echtholzparkett setzt in den Wohnräumen warme Akzente, klassische Doppelholzrahmenfenster erzählen vom Stil der Bauzeit und sind zugleich bestens erhalten. Die Küche präsentiert sich bewusst kompakt und funktional. Auf Parkett wurde hier verzichtet, sodass Pflege und Reinigung im Alltag leicht von der Hand gehen. Das Badezimmer ist klassisch gestaltet und bietet eine Wanne für entspannte Auszeiten sowie ein kleines Fenster, das für frische Luft und angenehmes Raumklima sorgt.
Ein eigener Hauseingang unterstreicht die Privatsphäre und das Gefühl des ganz persönlichen Rückzugsortes. Über den Wintergarten geht es direkt hinaus auf Terrasse und in den eigenen Garten, sodass innen und außen zu einer selbstverständlichen Einheit werden. Eine kleine Garage dient als großzügiger Stauraum oder als sichere Abstellfläche für ein Auto, mit Maßen von ca. 4,5m x 4m. So entsteht Raum für einen unkomplizierten Start in ein Zuhause mit Charakter, Licht und viel Grün.
Bezugsfrei: Terrasse, Garten und See - Was will man mehr?
13507 Berlin
Die vollständige Adresse der Immobilie erhalten Sie vom Anbieter.
Auf Karte anzeigen
Die vollständige Adresse der Immobilie erhalten Sie vom Anbieter.
Finanzierungszertifikat
In nur zwei Minuten zu Ihrem persönlichen Finanzierungszertifkat.
Infos
| Wohnungskategorie | Etagenwohnung |
|---|---|
| Etage | 1 von |
| Wohnfläche ca. | 102 m2 |
| Bezugsfrei ab | 01.03.2026 |
| Zimmer | 3 |
| Badezimmer | 1 |
Kosten
| Kaufpreis |
580.000 € |
|---|---|
| Hausgeld |
475 € |
| Provision |
3,57 % inkl. der gesetzl. MwSt. von 19 % des Kaufpreises |
Finanzierungsrechner:
Kaufpreis:
600.000 €
Eigenkapital:
600.000 €
Monatliche Rate
0 €
Effektiver Jahreszins
0 %
Sollzinsbindung
10 Jahre
Bausubstanz & Energieausweis
| Baujahr | 1936 |
|---|---|
| Qualität der Austattung | Normal |
| Heizungsart | Gas-Heizung |
| Wesentliche Energieträger | Erdgas schwer |
| Energieausweis | liegt vor |
| Energieausweistyp | Bedarfsausweis |
| Energieverbrauchskennwert | 126,4 kWh/(m²*a) |
| Energieeffizienzklasse | D |
126,4
kWh/(m²*a)
Energieeffizienzklasse D
- A+
- A
- B
- C
- D
- E
- F
- G
- H
- 0
- 25
- 50
- 75
- 100
- 125
- 150
- 175
- 200
- 225
- >250
Beschreibung des Objekts
Ausstattung
• Bezugfrei zum 01.03.2026
• Wohnfläche ca. 104,27 m², drei Zimmer, echte Hochparterre
• Südorientierter Wintergarten ca. 13 m² mit Fußbodenheizung
• 24 m² Terrasse mit anschließendem, eigenem Gartenanteil von knapp 200 m², Ausrichtung Süden
• Gepflegtes Echtholzparkett in den Wohnräumen
• Klassische Doppelkastenfenster, regelmäßig gepflegt
• Badezimmer mit Wanne, WC und kleinem Lüftungsfenster
• Einbauküche in Standardausstattung
• Kleine Garage auf dem Hof als Abstell- und Lagerfläche, ca. 4,5m x 4m, optional für Kleinwagen nutzbar
• Gaszentralheizung, Wärmeerzeuger 2021 erneuert
• Gebäude Baujahr 1936, nur 3 Wohneinheiten
Lage
Zwischen Tegeler See und Tegeler Forst gelegen, verbindet die Wohnlage in Tegel Wasser, Grün und Stadtkomfort auf angenehm kurze Wege. Die Greenwichpromenade, Bootsstege und Uferwege sind schnell erreicht. Spaziergänge am Wasser, Ruder- und SUP-Runden oder ein sonniger Kaffee mit Seeblick gehören hier ganz selbstverständlich zum Alltag. In den Sommermonaten sorgen die alten Baumkronen der Umgebung für schattige Wege und ein angenehm ausgeglichenes Mikroklima.
Die Nachbarschaft ist von gepflegten Altbauten der 1920er bis 1940er Jahre geprägt und wirkt ruhig und gewachsen. Das Wohnumfeld gilt als gut besonnt und weitgehend eben, negative Umstände wie Lärm- oder Geruchsbelastungen sind nicht bekannt. Durch die überschaubare Bebauungsdichte entsteht ein entspannter, privater Charakter, der sich besonders für Menschen eignet, die Nähe zum Wasser und eine ruhige Adresse schätzen.
Für den täglichen Bedarf ist bestens gesorgt. Entlang der Berliner Straße sowie im Tegel-Zentrum finden sich Supermärkte, Fachgeschäfte, Bäckereien, Apotheken, Cafés und Restaurants. Die „Hallen am Borsigturm“ und die Markthalle im entstehenden „Tegel Quartier“ erweitern das Angebot um Shopping, Feinkost und Wochenmarktflair. Kitas, Grund- und Oberschulen stehen in ausreichender Zahl zur Verfügung. Kulturelle Akzente setzt die Humboldt-Bibliothek mit Veranstaltungen, Lesungen und Ausstellungen. Medizinisch ist der Standort durch Praxen im Umfeld sowie das Vivantes Humboldt-Klinikum im nahen Radius sehr gut angebunden.
Die ÖPNV-Erschließung ist komfortabel. U-Bahn und S-Bahn sind fußläufig erreichbar, ergänzt durch mehrere Buslinien mit Tag- und Nachtverbindungen. Für den Autoverkehr ist die Anbindung an die A111 zügig möglich, sodass sowohl die Berliner Stadtautobahn als auch das Umland schnell erreicht werden. So verbindet die Lage ruhiges Wohnen am Wasser mit einer direkten Erreichbarkeit der Innenstadt und der überregionalen Verkehrswege.
Sonstige Angaben
Unsere Angebote sind freibleibend und unverbindlich. Die Angaben basieren auf Aussagen des Verkäufers. Irrtum sowie Zwischenverkauf bleiben ausdrücklich vorbehalten. Der Maklervertrag mit uns und/oder unserem Beauftragten kommt durch schriftliche Vereinbarung oder durch die Inanspruchnahme unserer Maklertätigkeit auf der Basis des Objekt-Exposés und seiner Bedingungen zustande.
Die Käufercourtage in Höhe von 3,57% auf den Kaufpreis, einschließlich gesetzlicher Mehrwertsteuer, ist mit wirksamem notariellem Kaufvertrag verdient und fällig. Wir bitten um Verständnis, dass wir Detailinformationen nur liefern, sofern Sie uns Ihre kompletten Adress- und Kontaktdaten übermittelt haben.
Weitere interessante Objekte finden Sie auf unserer Firmenhomepage: www.kensington-berlin.com sowie auf www.kensington-international.com
Eigentümern bieten wir eine kostenlose Einwertung Ihrer Immobilie an.
Grundriss
Grundriss
>
>
Adresse
13507 Berlin
Interessante Orte
Preis- und Lageinformationen
Preistrend für Bestandsimmobilien in Tegel (Reinickendorf)