Zum Verkauf steht dieses außergewöhnliche Einfamilienhaus inmitten einer wunderschönen und ruhigen Siedlungslage im begehrten Dresdner Stadtteil Klotzsche, das mit seinem besonderen Charme, einer großzügigen Grundstücksfläche von ca. 1.300 m² und vielseitigen Nutzungsmöglichkeiten überzeugt. Das im Jahr ca. 1936 erbaute Haus bietet auf einer Wohnfläche von rund 137 m² reichlich Platz für individuelle Wohnideen, Familienleben oder Mehrgenerationenwohnen.
Insgesamt stehen neun gut geschnittene Zimmer zur Verfügung, die sich flexibel als Wohn-, Schlaf-, Kinder-, Arbeits- oder Gästezimmer gestalten lassen. Die Fensterfronten lassen viel Tageslicht in die Räume und schaffen eine angenehme Wohnatmosphäre. Rollläden an den Fenstern sorgen für zusätzlichen Komfort und Privatsphäre. Das Haus ist fast vollständig unterkellert und bietet damit wertvolle zusätzliche Nutzfläche für Vorräte, Hobby oder Hauswirtschaft.
Ein besonderes Highlight sind die zwei lichtdurchfluteten, voll ausgestatteten Einbauküchen, die zum gemeinsamen Kochen und Verweilen einladen. Ergänzt wird das Raumangebot durch zwei Tageslichtbäder inkl. Badewanne, Dusche und Handtuchheizkörper sowie zwei separate Gäste-Bäder mit Fenster und Dusche. Ein praktischer Abstellraum sowie ein begehbarer Dachboden bieten weitere Stau- und Nutzungsmöglichkeiten.
Das Herzstück dieser Immobilie bildet der weitläufige Garten, der mit seiner liebevollen Gestaltung und zahlreichen Nutzungsmöglichkeiten begeistert. Neben einer großen Rasenfläche erwarten Sie ein gemütlicher Sitzbereich, ein gepflegtes Gewächshaus, eine Outdoor-Küche sowie eine Werkstatt und ein Geräteschuppen. Ein eigener Brunnen dient zur Bewässerung der Gartenanlage und sorgt für eine nachhaltige Nutzung. Der Außenbereich bietet viel Raum für Entspannung, Freizeitaktivitäten oder gesellige Sommerabende mit Familie und Freunden. Zwei Garagen sowie ein Außenstellplatz ergänzen das attraktive Gesamtbild und bieten ausreichend Platz für Fahrzeuge, Fahrräder und Gartengeräte.
Für weitere Informationen oder zur Vereinbarung eines Besichtigungstermins sprechen Sie uns jederzeit an.
+++ Großzügiges Einfamilienhaus mit 1.300 m² Gartenparadies in begehrter Lage von Klotzsche +++
01109 Dresden
Die vollständige Adresse der Immobilie erhalten Sie vom Anbieter.
Auf Karte anzeigen
Die vollständige Adresse der Immobilie erhalten Sie vom Anbieter.
Finanzierungszertifikat
In nur zwei Minuten zu Ihrem persönlichen Finanzierungszertifkat.
Infos
| Haustyp | Einfamilienhaus |
|---|---|
| Etagenzahl | 3 |
| Wohnfläche ca. | 137 m2 |
| Grundstücksfläche | 1.300 m2 |
| Bezugsfrei ab | ab sofort |
| Zimmer | 9 |
| Badezimmer | 2 |
| Anzahl Garage/Stellplatz | 3 |
Kosten
| Kaufpreis |
565.000 € |
|---|---|
| Provision |
3,57% inkl. MwSt. |
Finanzierungsrechner:
Kaufpreis:
600.000 €
Eigenkapital:
600.000 €
Monatliche Rate
0 €
Effektiver Jahreszins
0 %
Sollzinsbindung
10 Jahre
Bausubstanz & Energieausweis
| Baujahr | 1936 |
|---|---|
| Letzte Sanierung | 2020 |
| Heizungsart | Öl-Heizung |
| Wesentliche Energieträger | Öl |
| Energieausweis | liegt vor |
| Energieausweistyp | Bedarfsausweis |
| Energieverbrauchskennwert | 168,5 kWh/(m²*a) |
| Energieeffizienzklasse | F |
168,5
kWh/(m²*a)
Energieeffizienzklasse F
- A+
- A
- B
- C
- D
- E
- F
- G
- H
- 0
- 25
- 50
- 75
- 100
- 125
- 150
- 175
- 200
- 225
- >250
Beschreibung des Objekts
Ausstattung
+ Einfamilienhaus
+ ca. 1.300,00 m² Grundstücksfläche
+ ca. 137,00 m² Wohnfläche
+ voll unterkellert
+ Baujahr ca. 1936
+ 9 Zimmer
+ Abstellraum
+ Rollläden
+ 2 lichtdurchflutete Küchen inkl. Einbauküchen
+ 2 helle Bäder inkl. Badewanne, Dusche und Handtuchheizkörper
+ 2 Gäste-Bäder inkl. Fenster und Dusche
+ begehbarer Dachboden
+ weitläufiger Garten inkl. Geräteschuppen, Sitzbereich, Gewächshaus, Outdoor-Küche, Werkstatt, Brunnen etc.
+ 2 Garagen
+ PKW-Außenstellplatz
+ Ölheizungsanlage 1999
+ wunderschöne Siedlungslage im begehrten Stadtteil Dresden-Klotzsche
Lage
Die angebotene Immobilie liegt in einer der reizvollsten und historisch markanten Wohnlagen im Dresdner Norden: in der Gartenstadt Hellerau-Klotzsche. Hellerau wurde 1909 als erste deutsche Gartenstadt angelegt und besticht bis heute durch seine geschlossene, von Grün geprägte Siedlungsstruktur, die erhaltene historische Bausubstanz und eine ruhige, dörflich anmutende Atmosphäre.
Das Objekt befindet sich in einer typische Anliegerstraße innerhalb der Gartenstadt: ruhiger Verkehr, Bürgersteige auf beiden Seiten und überwiegend Wohnnutzung. In unmittelbarer Nachbarschaft befinden sich denkmalgeschützte Häuser, Grünflächen und die große Platzanlage rund um das Festspielhaus, die dem Viertel seine besondere Identität geben.
Klotzsche ist gut an das Dresdner Straßenbahnnetz angebunden. Die Straßenbahnlinie 8 verkehrt regelmäßig zwischen Hellerau und dem Innenstadtbereich (z. B. Albertplatz) — die Fahrzeit ins Zentrum liegt beträgt etwa 15 Minuten, wodurch die Innenstadt bequem mit dem ÖPNV erreichbar ist.
Für Autofahrer ist Klotzsche verkehrstechnisch günstig: in kurzer Fahrzeit erreicht man die Autobahn A4 über die Anschlussstelle Dresden-Hellerau, wodurch Verbindungen in Richtung Westen/Osten (z. B. A4) schnell erreicht sind. Auch das Dresdner Flughafenumfeld und das nördliche Wirtschafts-/Industriegebiet sind gut erreichbar.
Ein herausragendes Merkmal von Klotzsche ist das Festspielhaus Hellerau / Europäisches Zentrum der Künste: ein lebendiges Kulturzentrum mit einem breiten Programm aus Tanz, Musik, Theater und Performances sowie Führungen und Workshops. Darüber hinaus bietet die Gartenstadt unmittelbare Spazier- und Grünflächen, Vereinsangebote und ein aktives Ortsleben.
Die Mikrolage ist gut versorgt: in der näheren Umgebung finden sich Discounter und Supermärkte (u. a. ein Lidl in Hellerau/ L.-Kossuth-Straße) sowie Apotheken, Bäckereien und weitere Einzelhändler für den täglichen Bedarf. Zusätzlich gibt es einen wöchentlichen Wochenmarkt (frisches Obst/Gemüse, regionale Anbieter), was die Nahversorgung ergänzt.
Vor Ort gibt es Kindertagesstätten und Grundschulen, darunter die Grundschule „In der Gartenstadt“ (84. Grundschule) sowie freie/alternative Schulen und Kitas in fußläufiger/kurzer Radentfernung.
Sonstige Angaben
Alle in diesem Angebot enthaltenen Angaben, Darstellungen und Preise stammen ausschließlich vom Eigentümer oder eines Dritten. Eine Haftung unseres Unternehmens hierfür ist ausgeschlossen.
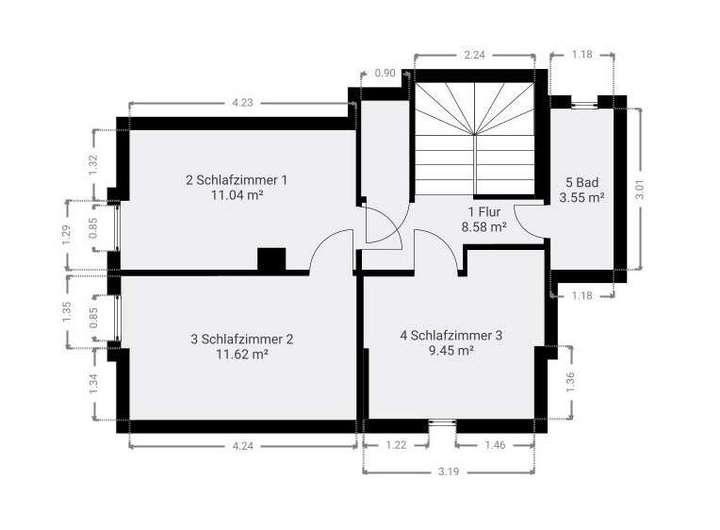
Grundriss
Grundriss KG
>
>
Grundriss EG
>
>
Grundriss OG
>
>
Grundriss DG
>
>
Adresse
01109 Dresden
Interessante Orte
Preis- und Lageinformationen
Preistrend für Bestandsimmobilien in Hellerau/Wilschdorf