Kompromisse waren gestern! Mit diesem Einfamilienhaus in Burgwedel verwirklichst du deine Eigenheimträume ganz nach deinen Wünschen. Das Haus beeindruckt mit einem klassischen Satteldach, das mit einer Neigung von 38 Grad für einen charakteristischen Look sorgt. Die clever gestalteten Erker erweitern den Wohnraum und schaffen eine einladende Atmosphäre. Bodentiefe Fenster durchfluten die Räume mit Tageslicht und vermitteln ein Gefühl von Offenheit und Weite. Mit einer Wohnfläche von 145,38 m² und sechs Zimmern, darunter drei Schlafzimmer und ein Badezimmer, bietet es ausreichend Platz für die ganze Familie. Das großzügige Grundstück mit 960 m² lädt zum Entspannen und Verweilen im Freien ein. In zwei Etagen kannst du deinen persönlichen Stil verwirklichen und jeden Raum nach deinen Vorstellungen gestalten. Das Konzept von LivingHaus ermöglicht es dir, dein zukünftiges Zuhause genau nach deinen Bedürfnissen zu planen und zu realisieren.
Dein individuelles LivingHaus: Der Traum vom Eigenheim wird Wirklichkeit
30938 Burgwedel
Die vollständige Adresse der Immobilie erhalten Sie vom Anbieter.
Auf Karte anzeigen
Die vollständige Adresse der Immobilie erhalten Sie vom Anbieter.
Finanzierungszertifikat
In nur zwei Minuten zu Ihrem persönlichen Finanzierungszertifkat.
Infos
| Haustyp | Einfamilienhaus |
|---|---|
| Etagenzahl | 2 |
| Wohnfläche ca. | 145 m2 |
| Nutzfläche | 145,38 m2 |
| Grundstücksfläche | 960 m2 |
| Zimmer | 6 |
| Schlafzimmer | 3 |
| Badezimmer | 1 |
Kosten
| Kaufpreis |
855.322 € |
|---|
Finanzierungsrechner:
Kaufpreis:
600.000 €
Eigenkapital:
600.000 €
Monatliche Rate
0 €
Effektiver Jahreszins
0 %
Sollzinsbindung
10 Jahre
Bausubstanz & Energieausweis
| Baujahr | 2026 |
|---|---|
| Bauphase | Haus in Planung (projektiert) |
| Qualität der Austattung | Gehoben |
| Energieausweis | liegt vor |
| Energieausweistyp | Bedarfsausweis |
| Energieverbrauchskennwert | 18,0 kWh/(m²*a) |
| Energieeffizienzklasse | A+ |
18,0
kWh/(m²*a)
Energieeffizienzklasse A+
- A+
- A
- B
- C
- D
- E
- F
- G
- H
- 0
- 25
- 50
- 75
- 100
- 125
- 150
- 175
- 200
- 225
- >250
Beschreibung des Objekts
Ausstattung
Dein neues Zuhause kommt mit einer Vielzahl an hochwertigen Ausstattungsmerkmalen, die keine Wünsche offenlassen. Die Traumküche von Living Haus wird passgenau auf deinen Grundriss abgestimmt und bietet modernste Technik sowie cleveren Stauraum. Das Zuhause-Paket stellt sicher, dass dein Haus mit hochwertigen Materialien ausgestattet ist, darunter edle Türen, stilvolle Sanitäranlagen und moderne Böden. Mit I-KON - Intelligentes Bauen wird dein Haus nicht nur energieeffizient, sondern auch umweltfreundlich. Zudem erhältst du mit dem Living Haus Bau-Cockpit einen digitalen Überblick über dein Bauprojekt, während das DIY-Ausbau-Coaching dir die Möglichkeit gibt, den Innenausbau selbst in die Hand zu nehmen. Das Zuhause-Darlehen bietet dir attraktive Finanzierungsoptionen, sodass dein Traumhaus in greifbare Nähe rückt. Dein "Wie ich es will Fertighaus" wartet auf dich.
Lage
Burgwedel bietet eine perfekte Mischung aus ländlichem Flair und urbanen Annehmlichkeiten. In der Umgebung findest du zahlreiche Schulen und Kindergärten, ideal für Familien mit Kindern. Die Wilhelm-Raabe-Schule und die Grundschule Burgwedel sind nur einige Beispiele, die durch ihre gute Ausstattung und engagierte Lehrkräfte überzeugen. Für die kleineren Familienmitglieder gibt es mehrere gut bewertete Kindergärten. Einkaufsmöglichkeiten sind in der Nähe reichlich vorhanden, mit Supermärkten wie Edeka und Aldi, die alles für den täglichen Bedarf bieten. Die ärztliche Versorgung ist durch zahlreiche Arztpraxen und Apotheken gesichert. Für Freizeitaktivitäten bietet Burgwedel diverse Sportvereine und ein reges Vereinsleben, das die Community stärkt. Die Nähe zur Natur macht es einfach, Spaziergänge oder Fahrradtouren in den umliegenden Wäldern und Parks zu genießen. Pendler schätzen die gute Anbindung an die Autobahn A7, die nur wenige Minuten entfernt ist, sowie die gute Erreichbarkeit des öffentlichen Nahverkehrs, mit Bussen, die regelmäßig in die umliegenden Städte fahren. Burgwedel ist der perfekte Ort für Familien, Naturliebhaber und alle, die eine ruhige, aber dennoch gut angebundene Wohnlage suchen.
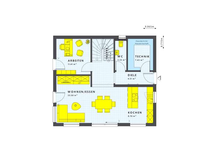
Grundriss
Leb dich Haus
>
>
Gestaltungsbeispiel EG
>
>
Gestaltungsbeispiel OG
>
>
Adresse
30938 Burgwedel
Interessante Orte
Preis- und Lageinformationen
Preistrend für Bestandsimmobilien in Burgwedel