Diese stilvolle Villa mit zusätzlichem Baufenster in Hanglage beeindruckt durch ihre moderne Ausstattung, viel Potential, großzügige Architektur und den atemberaubenden Blick über das Schmuttertal. Das Haus wurde zwischen 1999 und 2000 umfassend kernsaniert und präsentiert sich in einem hochwertigen Zustand mit Fußbodenheizung, Edelstahlleitungen, modernen Sanitäranlagen, erneuerter Elektrik, hochwertiger Dämmung sowie neuen Fenstern und Dacheindeckung.
Der lichtdurchflutete Wohn- und Essbereich mit bodentiefen Fenstern, die luxuriöse Küche sowie der großzügige Masterbereich mit Ankleide und En-Suite-Bad unterstreichen den exklusiven Charakter des Hauses. Zwei weitere Zimmer, ein modernes Duschbad und die weitläufige Terrasse mit Blick auf den liebevoll angelegten Hanggarten und Pool vervollständigen das außergewöhnliche Wohnambiente.
Ein besonderes Highlight ist das zusätzliche Baufenster auf der rechten Grundstücksseite, das eine weitere Bebauung mit rund 250 m² Wohnfläche ermöglicht. Insgesamt stehen ca. 3.307 m² Grundstücksfläche zur Verfügung – ein seltenes Angebot mit erstklassigem Entwicklungspotenzial.
Ideal für Käufer, die luxuriöses Wohnen mit Zukunftsperspektive verbinden möchten – ob als großzügiges Familienanwesen, Investitionsobjekt oder Mehrgenerationenlösung.
Exklusives Einfamilienhaus mit zusätzlichem Baufenster
86356 Neusäß
Die vollständige Adresse der Immobilie erhalten Sie vom Anbieter.
Auf Karte anzeigen
Die vollständige Adresse der Immobilie erhalten Sie vom Anbieter.
Finanzierungszertifikat
In nur zwei Minuten zu Ihrem persönlichen Finanzierungszertifkat.
Infos
| Haustyp | Einfamilienhaus |
|---|---|
| Wohnfläche ca. | 381 m2 |
| Grundstücksfläche | 3.307 m2 |
| Zimmer | 6 |
Kosten
| Kaufpreis |
2.250.000 € |
|---|---|
| Provision |
1,785% inkl. der gesetzlichen MwSt. auf den beurkundeten Kaufpreis |
Finanzierungsrechner:
Kaufpreis:
600.000 €
Eigenkapital:
600.000 €
Monatliche Rate
0 €
Effektiver Jahreszins
0 %
Sollzinsbindung
10 Jahre
Bausubstanz & Energieausweis
| Baujahr | 2000 |
|---|---|
| Objektzustand | Vollständig Renoviert |
| Heizungsart | Fußbodenheizung |
| Wesentliche Energieträger | Gas |
| Energieausweis | liegt vor |
| Energieausweistyp | Verbrauchsausweis |
| Energieverbrauchskennwert | 75,5 kWh/(m²*a) |
| Energieeffizienzklasse | B |
75,5
kWh/(m²*a)
Energieeffizienzklasse B
- A+
- A
- B
- C
- D
- E
- F
- G
- H
- 0
- 25
- 50
- 75
- 100
- 125
- 150
- 175
- 200
- 225
- >250
Beschreibung des Objekts
Ausstattung
- Kernsanierung: 2000
- Baujahr Wärmeerzeuger: 2017 (Gas)
- Bauweise: massiv
- parkähnliches Grundstück
- 2012 (Vergrößerung Terrassen und Poolterrasse)
- 2012 (Außendusche, Wellnessbereich und Sauna)
- 2017 (PV Anlage 15,6 kwp Leistung)
- 2017 (Erneuerung Gastherme mit Warmwasser-Wärmepumpe)
- 2018 ( Erneuerung Terrasse und Balkon)
- 2023 (neuer Batteriespeicher)
- Elektro: KNX System, Wind- und Sonnenwächter
- Fenster: Alu (2-fach verglast)
- Glasüberdachte Terrasse (Erdgeschoss) mit automatischer Beschattung
- Alarmanlage
- Haus- und Gegensprechanlage
- Deckenhöhe: 2,66m (Erdgeschoss) / 2,79m (Hanggeschoss)
- Rolläden: Alu, elektrisch u. vollautomatisch an allen Fenstern
- Bodenbeläge: Granit Kashmir white (Diele und Küche),
- Bodenbeläge: Parkettboden (Wohn- und Schlafräume),
- Bodenbeläge: Marmor (Masterbad)
-Zusätzliches Baufenster auf dem Grundstück (realisierbare Wohnfläche ca. 250qm)
Lage
Die Immobilie befindet sich in Neusäß-Täfertingen, einer idyllischen und grünen Umgebung, die zugleich eine hervorragende Anbindung an städtische Annehmlichkeiten bietet. Täfertingen verbindet ruhiges Wohnen im Grünen mit einer erstklassigen Infrastruktur, ideal für Familien und Menschen, die sowohl Erholung als auch Stadtnähe schätzen. Der charmante Ortsteil verfügt über alle wichtigen Einrichtungen des täglichen Lebens: einen Bäcker, Metzger, Friseur, Gasthof, eine Grundschule sowie Kindergarten und Kinderkrippe. Für Freizeitaktivitäten stehen ein Fußballplatz und eine Minigolfanlage zur Verfügung. Die Verkehrsanbindung ist optimal. Eine Bushaltestelle mit Verbindungen nach Augsburg liegt nur 850 Meter entfernt. Der Bahnhof in Neusäß bietet zusätzliche Flexibilität. Die nahegelegene A8 ist in etwa 5 Kilometern erreichbar, wodurch Sie in nur 15 Minuten mit dem Auto ins Zentrum von Augsburg gelangen.Auch für Freizeit und Erholung ist bestens gesorgt. Die Therme Titania, ein beliebtes Ziel für Wellness und Entspannung, liegt nur 1 Kilometer entfernt. Einkaufsmöglichkeiten wie Supermärkte und weitere Geschäfte erreichen Sie in weniger als 2 Kilometern. Täfertingen bietet somit eine perfekte Kombination aus ländlicher Idylle, komfortabler Infrastruktur und ausgezeichneter Anbindung – ideal für ein harmonisches und bequemes Leben.
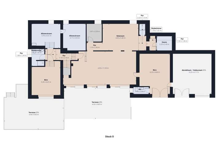
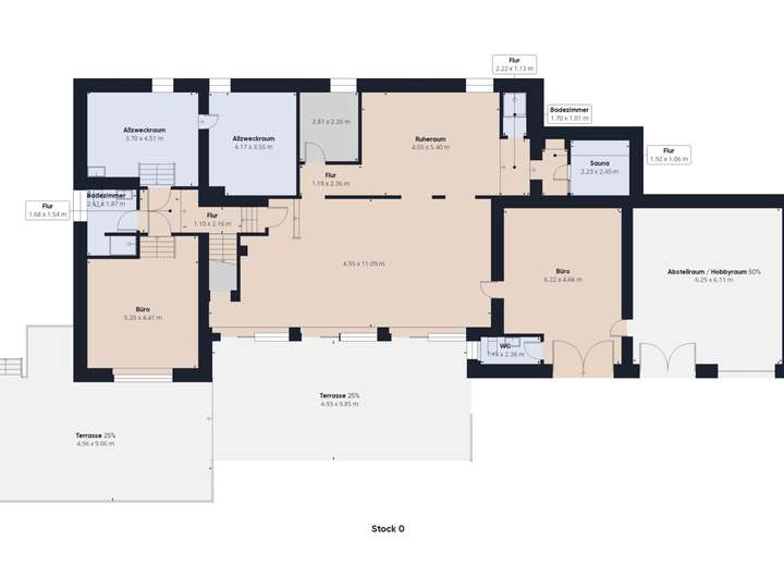
Grundriss
Entwurf Baufenster
>
>
Erdgeschoss
>
>
Untergeschoss
>
>
Adresse
86356 Neusäß
Interessante Orte
Preis- und Lageinformationen
Preistrend für Bestandsimmobilien in Neusäß