Bei der hier angebotenen Immobilie handelt es sich um ein freistehendes Zweifamilienhaus mit Einliegerwohnung auf einem 1.002 m² großen Grundstück. Die gut 211 m² Wohnfläche verteilen sich auf 71 m² im Erdgeschoss, 93 m² im 1. Obergeschoss und gut 47 m² im Dachgeschoss.
Aufgrund der baulichen Aufteilung steht selbstverständlich auch einer Nutzung als Mehrparteienhaus nichts im Wege.
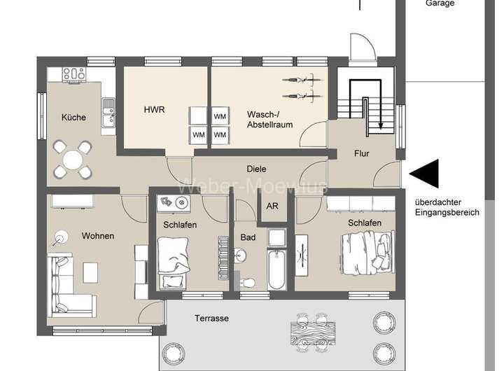
Die genaue Aufteilung aller Räumlichkeiten entnehmen Sie bitte den beigefügten Grundrissen.
Unser Fazit: Wenn Sie auf der Suche nach einem neuen Heim inmitten schöner Natur sind, das viel Platz und verschiedene Nutzungsmöglichkeiten bietet, dann sind Sie hier richtig. Es liegt nun an Ihnen, durch entsprechende Renovierungsarbeiten die für Sie stimmige Wirkung zu erzielen und aus dem „Haus“ Ihr „Zuhause“ zu machen.
Wohnhaus mit bis zu 3 Einheiten, 2 EBK, Terrasse, Balkon, Garten und Garage
51597 Morsbach
Die vollständige Adresse der Immobilie erhalten Sie vom Anbieter.
Auf Karte anzeigen
Die vollständige Adresse der Immobilie erhalten Sie vom Anbieter.
Finanzierungszertifikat
In nur zwei Minuten zu Ihrem persönlichen Finanzierungszertifkat.
Infos
| Haustyp | Mehrfamilienhaus |
|---|---|
| Wohnfläche ca. | 211 m2 |
| Nutzfläche | 22 m2 |
| Grundstücksfläche | 1.002 m2 |
| Bezugsfrei ab | nach Absprache |
| Zimmer | 10 |
| Schlafzimmer | 7 |
| Badezimmer | 4 |
| Garage/Stellplatz | Garage |
| Anzahl Garage/Stellplatz | 4 |
Kosten
| Kaufpreis |
375.000 € |
|---|---|
| Provision |
3,57 % Käuferprovision inkl. gesetzlicher MwSt. |
Finanzierungsrechner:
Kaufpreis:
600.000 €
Eigenkapital:
600.000 €
Monatliche Rate
0 €
Effektiver Jahreszins
0 %
Sollzinsbindung
10 Jahre
Bausubstanz & Energieausweis
| Baujahr | 1970 |
|---|---|
| Letzte Sanierung | 2021 |
| Bauphase | Haus fertig gestellt |
| Objektzustand | Renovierungsbedürftig |
| Qualität der Austattung | Normal |
| Heizungsart | Fußbodenheizung |
| Energieausweis | liegt vor |
| Energieausweistyp | Bedarfsausweis |
| Energieverbrauchskennwert | 101,9 kWh/(m²*a) |
| Energieeffizienzklasse | D |
101,9
kWh/(m²*a)
Energieeffizienzklasse D
- A+
- A
- B
- C
- D
- E
- F
- G
- H
- 0
- 25
- 50
- 75
- 100
- 125
- 150
- 175
- 200
- 225
- >250
Beschreibung des Objekts
Ausstattung
Nachfolgend die Bau- und Ausstattungsdetails im kurzen Überblick:
- 1.002 m² großes Grundstück mit umzäunten Garten
- Baujahr 1970, Dachausbau 1994
- Erd-, Ober- und Dachgeschoss
- Massivbauweise mit Klinkerfassade
- ca. 211 m² Wohnfläche
- davon 71 m² im EG / 93 m² im OG / 47 m² im DG
- ca. 21,72 m² Nutzfläche im Erdgeschoss
- 10 Zimmer, davon bis zu 7 Schlafzimmer
- Elektro-Fußbodenheizung + Infrarotheizung an Decken und Wänden mit Thermostaten in jedem Raum aus 2013
- EG: Infrarotheizung außer im Bad (hier Fußbodenheizung)
- OG: Infrarotheizung außer im Bad (hier Fußbodenheizung)
- DG: Fußbodenheizung außer im Bad (hier Infrarotheizung)
- dezentrale Warmwasserbereitung über Durchlauferhitzer
- sehr geringer Stromverbrauch mit ca. 9.400 kWh pro Jahr inkl. Haushaltsstrom (durch eine mögliche Installation einer PV-Anlage könnten Sie als neue Eigentümer dahingehend ganz autark sein)
- Fenster: größtenteils Dreifachverglasung in weißen Kunstoffrahmen, Bäder u. Küche im EG/OG mit Zweifachverglasung
- Rollläden: elektrisch außer in den Bädern im EG und DG
- EG: 1 Tageslicht-Bad mit Wanne, Dusche, Waschbecken + WC
- OG: separates Gäste-WC
- OG: 1 Bad mit Dusche, Waschbecken + WC
- DG: 1 Wannenbad
- DG: 1 Dusche mit Waschbecken
- Bodenbeläge: Laminat (im OG aus 2014, im DG aus 2022), Fliesen und Vinyl
- weiße Innentüren mit Stahlzagen im EG + OG, Innentüren in Holzoptik im DG
- Sprechanlage ohne Türöffner
- Verlegung von Glasfaser wurde beauftragt
- Terrasse im EG in Südausrichtung
- überdachter Balkon im OG in Südausrichtung
- Schuppen
- Garage, Stellplätze im Freien
- EG: Abstell-/Waschraum mit weiteren Waschmaschinenanschlüssen und Platz für Fahrräder und Stauraum
Ein Energieausweis zum Haus liegt vor (Energieeffizienzklasse D) und kann bei Interesse gerne eingesehen werden.
Die Einbauküchen im EG (ca. 15 Jahre alt) und im OG (Markenküche ca. 8 Jahre alt) sind bereits im Kaufpreis enthalten.
Folgende Modernisierungsmaßnahmen wurden in den letzten Jahren durchgeführt:
- 2013: Wärmedämmung + Klinker erneuert
- 2013: Fenster EG + OG erneuert
- 2013: Heizung erneuert
- 2021: Installation von 4 Dachflächenfenstern mit Markise und Sonnenschutzrollo
- 2021: Sanierung der Dachfläche mit 14 cm Zwischensparrendämmung
Haben wir Ihr Interesse geweckt? Dann fordern Sie doch einfach unverbindlich das Exposé mit der vollständigen Adresse per Email an. So können Sie sich schon vorab ein Bild der genauen Lage machen.
Besichtigungstermine werden ausschließlich an Interessenten mit entsprechender Bonität bzw. nachweisbar geklärter Finanzierung vergeben. Außerdem sollte vorweg eine Außenbesichtigung des Umfeldes durch den Interessenten erfolgt sein. All dies trägt dazu bei, wichtige Punkte im Vorfeld zu klären.
Detaillierte Auskünfte zum Objekt erteilt Ihnen anschließend gerne unsere zuständige Mitarbeiterin, Frau Angela Nagel.
Unsere Objekt-Nr.: 3353
3,57 % Käuferprovision inkl. gesetzlicher MwSt.
3,57 % Verkäuferprovision inkl. gesetzlicher MwSt.
Lage
Die Gemeinde Morsbach befindet sich am südöstlichsten Zipfel des Bergischen Landes und grenzt an das Sauerland, Siegerland und den Westerwald. In ländlicher und ruhiger Umgebung befindet sich der Ortsteil Mosbach-Lichtenberg. Im 7 km entfernt gelegenen Zentrum von Morsbach finden Sie Einzelhandelsgeschäfte, Supermärkte, Banken, Ärzte, und Apotheken sowie Schulen und Kindergärten. Zudem sind die Orte Waldbröl, Rosbach und Wissen ebenfalls in wenigen Autominuten zu erreichen. Im Ort selber befinden sich eine katholische Kirche, ein Bäcker, ein Kindergarten sowie eine Grundschule.
Für Jung und Alt bieten sich vielfältige Möglichkeiten, die Freizeit sinnvoll und erholsam zu gestalten. Ein ca. 150 km langes Wanderwegenetz mit zahlreichen Ruhebänken führt durch die reizvolle Landschaft. Außer Wandern bieten sich Joggen, Nordic Walking und Radfahren zur Erholung an. Hier können Sie die Natur intensiv erleben und genießen!
Die Gemeinde wird „eingerahmt“ von den Autobahnen A3 Frankfurt-Düsseldorf (ca. 40 Fahrminuten), A4 Köln-Olpe (ca. 20 Fahrminuten) und A 45 Frankfurt-Dortmund (ca. 20 Fahrminuten, Sauerlandlinie). An der Bahnlinie Köln-Siegen-Frankfurt kann man im 17 km entfernten Wissen den Zug erreichen. Die Kreisstadt Gummersbach ist mit dem PKW in einer halben Stunde und Köln in ca. 50 Minuten zu erreichen.
Sonstige Angaben
Sie möchten Ihre Immobilie verkaufen?
Wir bringen Sie mit unserem Rundum-Sorglos-Service schnell und sicher zum Erfolg!
Seit 1991 steht unser Familienunternehmen Eigentümern vertrauensvoll beim Verkauf ihrer Immobilie zur Seite. Unsere Stärken sind eine exzellente Marktkenntnis, umfangreicher Service und ausgezeichnete Kontakte. Wir gehen auf jeden Kundenwunsch genau ein, nehmen uns Zeit und beraten individuell.
Unser Ziel ist es, Ihre Immobilie in kurzer Zeit zu einem attraktiven Preis zu verkaufen und Sie dabei vollumfänglich zu entlasten.
Sie wollen mehr erfahren? Nehmen Sie einfach unverbindlich Kontakt mit uns auf.
--------------------------------------------------------
„Wieviel Immobilie kann ich mir leisten?"
Damit der Kauf Ihrer Wunschimmobilie nicht an der Finanzierung scheitert, nutzen Sie gerne – auch schon VOR der Besichtigung – die unabhängige Finanzierungsberatung unseres Partners Herrn Thomas Voß von der Hüttig & Rompf AG. Er kennt die Bankenlandschaft seit über 20 Jahren wie seine Westentasche und ist bestens mit den internen Richtlinien, Prüfprozessen und Zinskonditionen der hiesigen Banken vertraut. Von ihm erhalten Sie taggleich ein erstes unverbindliches Orientierungsangebot und auf Wunsch innerhalb kurzer Zeit eine aussagefähige Bonitätsbescheinigung oder sogar ein bankbestätigtes Finanzierungsangebot. Selbstverständlich kostenfrei und ohne jedwede Verpflichtung für Sie.
Sie erreichen Herrn Voß telefonisch und per Mail unter 0160 9797 5454 bzw. tvoss@huettig-rompf.de. Gerne stellen wir den Kontakt auch für Sie her.
Grundriss
3353 Grundriss EG
>
>
3353 Grundriss OG
>
>
3353 Grundriss DG
>
>
Adresse
51597 Morsbach
Interessante Orte
Preis- und Lageinformationen
Preistrend für Bestandsimmobilien in Morsbach