Nutzen Sie die Möglichkeit mit dem Förderprogramm: Klimafreundlicher Neubau, der staatlichen Förderbank KFW Ihre Wohneinheit zu finanzieren.
Tiny House in Modulbauweise – bezugsfertig zum vereinbarten Stichtag
→ Bauweise: Modernes Tiny House in flexibler Modulbauweise, Holzrahmen, wird bezugsfertig und schlüsselfertig übergeben.
→ Erweiterung und Gestaltung: Leicht erweiterbar und individuell gestaltbar (innerhalb des geltenden Bebauungsplans). Durch modularen Aufbau lassen sich Grundriss,
Größe und Ausstattung nach Bedarf anpassen.
→ Energieeffizienz: KfW-40 Standard – hohe Energieeinsparung dank moderner Dämmung, effizienter Haustechnik und regenerativer Optimierung.
→ Zielgruppe: Ideal für Menschen, die verkleinern, energieeffizient wohnen oder Ersparnisse sinnvoll nutzen möchten.
→ Lage: Ruhige Wohnlage der Gemeinde Schlangen, unweit von Grünflächen und guter Infrastruktur.
→ Neubaugebiet: Heinz-Wiemann-Weg – modernes, zukunftsfähiges Umfeld in einem neuen Wohngebiet.
→ Ausstattung (Beispiel, je nach konkretem Angebot anpassbar): Offener Wohn-/Küchenbereich, 1 Schlafzimmer, 1 Büro / Kinderzimmer, modernes Badezimmer, bodentiefe
Fenster mit Raffstores möglich
→ effiziente Heiz- und Warmwassersysteme / Fußbodenheizung
→ Barrierefreiheit: Kompatibel mit altersgerechter Gestaltung; nach Bedarf auch barrierearm realisierbar
→ Komfort: Schneller Bezugstermin, hochwertige Innenausstattung, wetterbeständige Materialien
→ Umwelt: Nachhaltige Bauweise, geringe Betriebskosten dank KfW-40-Standard
→ voll erschlossenes Grundstück (305m²)
→ neue Zuwegung: die Zufahrt wird geschottert angelegt. Endausbau muss bauseits erfolgen.
→ Baustelleneinrichtung inkl. Gerüst, Kran, Baustrom, Wasser und Bautoilette
→ Erdarbeiten inkl. Zu- und Ableitungen (Dichtigkeitsprüfung)
→ Architekten-, Planungsleistungen und Statik
→ Holzrahmenbau in dem energetischen Standard KFW 40
→ ALU Haustüranlage
→ Kunststofffenster
→ Fensterbänke
→ Fassaden Außenputz und Lärche Verblendungen
→ Anschlusskosten für Wasser, Abwasser, Strom und Telekommunikation
Bezugsfertiger Neubau mit Grundstück
33189 Schlangen
Die vollständige Adresse der Immobilie erhalten Sie vom Anbieter.
Auf Karte anzeigen
Die vollständige Adresse der Immobilie erhalten Sie vom Anbieter.
Finanzierungszertifikat
In nur zwei Minuten zu Ihrem persönlichen Finanzierungszertifkat.
Infos
| Haustyp | Bungalow |
|---|---|
| Etagenzahl | 0 |
| Wohnfläche ca. | 46 m2 |
| Grundstücksfläche | 305 m2 |
| Bezugsfrei ab | nach Absprache |
| Zimmer | 3 |
| Schlafzimmer | 2 |
| Badezimmer | 1 |
| Anzahl Garage/Stellplatz | 1 |
Kosten
| Kaufpreis |
268.500 € |
|---|---|
| Provision |
Provisionsfrei für die Käuferpartei |
Finanzierungsrechner:
Kaufpreis:
600.000 €
Eigenkapital:
600.000 €
Monatliche Rate
0 €
Effektiver Jahreszins
0 %
Sollzinsbindung
10 Jahre
Bausubstanz & Energieausweis
| Bauphase | Haus in Planung (projektiert) |
|---|---|
| Objektzustand | Erstbezug |
| Qualität der Austattung | Gehoben |
| Energieausweis | laut Gesetz nicht erforderlich |
Beschreibung des Objekts
Lage
Lagebeschreibung:
Die Immobilie befindet sich in der idyllischen Gemeinde Schlangen im Herzen des Kreises Lippe. Die Gemeinde zeichnet sich durch ihre naturnahe Umgebung, eine hohe Lebensqualität und eine ausgezeichnete Infrastruktur aus. Die Gemeinde liegt im Nordosten von Nordrhein-Westfalen rund 16 Kilometer südlich von Detmold am Rande der Senne und dehnt sich am Südhang des Teutoburger Waldes hinauf bis zu den Höhen des Gebirgszuges aus.
Lagevorteile:
Naturnähe und Erholung:
Die Immobilie liegt in unmittelbarer Nähe zu malerischen Landschaften und bietet den Bewohnern die Möglichkeit zu erholsamen Spaziergängen oder Fahrradtouren in der umliegenden Natur.
Gute Verkehrsanbindung:
Die Anbindung an das Verkehrsnetz ist hervorragend. Die Autobahn A33 und A2 sind schnell erreichbar, was eine bequeme Anfahrt in die umliegenden Städte wie Bielefeld und Paderborn ermöglicht.
Infrastruktur:
Die Gemeinde Schlangen verfügt über eine ausgezeichnete Infrastruktur mit Einkaufsmöglichkeiten, Grund- und weiterführende Schulen, Kindergärten und medizinischer Versorgung in unmittelbarer Nähe.
Familienfreundlichkeit:
Schlangen bietet eine familienfreundliche Umgebung mit Spielplätzen, Sporteinrichtungen und Bildungsangeboten für Kinder und Jugendliche.
Kulturelles Angebot:
Die Gemeinde pflegt ein lebendiges kulturelles Leben mit Veranstaltungen, Festen und kulturellen Einrichtungen, die zur Vielfalt des Gemeinschaftslebens beitragen.
Zusammenfassung:
Die Immobilie profitiert von der harmonischen Verbindung von Natur, guter Verkehrsanbindung und einer ausgezeichneten Infrastruktur. Die Gemeinde Schlangen bietet eine ideale Umgebung für Familien, Naturliebhaber und Menschen, die das ruhige Wohnen in der Nähe von städtischen Annehmlichkeiten schätzen.
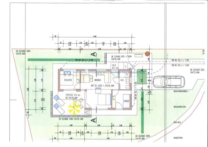
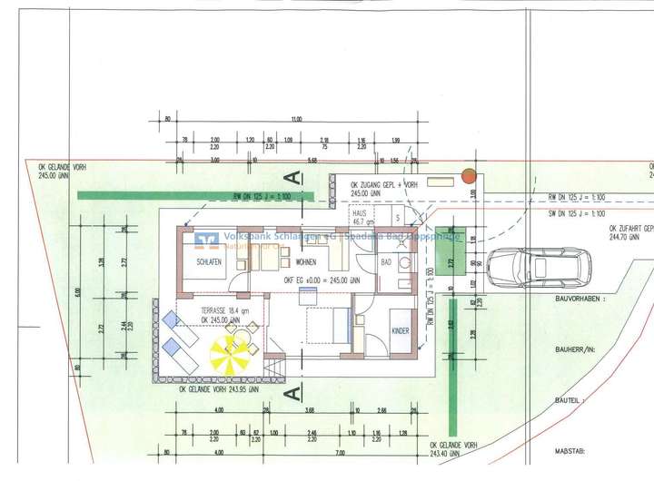
Grundriss
Modulbauhaus Grundriss Beispie
>
>
Adresse
33189 Schlangen
Interessante Orte
Preis- und Lageinformationen
Preistrend für Bestandsimmobilien in Schlangen