* 4 Einfamilienhäuser mit einer genehmigter Planung und einer Wohnfläche von ca. 145 m² mit Erdgeschoß, Obergeschoß und Dachgeschoß
* Sie kaufen somit ein Grundstück mit erteilter Baugenehmigung!!!
Die Grundstücke können real geteilt werden!!!
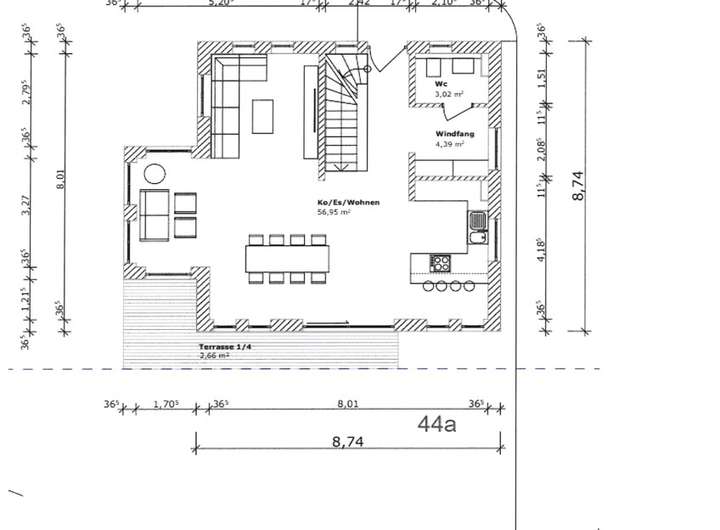
Das auf dem Grundstück zu errichtende Einfamilienhaus kann mit den Maßen 8,74 Meter x 8,74 Meter gebaut werden. Es kann ein Erdgeschoß, ein Obergeschoß und ein Dachgeschoß erstellt werden. Eine Planung mit Ansicht des Hauses, Schnitt, Grundrisse sowie den entsprechen Maßen und Größen erstellen wir.
Die Doppelhaushälfte kann mit den Maßen 7,50 Meter x 10,00 Meter gebaut werden. Es kann ebenfalls ein Erdgeschoß, ein Obergeschoß und ein Dachgeschoß erstellt werden. Eine Planung mit Ansicht des Hauses, Schnitt, Grundrisse sowie den entsprechen Maßen und Größen erstellen wir ebenfalls.
Willkommen in München, dem pulsierenden Herzen Bayerns, wo dieses besondere Bauträgerprojekt auf Sie wartet! Mit einer beeindruckenden Grundstücksgröße von ca. 1.291 m² bietet es die seltene Möglichkeit, vier Einfamilienhäuser gemäß §34 BauGB zu realisieren und ist somit die perfekte Investition für Entwickler und Investoren.
Dieses Wohnbaugrundstück präsentiert sich als eine einmalige Gelegenheit in einem der begehrtesten Märkte Deutschlands. Ob Sie ein modernes Reihenhaus-Ensemble planen oder individuelle Einfamilienhäuser erschaffen möchten, hier finden Sie den idealen Ort dafür.
***Bauträger aufgepasst: Grundstück für 4 Einfamilienhäuser in Untermenzing***
Theodor-Fischer-Str. 44 und 44A,
80999 München
Auf Karte anzeigen
Finanzierungszertifikat
In nur zwei Minuten zu Ihrem persönlichen Finanzierungszertifkat.
Infos
| Vermarktungsart | Kaufen |
|---|---|
| Grundstücksfläche | 1.291 m2 |
| Erschließung | Erschlossen |
| Empfohlene Nutzung | Einfamilienhaus |
| Bebaubar nach | wie Nachbarbebauung |
Kosten
| Miete pro Jahr |
2.500.000 € |
|---|---|
| Provision |
3,57 % inkl. ges. MwSt. Bitte beachten Sie, dass dieses Angebot nur für Sie persönlich und nicht zur Weitergabe an Dritte bestimmt ist. Die Provision inkl. gesetzl. MwSt. ist nach notarieller Beurkundung verdient und fällig. |
Finanzierungsrechner:
Kaufpreis:
600.000 €
Eigenkapital:
600.000 €
Monatliche Rate
0 €
Effektiver Jahreszins
0 %
Sollzinsbindung
10 Jahre
Beschreibung des Objekts
Lage
Das angebotene Grundstück befindet sich in einer ruhigen und attraktiven Wohngegend im Nordwesten von München, genauer gesagt in der Theodor-Fischer-Str. 44 und 44A, 80999 München. Diese Region ist bei Familien ebenso beliebt wie bei Paaren und Singles, die die Nähe zur Natur und gleichzeitig die Anbindung an die Stadt schätzen. Gelegen in einem etablierten Wohnviertel, umgeben von gepflegten Einfamilienhäusern und kleinen Wohnanlagen, bietet die Lage eine hervorragende Infrastruktur.
In der unmittelbaren Umgebung finden sich zahlreiche Annehmlichkeiten des täglichen Bedarfs. Einkaufsmöglichkeiten, Schulen und Kindergärten sind gut erreichbar. Darüber hinaus laden Grünflächen und Parks in der Nähe zu Freizeitaktivitäten und Erholung ein. Verkehrstechnisch ist das Gebiet bestens angebunden, mit schnellen Verbindungen zur Münchner Innenstadt sowohl mit dem Auto als auch mit öffentlichen Verkehrsmitteln.
Insgesamt eine ideale Lage für alle, die stadtnah wohnen und doch die Ruhe einer gewachsenen Nachbarschaft genießen möchten.
Sonstige Angaben
Für die Beantwortung Ihrer Fragen stehe ich Ihnen gerne in einem persönlichen Gespräch zur Verfügung.
Sie erreichen mich im Büro:
+49 (0)89-550 550
oder mobil unter:
0151 / 12 49 22 28
Ihr Thomas Pilsl
Münchener Kindl Immobilien GmbH
Sie wollen Ihre Immobilie verkaufen / neu vermieten? Nutzen Sie unsere kostenlose Beratung und Wertermittlung / Marktwertberechnung. Ich freue mich auf Ihren Anruf!
Widerrufsrecht: Mit der Novellierung des Verbraucherrechts im Juni 2014 sind auch Maklerunternehmen verpflichtet, Kunden über ihre gesetzlichen Widerrufsrechte zu informieren. Damit stärkt der Gesetzgeber die Rechte der Verbraucher. Wir stellen uns diesem Prozess, um Sie als Kunden bestmöglich zu informieren. Der Nachweis, dass der Kunde über sein Widerrufsrecht informiert wurde, obliegt dabei den Unternehmen. Wir sind bemüht, diesen Prozess für Sie als Kunden so komfortabel und transparent wie möglich zu gestalten. Sie sehen, dass wir unsere Kunden nicht mit zusätzlichen Modalitäten ärgern möchten, sondern aktiv informieren.
Selbstverständlich verwenden wir Ihre Daten ausschließlich zum Zweck der Kontaktaufnahme mit Ihnen bezüglich unserer Projekte.
Ihr Einverständnis können Sie jederzeit widerrufen. Alle Angaben sind ohne Gewähr und basieren ausschließlich auf Informationen, die uns von unseren Auftraggebern zur Verfügung gestellt wurden. Wir übernehmen keine Gewähr für die Vollständigkeit, Richtigkeit und Aktualität dieser Angaben. Die Grunderwerbssteuer, Notar- und Grundbuchkosten sind vom Käufer zu tragen. Bilder und Illustrationen dienen ausschließlich der besseren Darstellung und erheben keinen Anspruch auf Richtigkeit.
Irrtum und Zwischenverkauf vorbehalten.
Grundriss
EG
>
>
OG
>
>
DG
>
>
UG
>
>