Dieses Einfamilienhaus aus dem Jahre 1956 bietet eine seltene Gelegenheit für Käufer, die ein Objekt suchen, das entweder umfassend saniert oder in gleichwertiger Form neu errichtet werden kann.
Das Gebäude verfügt über fünf Zimmer, die auf zwei getrennte Einheiten aufgeteilt sind und somit die Nutzung als Mehrgenerationenhaus oder die Vermietung von separaten Wohnungen ermöglichen.
Der aktuelle Zustand des Hauses ist stark sanierungsbedürftig und erfordert umfangreiche Modernisierungsmaßnahmen – für Liebhaber von Altbauten und handwerklich versierte Käufer eröffnet sich hier jedoch ein spannendes Projekt. Alternativ kann ein Neubau in gleichwertiger Größe und Nutzung entstehen, sofern die Genehmigungen durch die zuständigen Behörden erteilt werden.
Das Haus liegt im ausgewiesenen Außenbereich und unterliegt damit bestimmten baurechtlichen Vorgaben. Gleichzeitig gilt es, bei einer Sanierung oder einem möglichen Wiederaufbau die Abstimmung mit der Stadt und dem zuständigen Landesamt einzubeziehen.
Mit Kreativität, Engagement und einem klaren Konzept lässt sich hier ein wunderschönes Zuhause schaffen – sei es durch die Wiederbelebung des bestehenden Gebäudes oder durch die Errichtung eines gleichwertigen Neubaus.
Dieses Angebot richtet sich an alle, die das Potenzial in einer besonderen Immobilie erkennen und bereit sind, einen Teil ihrer eigenen Geschichte in diese Mauern oder auf diesem Grundstück zu schreiben.
Zentral gelegenes Einfamilienhaus in Hanglage mit Sanierungsbedarf
83349 Palling
Die vollständige Adresse der Immobilie erhalten Sie vom Anbieter.
Auf Karte anzeigen
Die vollständige Adresse der Immobilie erhalten Sie vom Anbieter.
Finanzierungszertifikat
In nur zwei Minuten zu Ihrem persönlichen Finanzierungszertifkat.
Infos
| Haustyp | Einfamilienhaus |
|---|---|
| Etagenzahl | 2 |
| Wohnfläche ca. | 174 m2 |
| Grundstücksfläche | 411 m2 |
| Zimmer | 5 |
| Badezimmer | 2 |
| Garage/Stellplatz | Garage |
| Anzahl Garage/Stellplatz | 2 |
Kosten
| Kaufpreis |
250.000 € |
|---|---|
| Provision |
Die Käuferprovision beträgt 3,57 % des Kaufpreises inkl. 19% MwSt. |
Finanzierungsrechner:
Kaufpreis:
600.000 €
Eigenkapital:
600.000 €
Monatliche Rate
0 €
Effektiver Jahreszins
0 %
Sollzinsbindung
10 Jahre
Bausubstanz & Energieausweis
| Baujahr | 1956 |
|---|---|
| Objektzustand | Renovierungsbedürftig |
| Heizungsart | Zentralheizung |
| Wesentliche Energieträger | Öl |
| Energieausweis | liegt vor |
| Energieausweistyp | Bedarfsausweis |
| Energieverbrauchskennwert | 471,2 kWh/(m²*a) |
| Energieeffizienzklasse | H |
471,2
kWh/(m²*a)
Energieeffizienzklasse H
- A+
- A
- B
- C
- D
- E
- F
- G
- H
- 0
- 25
- 50
- 75
- 100
- 125
- 150
- 175
- 200
- 225
- >250
Beschreibung des Objekts
Lage
Die Stadt Palling befindet sich im nördlichen Landkreis Traunstein in Bayern und hat ca. 2.000–3.000 Einwohner.
Das Objekt befindet sich in einer sehr zentralen und familienfreundlichen Lage. Der Ortskern von Palling ist in wenigen Minuten zu Fuß erreichbar, in dem sich alle wichtigen Nahversorgungen wie Bäcker, Metzger, Supermarkt, Apotheke und Post befinden. Die Grundschule sowie beide Kindergärten befinden sich ebenfalls im Ortskern, weiterführende Schulen erreicht man komfortabel in benachbarten Orten
Direkte Freizeitmöglichkeiten sowie Naturerholung sind ebenfalls unmittelbar verfügbar: Wander- und Radwege sowie Seen in der Umgebung laden zu Aktivitäten im Grünen ein.
Der Ort liegt nahe der Autobahnen A8 ( München–Salzburg) und A93 (Innsbruck–Regensburg), mit regionalen Verbindungen ins Chiemgau-Gebiet.
Sonstige Angaben
CENTURY 21 Golden time Immobilien übernimmt für die Angaben Dritter keinerlei Gewährleistung oder Haftung. Kommt es aufgrund unserer Tätigkeit zum Abschluss eines Vertrages, haben wir Anspruch auf Zahlung der Provision. Wir weisen auf unsere Allgemeinen Geschäftsbedingungen hin. Dieses Exposé ist eine Vorabinformation, als Rechtsgrundlage gilt allein der notariell abgeschlossene Kaufvertrag. Selbstverständlich halten wir für Sie alle erforderlichen Objektunterlagen und Grundrisspläne bereit. Gerne stellen wir Ihnen das Objekt im Zuge einer Besichtigung vor. Die 3D Tour erhalten Sie auf Anfrage!
Das Geldwäschegesetz (GWG) verpflichtet uns, mit Erstkontaktaufnahme Ihre vollständigen Kontaktdaten aufzunehmen. Daher können wir nur Anfragen bearbeiten, die Ihren vollständigen Namen, Ihre Anschrift und Ihre Telefonnummer enthalten. Hierfür bitten wir höflich um Ihr Verständnis. Nach Erhalt Ihrer schriftlichen Anfrage, setzen wir uns kurzfristig mit Ihnen zur Terminvereinbarung in Verbindung.
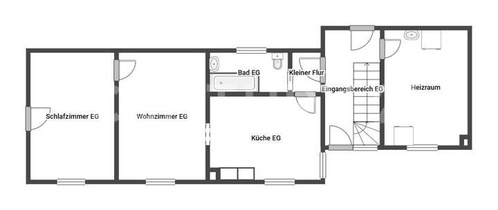
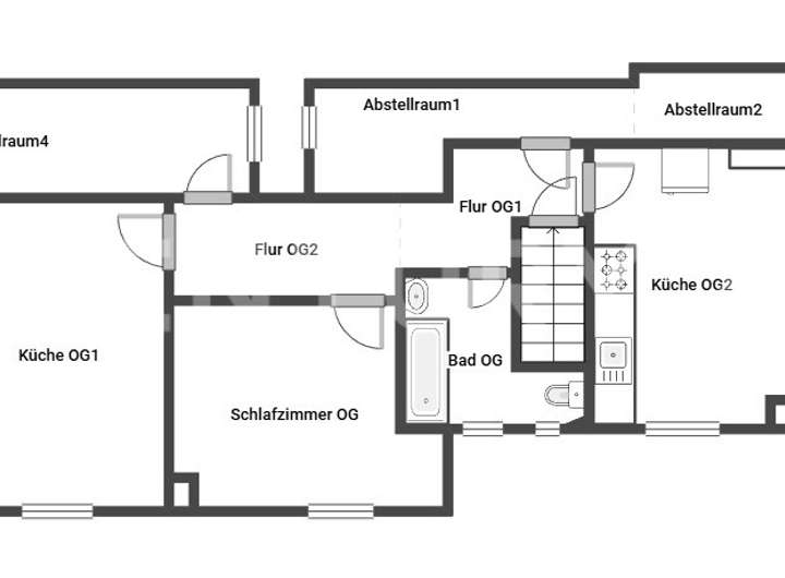
Grundriss
Grundriss Erdgeschoss
>
>
Grundriss Obergeschoss
>
>
Adresse
83349 Palling
Interessante Orte
Preis- und Lageinformationen
Preistrend für Bestandsimmobilien in Palling