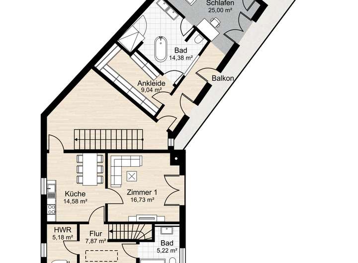
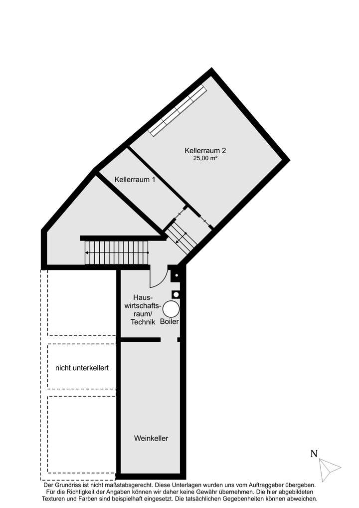
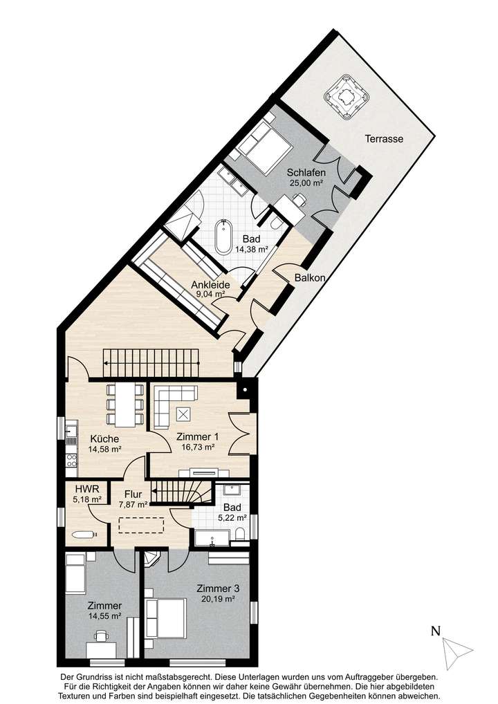
Dieses außergewöhnliche Anwesen vereint historischen Charme mit modernstem Wohnkomfort: Ein altes Bauernhaus mit großer Scheune aus dem Jahr 1890 bietet heute, nach einer umfassenden Kernsanierung und Erweiterung in den Jahren 2018/2019, ein stilvolles, energieeffizientes Zuhause auf höchstem Niveau. Auf einem ca. 849 m² großen Grundstück gelegen, verfügt das Haus über rund 353 m² Wohnfläche, verteilt auf zwei Ebenen – perfekt für Familien, Freiberufler oder Selbständige, die großzügiges Wohnen mit einem besonderen Ambiente verbinden möchten. Durch den Umbau sowie dem luxuriösen Anbau ist ein imposantes Anwesen entstanden, dessen Großzügigkeit von außen nicht zu erkennen ist. „Altbestand“ - beim Betreten offenbart sich der einzigartige Charakter dieses Hauses: eine geschmackvolle Kombination aus Natursteinfliesen- und Landhausdielen in Eiche schaffen ein harmonisches Wohngefühl. Die Küche mit maßgefertigter Einbauküche, Kochinsel und angrenzender Speisekammer ist ebenso funktional wie stilvoll. Im Wohnzimmer erzeugt ein effizienter Designerkamin genau die Atmosphäre, die man in einem so gemütlichen Haus erwartet. Im Obergeschoss befinden sich drei helle Schlafzimmer, eine weitere Küche sowie ein großes Komfortbad. Eine offene Eingangshalle mit ca. 50m² und Galerie bildet den bequemen Übergang auf zwei Ebenen zum „Neubau“. Jede Ebene ist für sich ein Highlight – Im Erdgeschoss der ca. 50m² große Hobby-, Empfangs- oder Seminarraum mit angrenzendem privatem Fitnessstudio und Sauna. - Im Obergeschoss der Masterbedroom mit Luxusbad en suite und Ankleidezimmer – ein privater Rückzugsort mit exklusiver Ausstattung, der durch einen Jacuzzi auf der Terrasse abgerundet wird. Beim Aufzählen der Highlights darf der Weinkeller im alten Gewölbe des Hauses nicht fehlen. Der liebevoll angelegte Garten bietet ein hohes Maß an Privatsphäre. Ein rundherum geschlossener Innenhof, mehrere Terrassen, eine Außendusche machen den Außenbereich zu einer echten Wohlfühloase – perfekt zum Entspannen oder für gesellige Stunden im Freien. Der edle Baumbestand und die hochwertige Gartengestaltung unterstreichen das harmonische Gesamtbild. Technisch präsentiert sich die Immobilie auf modernstem Stand: eine Gaszentralheizung Solarthermie, eine PV-Anlage, Dreifach-verglasung sowie ein KNX-basiertes Smart-Home-System sorgen für Energieeffizienz, Sicherheit und Komfort. Sammler von „großem“ Spielzeug wird das einmalige Raumangebot der alten, sanierten Scheune und der Doppelgarage begeistern. Die Kombination aus authentischer Architektur, luxuriöser Ausstattung und durchdachter Modernisierung macht dieses Anwesen zu einem echten Unikat – ein Zuhause mit Charakter und höchstem Wohnkomfort.
Romantisches Schmuckstück im Herzen von Viernheim
68519 Viernheim
Die vollständige Adresse der Immobilie erhalten Sie vom Anbieter.
Auf Karte anzeigen
Die vollständige Adresse der Immobilie erhalten Sie vom Anbieter.
Finanzierungszertifikat
In nur zwei Minuten zu Ihrem persönlichen Finanzierungszertifkat.
Infos
| Haustyp | Einfamilienhaus |
|---|---|
| Etagenzahl | 2 |
| Wohnfläche ca. | 353 m2 |
| Nutzfläche | 289 m2 |
| Grundstücksfläche | 849 m2 |
| Zimmer | 8 |
| Schlafzimmer | 4 |
| Badezimmer | 3 |
| Garage/Stellplatz | Garage |
| Anzahl Garage/Stellplatz | 4 |
Kosten
| Kaufpreis |
1.980.000 € |
|---|---|
| Provision |
3,57 % Siehe Sonstiges! |
Finanzierungsrechner:
Kaufpreis:
600.000 €
Eigenkapital:
600.000 €
Monatliche Rate
0 €
Effektiver Jahreszins
0 %
Sollzinsbindung
10 Jahre
Bausubstanz & Energieausweis
| Baujahr | 2018 |
|---|---|
| Letzte Sanierung | 2020 |
| Objektzustand | Neuwertig |
| Qualität der Austattung | Luxus |
| Heizungsart | Fußbodenheizung |
| Wesentliche Energieträger | Gas |
| Energieausweis | liegt vor |
| Energieausweistyp | Verbrauchsausweis |
| Energieverbrauchskennwert | 79,6 kWh/(m²*a) |
| Energieeffizienzklasse | C |
79,6
kWh/(m²*a)
Energieeffizienzklasse C
- A+
- A
- B
- C
- D
- E
- F
- G
- H
- 0
- 25
- 50
- 75
- 100
- 125
- 150
- 175
- 200
- 225
- >250
Beschreibung des Objekts
Lage
Das traumhafte Ensemble liegt im südhessischen Landkreis Bergstraße, mitten in der Metropolregion Rhein-Neckar. Die Stadt mit rund 34.000 Einwohnern überzeugt durch gute Infrastruktur, naturnahe Umgebung und optimale Verkehrsanbindung – ideal für Familien und Pendler. Die Autobahnen A6, A659 und A5 sind schnell erreichbar und verbinden Viernheim mit Mannheim, Heidelberg, Frankfurt und Darmstadt. Auch der ÖPNV ist hervorragend: Die OEG-Straßenbahnlinie 5 fährt direkt nach Mannheim, Weinheim und Heidelberg, ergänzt durch Buslinien innerhalb der Stadt und in die Region.
Der Hauptbahnhof Mannheim als ICE-Knotenpunkt ist in ca. 15 Minuten erreichbar. Mehrere Kitas und Grundschulen liegen in der Nähe, weiterführende Schulen wie das Albertus-Magnus-Gymnasium oder die MIS International School sind ebenfalls vorhanden. Für Freizeit sorgen Hallen- und Waldschwimmbad, zahlreiche Sportvereine und der Viernheimer Wald mit Rad- und Wanderwegen. Ein Highlight ist das Kinopolis Viernheim, eines der größten Multiplex- Kinos der Region. Für Shopping und Gastronomie bietet das Rhein-Neckar-Zentrum eine große Auswahl direkt vor Ort.
Sonstige Angaben
Der Makler-Vertrag mit uns und/oder unserem Beauftragten kommt durch die Bestätigung der Inanspruchnahme unserer Maklertätigkeit in Textform zustande, wie z.B. insbesondere die Unterschrift des Suchkundenvertrages und/oder des Objekt-Exposés. Die Höhe der Courtage richtet sich nach den ab dem 23.12.2020 in Kraft getretenen gesetzlichen Regelungen zur Teilung der Maklercourtage. Hiernach wird die Courtage regelmäßig für beide Parteien (Eigentümer und Käufer) jeweils in Höhe von 3,00 % zuzüglich Umsatzsteuer in jeweils geltender Höhe also derzeit insgesamt 3,57% des Kaufpreises einschließlich Umsatzsteuer bei notariellem Vertragsabschluss verdient und fällig. Grunderwerbssteuer, Notar- und Gerichtskosten trägt der Käufer.
Weitere Dokumente
DruckexposeGrundriss
>
>
>
>
Adresse
68519 Viernheim
Interessante Orte
Preis- und Lageinformationen
Preistrend für Bestandsimmobilien in Viernheim