Wir freuen uns, Ihnen dieses repräsentative und individuell geplante Architektenhaus anbieten zu können.
Dieses schöne, freistehende Einfamilienhaus mit Einliegerwohnung wurde 1980 in solider und hochwertiger Bauweise errichtet. Es befindet sich im Süden des Ratinger Stadtteils Mitte, in einer sehr begehrten und stark nachgefragten Wohnlage, auf einem optimal ausgerichteten Grundstück (Süd-West-Lage) mit einer Fläche von 644 m². Der liebevoll angelegte, gepflegte und alteingewachsene Garten ist entlang der Grundstücksgrenzen nahezu vollständig mit Hecken, Bäumen und Sträuchern eingefasst und bietet dadurch ein hohes Maß an Privatsphäre.
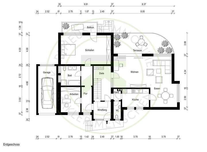
Das gesamte Gebäude ist großzügig gestaltet – mit zahlreichen Fenstern, die für reichlich Tageslicht sorgen. Es teilt sich in eine 5-Zimmer-Wohneinheit mit ca. 168 m² Wohnfläche (inkl. Terrasse), verteilt auf Erd- und Dachgeschoss, sowie eine 2-Zimmer-Einliegerwohnung mit ca. 52 m² Wohnfläche (inkl. Balkon). Eine Nutzung als klassisches Einfamilienhaus ist problemlos und komfortabel möglich. Zudem ist das Haus voll unterkellert und bietet ca. 93 m² Nutzfläche. Die Nutz- und Lagerflächen im Spitzboden (teilweise Kriechhöhe, teilweise Stehhöhe bis ca. 1,80 m) betragen rund 42 m². Zusammen mit den anrechenbaren Wohnflächen im Kellergeschoss (ca. 15 m²) ergibt sich eine beachtliche Wohn- und Nutzfläche von ca. 371 m². Die Nutzfläche der Garage beträgt zusätzliche ca. 16 m². Das gesamte Erd- und Dachgeschoss sowie Teilbereiche des Kellers werden über eine Fußbodenheizung beheizt.
Das Wohnzimmer beeindruckt mit einer großzügigen Galerie und öffnet sich über bodentiefe Fensterfronten direkt zur überdachten Terrasse. Der entstehende offene Luftraum verleiht dem Raum eine besonders ansprechende Wirkung mit einer Raumhöhe von über fünf Metern bis unter den Dachfirst – hell, offen und ein loftartiges Raumgefühl. Zudem besteht die Möglichkeit, im Wohnzimmer einen Kamin installieren zu lassen.
Das Haus überzeugt durch komfortabel dimensionierte Flure und Dielen, die viel Bewegungsfreiheit bieten. Auf allen drei Etagen befinden sich vollwertig nutzbare Tageslichtbäder, im Erdgeschoss zusätzlich ein Gäste-WC. Die Schlaf-, Kinder- und Arbeitszimmer haben angenehme Raumgrößen und teilweise bodentiefe Fenster. Durch das Galerie- und Durchgangszimmer mit kreativ genutzten Ecken und Nischen entsteht ein einzigartiger, exklusiver Grundriss und ein innovatives Raumkonzept.
Auch das Kellergeschoss verdient besondere Erwähnung: Neben klassischen Keller-, Heizungs- und Lagerflächen befindet sich hier ein wohnlich nutzbarer Raum mit angrenzendem Duschbad und Fenstern, die für natürliche Belichtung sorgen. Dieser Bereich wurde offiziell als Wohnfläche genehmigt und kann somit ideal als Gäste-, Kinderzimmer oder zusätzlicher Einliegerbereich genutzt werden. Die Keller-Außenwände sind hochwertig aus wasserdichtem, bewehrten Beton ausgeführt. Eine umlaufende Ringdrainage schützt den Baukörper zuverlässig vor Sicker- und Grundwasser.
Zum Haus gehört zudem eine Einzelgarage (im Kaufpreis enthalten) mit praktischem, doppeltem Garagentor zum Garten. In der Zufahrt zur Garage kann ein weiterer PKW bequem abgestellt werden.
Der hübsche kleine Gartenteich und der Freisitz mit offener Pergola runden dieses attraktive Angebot ab.
Hinweis zur Besichtigung:
Bevor Sie einen Termin vor Ort vereinbaren, nutzen Sie bitte die Möglichkeit einer virtuellen Besichtigung. Senden Sie uns einfach Ihre Anfrage mit vollständigen Kontaktdaten, und Sie erhalten umgehend eine E-Mail mit ersten Informationen zum Objekt sowie den Link zur 360°-Besichtigung. So können Sie sich bereits vorab einen Eindruck verschaffen und prüfen, ob das Haus Ihren Vorstellungen entspricht.
Freistehendes Architektenhaus mit Einliegerwohnung in Bestlage vom Ratinger Süden
40878 Ratingen
Die vollständige Adresse der Immobilie erhalten Sie vom Anbieter.
Auf Karte anzeigen
Die vollständige Adresse der Immobilie erhalten Sie vom Anbieter.
Finanzierungszertifikat
In nur zwei Minuten zu Ihrem persönlichen Finanzierungszertifkat.
Infos
| Haustyp | Einfamilienhaus |
|---|---|
| Wohnfläche ca. | 236 m2 |
| Nutzfläche | 135 m2 |
| Grundstücksfläche | 644 m2 |
| Bezugsfrei ab | sofort |
| Zimmer | 8 |
| Schlafzimmer | 5 |
| Badezimmer | 3 |
| Garage/Stellplatz | Garage |
| Anzahl Garage/Stellplatz | 2 |
Kosten
| Kaufpreis |
950.000 € |
|---|---|
| Provision |
2,975% inkl. 19% MwSt. vom Kaufpreis Alle Angaben nach bestem Wissen. Irrtum und Zwischenverkauf vorbehalten. Der Käufer zahlt im Erfolgsfall an die Firma Kartheuser Immobilien Ratingen GmbH eine Käufer-Maklerprovision in Höhe von 2,975% inkl. 19% MwSt.. Die Provision errechnet sich aus dem beurkundeten Kaufpreis. Dieses Exposé ist eine Vorinformation, als Rechtsgrundlage gilt allein der notariell abgeschlossene Kaufvertrag. |
Finanzierungsrechner:
Kaufpreis:
600.000 €
Eigenkapital:
600.000 €
Monatliche Rate
0 €
Effektiver Jahreszins
0 %
Sollzinsbindung
10 Jahre
Bausubstanz & Energieausweis
| Baujahr | 1981 |
|---|---|
| Heizungsart | Zentralheizung |
| Wesentliche Energieträger | Gas |
| Energieausweis | liegt vor |
| Energieausweistyp | Bedarfsausweis |
| Energieverbrauchskennwert | 161,2 kWh/(m²*a) |
| Energieeffizienzklasse | F |
161,2
kWh/(m²*a)
Energieeffizienzklasse F
- A+
- A
- B
- C
- D
- E
- F
- G
- H
- 0
- 25
- 50
- 75
- 100
- 125
- 150
- 175
- 200
- 225
- >250
Beschreibung des Objekts
Ausstattung
Das Haus befindet sich in einem gepflegten Zustand. Die Bauausführung, -substanz und die einzelnen Gewerke sind sehr hochwertig und trotzdem im Wesentlichen dem Baujahr zuzuordnen. Für notwendige Modernisierungen und Renovierungen sind daher weitere Investitionen einzuplanen.
Lage
Stadtnah, ruhig und familienfreundlich – ein Standort, der alle Wünsche erfüllt.
Dieses Zuhause liegt in einer der gefragtesten Lagen Ratingens und verbindet urbanen Komfort mit naturnaher Lebensqualität. Schulen, Kindergärten, Einkaufsmöglichkeiten und Freizeitangebote liegen hier in idealer Reichweite – perfekt für Familien, die Wert auf ein harmonisches Wohnumfeld legen.
Im begehrten Ratinger Süden genießen Sie ein Umfeld, das städtische Annehmlichkeiten und naturnahe Ruhe auf ideale Weise vereint.
Zwei gut besprochene Kindergärten, eine der besten Grundschulen im Stadtgebiet sowie das Carl-Friedrich-von-Weizsäcker-Gymnasium befinden sich in unmittelbarer Nähe – ebenso wie liebevoll gestaltete Spielplätze, die Kindern viel Raum zum Entdecken und Toben bieten.
Ein Bäcker und ein Rewe City sind zu Fuß erreichbar, ebenso mehrere beliebte Restaurants und Pizzerien. Der Ratinger Wochenmarkt im Zentrum mit seinen regionalen Spezialitäten lädt zum entspannten Einkaufen ein und ist wenigen Fahrminuten oder einem Spaziergang (2 km) entfernt.
Die Buslinie O15, nur 400m vom Haus entfernt, bietet eine hervorragende Anbindung an den S-Bahnhof Ratingen Ost, den ZOB Ratingen Mitte sowie die U72 in Richtung Düsseldorf. So bleiben Sie flexibel und bestens vernetzt – ob für den Weg zur Arbeit oder den Ausflug in die Stadt.
Selbst bei der zentralen Lage wohnen Sie hier ruhig und geschützt, in einer beschaulichen Wohnstraße ohne Durchgangsverkehr.
Wer es lieber naturnah mag, erreicht in wenigen Minuten das idyllische Schwarzbachtal – ideal für Spaziergänge, Radtouren oder sportliche Aktivitäten. Auch Reiterhöfe, Golfanlagen und der Segelflugplatz in Richtung Düsseldorf-Hubbelrath liegen in kurzer Distanz.
Trotz der vielfältigen Infrastruktur ist die Umgebung angenehm ruhig. Ein idealer Ort für Familien, die eine Kombination aus städtischem Komfort, naturnahem Wohnen und hoher Lebensqualität suchen.
Sonstige Angaben
Verlieren Sie keine Zeit und übermitteln Sie uns Ihre Anfrage unter Angabe Ihrer vollständigen Kontaktdaten (Name, Anschrift, Telefon).
Gerne stellen wir Ihnen bei weiterem Interesse unseren vollständigen Unterlagensatz zum Objekt zur Verfügung. Uns liegen zum Vermarktungsstart alle objektspezifischen Unterlagen vor. Dazu gehören Flurkarte, Grundbuchauszug, Energieausweis, Grundrisse, etc. Außerdem prüfen wir unsere Verkaufsobjekte grundsätzlich auf Baulasten, Altlasten, evtl. offene Erschließungskosten, fehlende baurechtliche Genehmigungen usw. Wir bieten unseren Kaufinteressenten somit eine fundierte Grundlage für eine sichere Entscheidung und ein gutes Gefühl beim Kauf.
Kleiner Tipp vorab: Besprechen Sie schon vor Vereinbarung eines Besichtigungstermins Ihre Finanzierungsmöglichkeiten mit Ihrer Hausbank. So erlangen Sie Sicherheit bei der Kaufplanung und verschaffen sich Handlungsschnelligkeit für die Kaufentscheidung. Viele Eigenheim-Träume sind schon zerplatzt, weil die Klärung der Finanzierung im Nachhinein zu viel Zeit in Anspruch genommen hat.
Sie denken darüber nach, Ihre Immobilie zu verkaufen? Wir beraten Sie gerne unverbindlich, ob sich ein Verkauf lohnt oder eine Vermietung mehr Vorteile bietet. Wichtig ist beim Verkauf in jedem Fall der richtige Preis. Wir bieten Ihnen daher eine kostenlose Marktwerteinschätzung Ihrer Immobilie durch unsere Gutachter an. Sprechen Sie uns einfach an. Wir freuen uns auf Ihre Kontaktaufnahme!
Diese Immobilie wird durch die Kartheuser Immobilien Ratingen GmbH, Lintorfer Straße 28, 40878 Ratingen angeboten.
Grundriss
Dachgeschoss
>
>
Erdgeschoss
>
>
Kellergeschoss
>
>
Adresse
40878 Ratingen
Interessante Orte
Preis- und Lageinformationen
Preistrend für Bestandsimmobilien in Ratingen