WELCOME HOME. WELCOME TO YOUR FUTURE.
Dein Zuhause ist mehr als vier Wände – es ist dein Rückzugsort, dein Investment, dein neuer Lebensabschnitt.
White&Black macht Wohneigentum bezahlbar, modern und flexibel.
Jetzt ist der richtige Moment, um anzukommen.
Haus trifft Grundstück: die ideale Kombination für Ihr neues Zuhause!
49688 Lastrup
Die vollständige Adresse der Immobilie erhalten Sie vom Anbieter.
Auf Karte anzeigen
Die vollständige Adresse der Immobilie erhalten Sie vom Anbieter.
Finanzierungszertifikat
In nur zwei Minuten zu Ihrem persönlichen Finanzierungszertifkat.
Infos
| Haustyp | Doppelhaushaelfte |
|---|---|
| Wohnfläche ca. | 141 m2 |
| Nutzfläche | 0 m2 |
| Grundstücksfläche | 600 m2 |
| Zimmer | 4 |
| Schlafzimmer | 3 |
| Badezimmer | 1 |
| Anzahl Garage/Stellplatz | 0 |
Kosten
| Kaufpreis |
241.352 € |
|---|---|
| Provision | Nein |
Finanzierungsrechner:
Kaufpreis:
600.000 €
Eigenkapital:
600.000 €
Monatliche Rate
0 €
Effektiver Jahreszins
0 %
Sollzinsbindung
10 Jahre
Bausubstanz & Energieausweis
| Baujahr | 2026 |
|---|---|
| Bauphase | Haus in Planung (projektiert) |
| Qualität der Austattung | Gehoben |
| Heizungsart | Wärmepumpe |
Beschreibung des Objekts
Ausstattung
THINK WHITE – Do it yourself.
- Fertige Gebäudehülle – du entscheidest über den Innenausbau
- Maximale Individualität – für kreative Köpfe & Macher
- Ideal für Eigenleistung – handwerkliches Geschick spart bares Geld
- Optimierte Grundrisse – smarte Wohnkonzepte für flexible Gestaltung
- Hochwertige Bauweise – modern, nachhaltig & energieeffizient
- Zugang zu staatlichen Förderprogrammen – clever finanzieren & sparen
Für alle, die ihr Zuhause selbst gestalten wollen!
Lage
Lastrup liegt im Landkreis Cloppenburg im Herzen des Oldenburger Münsterlandes und bietet eine ideale Kombination aus ländlicher Ruhe und guter Infrastruktur. Die Gemeinde zeichnet sich durch ihre naturnahe Umgebung, freundliche Nachbarschaften und eine hohe Lebensqualität aus.
Einkaufsmöglichkeiten, Ärzte, Schulen und Kindergärten befinden sich direkt im Ort und sind in wenigen Minuten erreichbar. Zudem bietet Lastrup ein reges Vereinsleben, zahlreiche Freizeitangebote und eine gute Anbindung an die umliegenden Städte Cloppenburg, Löningen und Friesoythe.
Über die Bundesstraße B213 sowie die Nähe zur Autobahn A1 ist Lastrup auch überregional gut angebunden. Die umliegende Natur mit Feldern, Wiesen und kleinen Wäldern lädt zu Spaziergängen, Radtouren und Erholung im Grünen ein – perfekt für Familien, Paare und alle, die Ruhe und Gemeinschaft schätzen.
Sonstige Angaben
Das Haus ist projektiert inkl. Grundstück. Das Grundstück wird in Kommission angeboten bzw. direkt von Dritten verkauft. Daher kann der genannte Preis aufgrund aktueller Marktsituationen schwanken.
Die Bauabwicklung kann kurzfristig nach Grundstückserwerb begonnen werden. Bilder zeigen möglicherweise Sonderausstattungen, die auf Wunsch gegen Aufspreis zusätzlich angeboten werden können.
Erhalte in deinem persönlichen Beratungsgespräch kostenlos alle wichtigen Informationen zu diesem Projekt, insbesondere: Lage und Bebauungsmöglichkeiten des Baugrundstücks, Baukosten-Kalkulation, Finanzierungs- u. Förderungsmöglichkeiten sowie detaillierte Architektur- uund Grundrissplanung.
Wir freuen uns darauf, dich beraten zu dürfen!
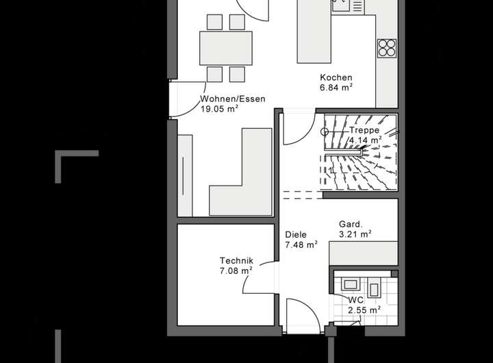
Grundriss
Grundriss EG
>
>
Grundriss OG
>
>
Grundriss DG
>
>
Adresse
49688 Lastrup
Interessante Orte
Preis- und Lageinformationen
Preistrend für Bestandsimmobilien in Lastrup