Diese repräsentative Immobilie aus dem Jahre 2012 befindet sich im Gewerbegebiet Handwerkerhof in Schweich-Issel. Auf einem insgesamt ca. 2.800 m² großen Grundstück vereint das Objekt modernes Wohnen mit vielseitigen Möglichkeiten für gewerbliche Nutzung und bietet somit eine ideale Lösung für Unternehmer, die Wohnen und Arbeiten an einem Ort kombinieren möchten.
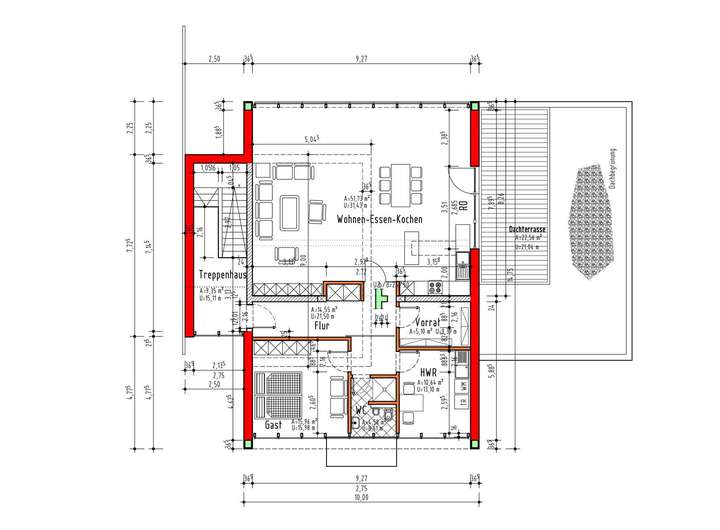
Die Wohnfläche beträgt ca. 193 m² und zeichnet sich durch eine hochwertige Ausstattung aus. Die großzügigen, lichtdurchfluteten Räume schaffen eine angenehme Wohnatmosphäre. Besonders hervorzuheben sind die zwei Dachterrassen, die viel Platz zur Erholung im Freien bieten. Die moderne Einbauküche unterstreicht das exklusive Ambiente der Wohnung. Zur Immobilie gehören außerdem zwei Stellplätze in einer Doppelgarage, die direkt ans Wohngebäude angeschlossen ist.
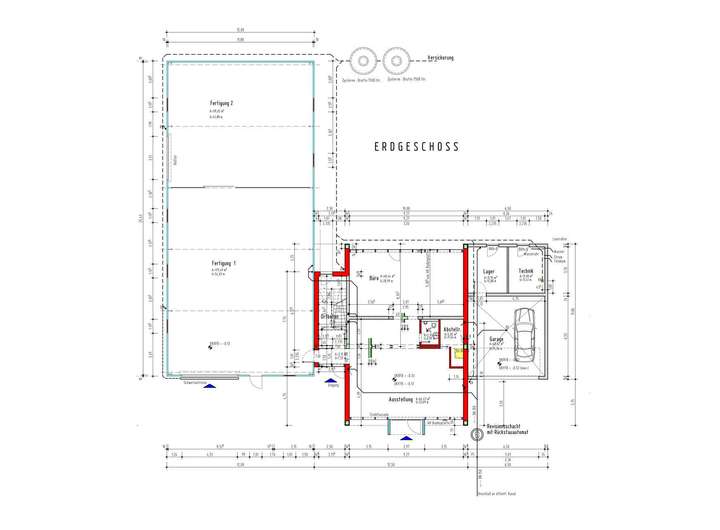
Der gewerbliche Teil der Immobilie erstreckt sich über insgesamt ca. 412 m². Der Büro- und Ausstellungsbereich umfasst rund 112 m² und bietet einen repräsentativen Rahmen für Kundenempfang, Beratungen oder Präsentationen. Dieser Bereich eignet sich ideal für Unternehmen, die eine Kombination aus Büro- und Ausstellungsfläche benötigen. Die angrenzende Lager- und Produktionshalle mit einer Fläche von ca. 300 m² ist befahrbar und mit zwei Sektionaltoren ausgestattet, die eine komfortable Anlieferung und Logistik ermöglichen. Mit einer Hallenhöhe von 4,90 m und einer Kranbahn mit einer Traglast von 630 kg bietet die Halle hervorragende Voraussetzungen für den Einsatz in Produktion oder Lagerung.
Die Gewerbehalle ist zudem so ausgelegt, dass eine Erweiterung der Hallenfläche bereits vorbereitet ist. Zudem besteht weiteres Erweiterungspotential auf einer noch freien, unbebauten Grundstücksfläche.
Diese einzigartige Kombination aus hochwertigem Wohnraum und großzügigen Gewerbeflächen macht das Objekt besonders attraktiv. Die Immobilie bietet Flexibilität und vielfältige Nutzungsmöglichkeiten für unterschiedlichste Branchen.
Für weitere Informationen oder zur Vereinbarung eines Besichtigungstermins stehen wir Ihnen gerne zur Verfügung.
Schweich-Issel: Modernes Einfamilienhaus mit angeschlossener Lager-/Produktionshalle
54338 Schweich
Die vollständige Adresse der Immobilie erhalten Sie vom Anbieter.
Auf Karte anzeigen
Die vollständige Adresse der Immobilie erhalten Sie vom Anbieter.
Finanzierungszertifikat
In nur zwei Minuten zu Ihrem persönlichen Finanzierungszertifkat.
Infos
| Haustyp | Einfamilienhaus |
|---|---|
| Wohnfläche ca. | 193 m2 |
| Grundstücksfläche | 2.800 m2 |
| Bezugsfrei ab | nach Absprache |
| Zimmer | 7 |
| Schlafzimmer | 1 |
| Badezimmer | 2 |
Kosten
| Kaufpreis |
1.480.000 € |
|---|---|
| Provision |
3,57% inkl. Mwst. |
Finanzierungsrechner:
Kaufpreis:
600.000 €
Eigenkapital:
600.000 €
Monatliche Rate
0 €
Effektiver Jahreszins
0 %
Sollzinsbindung
10 Jahre
Bausubstanz & Energieausweis
| Baujahr | 2012 |
|---|---|
| Objektzustand | Gepflegt |
| Qualität der Austattung | Gehoben |
| Heizungsart | Wärmepumpe |
| Wesentliche Energieträger | Strom |
| Energieausweis | liegt vor |
| Energieausweistyp | Bedarfsausweis |
| Energieverbrauchskennwert | 36,5 kWh/(m²*a) |
| Energieeffizienzklasse | A |
36,5
kWh/(m²*a)
Energieeffizienzklasse A
- A+
- A
- B
- C
- D
- E
- F
- G
- H
- 0
- 25
- 50
- 75
- 100
- 125
- 150
- 175
- 200
- 225
- >250
Beschreibung des Objekts
Ausstattung
- Modernes Einfamilienhaus mit Lager-/Produktionshalle
- Grundstücksfläche: ca. 2.800 m²
- Büro- und Ausstellungsfläche: ca. 112 m²
- Lager-/Produktionshalle: ca. 300 m²
- Wohnfläche: ca. 193 m²
- Nutzfläche: ca. 75 m²
- Gesamtfläche: ca. 680 m²
- Hallenhöhe: 4,90 m
- Befahrbare Halle mit zwei Sektionaltoren
- Kranbahn mit einer Traglast von 630 kg
- Außenlager
- Doppelgarage
- Erweiterungspotential
- Betriebswohnung mit gehobener Ausstattung
- zwei Dachterrassen
- Einbauküche
Lage
Das Gewerbegebiet Handwerkerhof in Schweich-Issel liegt strategisch günstig im Wirtschaftsraum Trier und bietet eine hervorragende Verkehrsanbindung sowie attraktive Bedingungen für Unternehmen aus verschiedensten Branchen. Schweich, als aufstrebende Kleinstadt, befindet sich etwa 12 Kilometer nordöstlich von Trier, der ältesten Stadt Deutschlands, und ist ein bedeutender Knotenpunkt für die regionale Wirtschaft.
Das Gewerbegebiet ist optimal an die Autobahn A1 angeschlossen, die eine schnelle Erreichbarkeit wichtiger Wirtschaftsregionen in Deutschland sowie die grenznahen Gebiete von Luxemburg, Belgien und Frankreich gewährleistet. Über die nahegelegene Bundesstraße B53 ist auch die Innenstadt von Schweich und die weitere Region gut erschlossen. Der Flughafen Luxemburg ist in etwa 40 Minuten mit dem Auto erreichbar, was für internationale Geschäftsaktivitäten von Vorteil ist.
In der unmittelbaren Umgebung befinden sich verschiedene Dienstleister, Handwerksbetriebe sowie Produktions- und Handelsunternehmen, die von der dynamischen Gewerbestruktur des Gebiets profitieren. Die Lage bietet darüber hinaus eine gute Infrastruktur mit Einkaufsmöglichkeiten, gastronomischen Angeboten und weiteren Annehmlichkeiten für Angestellte und Besucher. Dank der ruhigen, aber dennoch verkehrsgünstigen Lage ist der Handwerkerhof ein idealer Standort für Unternehmen, die kurze Wege und eine optimale logistische Anbindung suchen.
Zusammengefasst zeichnet sich das Gewerbegebiet Handwerkerhof in Schweich-Issel durch seine hervorragende Erreichbarkeit, seine Nähe zu wirtschaftlich starken Regionen sowie durch die gute lokale Infrastruktur aus. Es ist daher ein attraktiver Standort für Unternehmen jeder Größe, die auf Wachstum und logistische Effizienz setzen.
Sonstige Angaben
HAFTUNGSAUSSCHLUSS:
Alle Informationen zum Objekt beruhen auf den Angaben des Eigentümers beziehungsweise Dritter und wurden mit größtmöglicher Sorgfalt zusammengestellt. Für deren Richtigkeit, Vollständigkeit und Aktualität übernehmen wir keine Haftung; Irrtümer, Zwischenverkauf oder Vermietung bleiben vorbehalten. Auch weisen wir darauf hin, dass telefonische und schriftliche Auskünfte unverbindlich sind. Eine Haftung jeglicher Art wird ausdrücklich ausgeschlossen.
HINWEIS AUF MÖGLICHE SCHADSTOFFE:
Wir weisen unsere Interessenten darauf hin, dass bei Immobilien bestimmter Baujahre oder Bauweisen die Verwendung gesundheitsgefährdender Baustoffe (z. B. Asbest, künstliche Mineralfasern, PCB, Formaldehyd oder vergleichbare Materialien) nicht ausgeschlossen werden kann. Eine Prüfung hierauf wurde durch uns nicht vorgenommen. Interessenten wird daher empfohlen im Bedarfsfall eigene sachverständige Untersuchungen vornehmen zu lassen.
PROVISIONSHINWEIS:
Die Gilbers & Baasch Immobilien GmbH ist als Makler gewerbsmäßig tätig. Im Falle eines Abschluss eines wirksamen, notariellen Kaufvertrags über die angebotene Immobilie ist vom Käufer eine Provision in Höhe von 3,57 % (inkl. der gesetzlichen Umsatzsteuer in Höhe von aktuell 19 %) berechnet vom beurkundeten Kaufpreis an den Makler zu zahlen. Bei Objektwerten unterhalb von 135.000 Euro beträgt die Käufer-Provision pauschal 4.760,- Euro (inkl. der gesetzlichen Umsatzsteuer in Höhe von aktuell 19 %). Der Interessent erkennt durch Kontaktaufnahme mit dem Makler und Anforderung von Unterlagen den Provisionsanspruch ausdrücklich an. Es gelten unsere allgemeinen Geschäftsbedingungen.
ALLGEMEINE HINWEISE:
Aus Gründen der Vertraulichkeit von Objektdaten können wir nur Anfragen mit vollständiger Angabe Ihrer Kontaktdaten bearbeiten. Bitte geben Sie daher bei Ihrer Online- oder E-Mail-Anfrage Ihre Anschrift und eine Telefonnummer an, unter der wir Sie bei eventuellen Rückfragen erreichen können. Alle Informationen zum Objekt sind vertraulich zu behandeln und nur für den Empfänger persönlich bestimmt. Eine Weitergabe der Daten an Dritte ist nicht gestattet.
Weitere Informationen sowie aktuelle Immobilienangebote für die Großregion Trier, Mosel, Eifel, Hunsrück, Saar und Luxemburg finden Sie unter www.gilbers-baasch.de .
Grundriss
Grundriss Erdgeschoss
>
>
Grundriss Obergeschoss
>
>
Grundriss Dachgeschoss
>
>
Adresse
54338 Schweich
Interessante Orte
Preis- und Lageinformationen
Preistrend für Bestandsimmobilien in Schweich