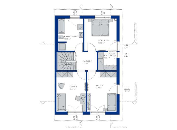
Diese tolle Doppelhaushälfte wird Sie begeistern. Mit einer Breite von knapp 7,4 bietet sie Einfamilienhaus-Feeling zu den Kosten einer Wohnung. Der großzügige Wohn- und Essbereich mit toller offener Wohnküche wird Sie begeistern. Im Obergeschoss finden sich ein geräumiges Bad, das Eltern-Schlafzimmer und zwei große Kinderzimmer mit viel Platz zum Spielen.
Lassen Sie sich von mir beraten, welche Möglichkeiten Sie auf diesem Grundstück haben.
Erfahren Sie jetzt mehr über tolle Förder- und Finanzierungsmöglichkeiten.
Echtes Grundstück mit Ausblick in RT-Altenburg - Bestpreisgarantie bei Bien-Zenker
72768 Reutlingen
Die vollständige Adresse der Immobilie erhalten Sie vom Anbieter.
Auf Karte anzeigen
Die vollständige Adresse der Immobilie erhalten Sie vom Anbieter.
Finanzierungszertifikat
In nur zwei Minuten zu Ihrem persönlichen Finanzierungszertifkat.
Infos
| Wohnfläche ca. | 145 m2 |
|---|---|
| Grundstücksfläche | 301 m2 |
| Zimmer | 5 |
Kosten
| Kaufpreis |
765.000 € |
|---|
Finanzierungsrechner:
Kaufpreis:
600.000 €
Eigenkapital:
600.000 €
Monatliche Rate
0 €
Effektiver Jahreszins
0 %
Sollzinsbindung
10 Jahre
Bausubstanz & Energieausweis
| Baujahr | unbekannt |
|---|---|
| Bauphase | Haus in Planung (projektiert) |
Beschreibung des Objekts
Ausstattung
Das Haus wird in bekannter Bien-Zenker Qualität schlüsselfertig angeboten.
Im Preis enthalten:
* Effizienzhaus 40 plus
* Flachdach
* Keller
* Fenster mit 3-fach-Isolierverglasung, mit exzellentem Wärme- und Schalldämmschutz
* ökologische und nachhaltige Fertig-Bauweise
* Planungswünsche können noch berücksichtigt werden!
* Wohlfühl-Klima-Heizung
* Sanitär- und Elektroinstallation
Gerne beraten wir Sie mit unserem unabhängigen Finanzierungsspezialisten!
Lage
Trotz der ruhigen Lage des Grundstücks ist die Anbindung hervorragend - die Innenstadt von Reutlingen mit allen Einkaufsmöglichkeiten als auch Schulen, Kindergärten, Ärzte und Apotheken ist rasch erreichbar. Die Nähe zur B 464 ermöglicht eine schnelle Erreichbarkeit in die gesamte Region und darüber hinaus.
Sonstige Angaben
Wir schätzen Ihr Interesse an unserem Grundstücksangebot und möchten darauf hinweisen, dass wir aus verschiedenen Gründen die genaue Adresse des Grundstücks erst in einem persönlichen Gespräch bekannt geben können. Dies dient sowohl Ihrem als auch unserem Schutz, um sicherzustellen, dass wir Ihre Anfrage bestmöglich bearbeiten können.
Kontaktangaben sind wichtig: Bitte stellen Sie sicher, dass Sie uns Ihre vollständigen Kontaktdaten zur Verfügung stellen. Anfragen ohne vollständige Kontaktdaten können aus organisatorischen Gründen nicht bearbeitet werden.
Kommission oder Direktverkauf: Wir möchten darauf hinweisen, dass das angebotene Grundstück entweder in Kommission angeboten wird oder direkt von Dritten verkauft wird. Dies kann bedeuten, dass der oben genannte Preis aufgrund der aktuellen Marktsituationen variieren kann.
Maklercourtage: Bitte beachten Sie, dass bei diesem Grundstücksangebot gegebenenfalls eine zusätzliche Maklercourtage anfallen kann. Die genauen Bedingungen hierfür werden im persönlich
Adresse
72768 Reutlingen
Interessante Orte
Preis- und Lageinformationen
Preistrend für Bestandsimmobilien in Reutlingen